092-686-6950

平日 9:00〜17:30

物件を探す

事業用不動産のあらゆるニーズを網羅するサービスと豊富な実績で、お客様の課題を解決する最適なソリューションをご提案いたします。

お役立ち情報

CBREが手掛けた、さまざまな業種・規模の移転事例のご紹介を始め、オフィスや物流拠点の移転に役立つ資料・情報をご提供しています。

マーケット情報

独自収集したデータを元に、不動産マーケットの市況を分析予測し、市場変化をいち早く捉え、ポイントをまとめた市場レポートを配信しています。
また、物件レポート、業界トレンド情報など、事業用不動産の最新情報、トレンドを配信しています。

CBREについて

事業用不動産の分野において、世界有数の企業であるCBRE。日本国内におけるその強み、拠点、会社概要をご紹介します。

ヘルプ

物件検索の使い方や、会員サービス、よくあるご質問など、当サイトをより便利にご利用いただくための情報をご紹介します。

仲介会社様はこちら
掲載終了 賃貸オフィス 物件番号 140132010266

ランダムスクウェアI 9階 119.08坪

平日 9:00〜17:30 092-686-6950
専門家に相談してみる
  • 更新を通知
  • URLを共有
ランダムスクウェアI 9階は掲載終了しました

ランダムスクウェアI 9階に類似した物件を非公開物件から紹介致します

不動産業界では様々な理由で一般公開前の非公開物件があります

  • 募集の準備が整っていない
  • オーナー意向で空室情報を公開していない
  • オーナーに伝わる前の解約予告情報

以上の理由からCBREが仲介する法人向け事業用物件には、WEBに公開できない空き情報があります。
お問い合わせ頂いたお客様に限り、鮮度の高い先行物件をご案内しております。

非公開物件のお問い合わせ
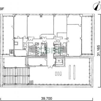
9階 平面図 9階 平面図
1/ 1
  • 9階 平面図
外観 外観
1/ 1
  • 外観
賃貸条件
募集階 9階
募集面積 119.08坪 / 393.65m2 (分割案)
空室用途 事務所
賃料・保証金等 -
入居時期 -
取引態様 -
情報更新日 2024年8月9日
物件概要
物件名 ランダムスクウェアI
所在地 福岡県福岡市博多区店屋町6-18
最寄り駅 市営地下鉄空港線 中洲川端駅 徒歩3分
市営地下鉄箱崎線 呉服町駅 徒歩2分
竣工年月 2003年9月
規模 地上9階
構造 鉄骨造
基準階面積 371.38坪 / 1,227.7m2
延床面積 3,037.57坪 / 10,041.57m2
警備 機械警備
駐車場 機械式 最大 60台
エレベーター数 3基
基準天井高 2,650mm
空調 冷房: 個別空調 / 暖房: 個別空調
こだわり条件について

募集区画

選択 面積 空室用途 月額賃料・共益費 坪単価 入居時期 取引態様 図面 お気に入り
4階 134.63坪 事務所 相談 相談 2026年9月 媒介 library_books
4階
grade
選択 面積 空室用途 月額賃料・共益費 坪単価 入居時期 取引態様 図面 お気に入り
9階 128.0坪 事務所 - 掲載終了 - 掲載終了 library_books
9階
grade
9階 119.08坪
(分割案)
事務所 - 掲載終了 - 掲載終了 library_books
9階
grade
4階 61.44坪 事務所 - 掲載終了 - 掲載終了 grade
4階 61.44坪 事務所 - 掲載終了 - 掲載終了 grade
3階 133.68坪 事務所 - 掲載終了 - 掲載終了 grade
3階 134.22坪 事務所 - 掲載終了 - 掲載終了 grade
1階 85.0坪 サービス店舗 - 掲載終了 - 掲載終了 grade
掲載終了した区画

ランダムスクウェアI 9階 賃貸オフィス・事務所に関するお問い合わせ

092-686-6950

平日 9:00〜17:30

シービーアールイー株式会社
福岡支店

〒810-0001 福岡市中央区天神2丁目8番35号 天神住友生命FJビジネスセンター 11階
免許番号:宅地建物取引業 国土交通大臣免許 (15) 第1075号

この空室をお問い合わせ

オフィスの移転・新規拠点開設はシービーアールイーにご相談ください。最適なオフィスソリューションとサポートを提供いたします。

ランダムスクウェアIを見た方が合わせてチェックしている物件

ビーロット大名ビル

福岡県福岡市中央区大名2-2-13

赤坂駅 5分
93坪

天神ビジネスセンターⅡ

福岡県福岡市中央区天神1-76-1他

天神駅 3分

福岡中央ビル

福岡県福岡市中央区天神1-13-25

天神駅 3分
21~23坪

Crobis博多 セットアップオフィス

福岡県福岡市博多区中洲5-4-18

中洲川端駅 3分
46坪

西日本シティビル

福岡県福岡市博多区博多駅前3-1-1

博多駅 2分
1188坪

天神偕成ビル

福岡県福岡市中央区大名2-8-22

天神駅 4分
32~115坪

T-PLUS博多駅前

福岡県福岡市博多区博多駅前4-196、212(地番)

博多駅 6分
50~168坪

福岡大名ガーデンシティ

福岡県福岡市中央区大名2-6-50

天神駅 3分
69~735坪

※賃料、共益費は別途消費税の対象となります。 / ※階数や区画によって賃貸条件が異なる場合がございます。 / ※統合・分割区画は、別途条件がある場合がありますので、詳細はお問い合わせください。 / ※募集状況は変動があるため、お問い合わせをいただいた時点でご紹介ができない場合があります。 / ※賃貸条件や建物設備は変更することがあるため、ご契約内容の詳細は各建物の賃貸借契約書等でご確認ください。 / ※当サイトでは1983年以降に竣⼯した建物を「新耐震基準」と分類しています。 / ※端数処理の関係で、賃貸条件、建物・区画⾯積に誤差が⽣じる場合があります。 / ※掲載内容が現況と異なる場合は現況を優先いたします。 / ※契約成⽴の場合、法令に定める基準に従い仲介⼿数料を申し受けます。(⼀部例外もございます。)

この物件をお問い合わせ
チェックした物件をまとめてお問い合わせ