基準階面積約2000坪がもたらす大空間が自由度の高いオフィスレイアウトを実現、専門的な要望に応えられる特殊仕様のフロアも用意し、進化する豊洲で新しいワークスタイルを提案する。
物件を探す
事業用不動産のあらゆるニーズを網羅するサービスと豊富な実績で、お客様の課題を解決する最適なソリューションをご提案いたします。
賃貸物件を探す
物件の売買
お問い合わせ
CBREへのお問い合わせはこちらから。
お役立ち情報
CBREが手掛けた、さまざまな業種・規模の移転事例のご紹介を始め、オフィスや物流拠点の移転に役立つ資料・情報をご提供しています。
マーケット情報
独自収集したデータを元に、不動産マーケットの市況を分析予測し、市場変化をいち早く捉え、ポイントをまとめた市場レポートを配信しています。
また、物件レポート、業界トレンド情報など、事業用不動産の最新情報、トレンドを配信しています。
お気に入り物件
履歴
検索履歴
基準階 平面図
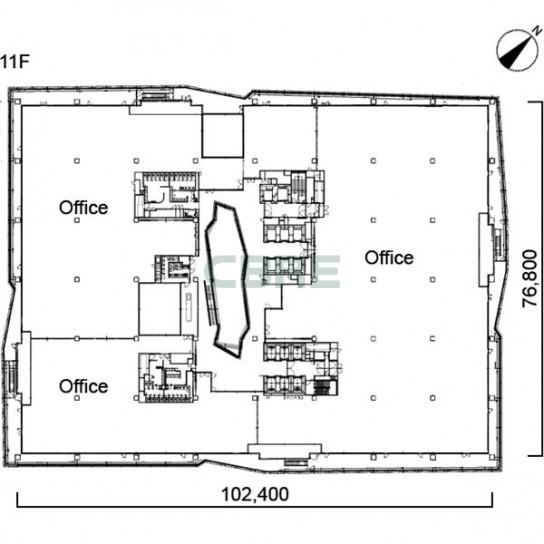
11階 平面図
11階 平面図
外観
外観
外観
外観
内観
内観
内観
内観
内観
内観
内観
エントランス
トイレ
トイレ
トイレ
トイレ
トイレ
トイレ
周辺写真
周辺写真
| 賃貸条件 | |
|---|---|
| 募集階 | 11階 |
| 募集面積 | 492.56坪 / 1,628.33m2 |
| 空室用途 | 事務所 |
| 賃料 | 相談 |
| 共益費 | 相談 |
| 賃料+共益費 | 相談 |
| 入居時期 |
2026年 (相談) |
| 取引態様 | 媒介 |
| 情報更新日 | 2025年11月4日 |
| 物件概要 | |
|---|---|
| 物件名 | メブクス豊洲 |
| 所在地 | 東京都江東区豊洲6-4-34 |
| 最寄り駅 |
ゆりかもめ 市場前駅
徒歩1分
ゆりかもめ 新豊洲駅 徒歩6分 東京メトロ有楽町線 豊洲駅 徒歩18分 |
| 竣工年月 | |
| 規模 | 地上11階 |
| 構造 | 鉄骨鉄筋コンクリート造 |
| 耐震性能 | 免震構造 |
| 基準階面積 | 1,983.0坪 / 6,555.38m2 |
| 延床面積 | 26,673.0坪 / 88,175.34m2 |
| 警備 | 有人警備 |
| 駐車場 | 機械式・平面併用 最大 155台 |
| エレベーター数 | 14基 |
| 基準天井高 | 2,900mm |
| 基準床荷重 | 500kg/m2 |
| 空調 | 冷房: 個別空調 / 暖房: 個別空調 |
| 選択 | 階 | 面積 | 空室用途 | 月額賃料・共益費 | 坪単価 | 入居時期 | 取引態様 | 図面 | お気に入り |
|---|---|---|---|---|---|---|---|---|---|
| 11階 |
1,755.23坪
(統合案) |
事務所 | 相談 | 相談 | 2026年 (相談) |
媒介 |
library_books
|
grade | |
| 11階 | 295.48坪 | 事務所 | 相談 | 相談 | 2026年 (相談) |
媒介 |
library_books
|
grade | |
| 11階 | 492.56坪 | 事務所 | 相談 | 相談 | 2026年 (相談) |
媒介 |
library_books
|
grade | |
| 11階 | 967.19坪 | 事務所 | 相談 | 相談 | 2026年 (相談) |
媒介 |
library_books
|
grade | |
| 10階 |
515.2坪
(分割案) |
事務所 | 相談 | 相談 | 2026年 (相談) |
媒介 |
library_books
|
grade | |
| 10階 | 846.42坪 | 事務所 | 相談 | 相談 | 2026年 (相談) |
媒介 |
library_books
|
grade | |
| 10階 |
331.22坪
(分割案) |
事務所 | 相談 | 相談 | 2026年 (相談) |
媒介 |
library_books
|
grade | |
| 10階 | 528.9坪 | 事務所 | 相談 | 相談 | 2026年 (相談) |
媒介 |
library_books
|
grade | |
| 9階 | 529.52坪 | 事務所 | 相談 | 相談 | 2026年 (相談) |
媒介 |
library_books
|
grade | |
| 5階 | 332.25坪 | 事務所 | 相談 | 相談 | 2026年 (相談) |
媒介 |
library_books
|
grade | |
| 3階 | 541.53坪 | 事務所 | 相談 | 相談 | 2026年 (相談) |
媒介 |
library_books
|
grade | |
| 2階 | 92.93坪 | 店舗 | 相談 | 相談 | 即入居可 | 媒介 | grade |
| 選択 | 階 | 面積 | 空室用途 | 月額賃料・共益費 | 坪単価 | 入居時期 | 取引態様 | 図面 | お気に入り |
|---|---|---|---|---|---|---|---|---|---|
| 11階 |
295.48坪
(分割案) |
事務所 | - 掲載終了 | - | 掲載終了 |
library_books
|
grade | ||
| 11階 |
492.56坪
(分割案) |
事務所 | - 掲載終了 | - | 掲載終了 |
library_books
|
grade | ||
| 11階 |
967.19坪
(分割案) |
事務所 | - 掲載終了 | - | 掲載終了 |
library_books
|
grade | ||
| 11階 |
967.19坪
(分割案) |
事務所 | - 掲載終了 | - | 掲載終了 |
library_books
|
grade | ||
| 11階 |
295.48坪
(分割案) |
事務所 | - 掲載終了 | - | 掲載終了 |
library_books
|
grade | ||
| 11階 |
492.56坪
(分割案) |
事務所 | - 掲載終了 | - | 掲載終了 |
library_books
|
grade | ||
| 11階 |
1,459.75坪
(分割案) |
事務所 | - 掲載終了 | - | 掲載終了 |
library_books
|
grade | ||
| 11階 |
295.48坪
(分割案) |
事務所 | - 掲載終了 | - | 掲載終了 |
library_books
|
grade | ||
| 11階 |
1,755.23坪
(統合案) |
事務所 | - 掲載終了 | - | 掲載終了 |
library_books
|
grade | ||
| 11階 | 1,755.23坪 | 事務所 | - 掲載終了 | - | 掲載終了 |
library_books
|
grade | ||
| 10階 |
515.2坪
(分割案) |
事務所 | - 掲載終了 | - | 掲載終了 |
library_books
|
grade | ||
| 10階 | 1,887.71坪 | 事務所 | - 掲載終了 | - | 掲載終了 |
library_books
|
grade | ||
| 10階 |
512.37坪
(分割案) |
事務所 | - 掲載終了 | - | 掲載終了 |
library_books
|
grade | ||
| 10階 |
331.22坪
(分割案) |
事務所 | - 掲載終了 | - | 掲載終了 |
library_books
|
grade | ||
| 9階 |
865.15坪
(分割案) |
事務所 | - 掲載終了 | - | 掲載終了 | grade | |||
| 9階 |
535.43坪
(分割案) |
事務所 | - 掲載終了 | - | 掲載終了 | grade | |||
| 9階 | 331.31坪 | 事務所 | - 掲載終了 | - | 掲載終了 |
library_books
|
grade | ||
| 9階 | 540.12坪 | 事務所 | - 掲載終了 | - | 掲載終了 |
library_books
|
grade | ||
| 5階 | 530.47坪 | 事務所 | - 掲載終了 | - | 掲載終了 |
library_books
|
grade | ||
| 5階 |
862.72坪
(統合案) |
事務所 | - 掲載終了 | - | 掲載終了 |
library_books
|
grade | ||
| 4階 |
541.3坪
(分割案) |
事務所 | - 掲載終了 | - | 掲載終了 |
library_books
|
grade | ||
| 4階 |
530.7坪
(分割案) |
事務所 | - 掲載終了 | - | 掲載終了 |
library_books
|
grade | ||
| 4階 | 1,652.74坪 | 事務所 | - 掲載終了 | - | 掲載終了 |
library_books
|
grade | ||
| 4階 |
580.74坪
(分割案) |
事務所 | - 掲載終了 | - | 掲載終了 |
library_books
|
grade | ||
| 3階 | 235.04坪 | 事務所 | - 掲載終了 | - | 掲載終了 |
library_books
|
grade | ||
| 3階 |
530.94坪
(分割案) |
事務所 | - 掲載終了 | - | 掲載終了 |
library_books
|
grade | ||
| 3階 |
541.53坪
(分割案) |
事務所 | - 掲載終了 | - | 掲載終了 |
library_books
|
grade | ||
| 3階 |
581.02坪
(分割案) |
事務所 | - 掲載終了 | - | 掲載終了 |
library_books
|
grade | ||
| 3階 | 1,986.23坪 | 事務所 | - 掲載終了 | - | 掲載終了 |
library_books
|
grade | ||
| 3階 |
541.53坪
(統合案) |
事務所 | - 掲載終了 | - | 掲載終了 |
library_books
|
grade | ||
| 3階 | 269.38坪 | 事務所 | - 掲載終了 | - | 掲載終了 |
library_books
|
grade | ||
| 3階 | 541.53坪 | 事務所 | - 掲載終了 | - | 掲載終了 |
library_books
|
grade | ||
| 3階 |
332.72坪
(分割案) |
事務所 | - 掲載終了 | - | 掲載終了 |
library_books
|
grade | ||
| 2階 | 64.64坪 | 店舗 | - 掲載終了 | - | 掲載終了 | grade | |||
| 2階 | 57.34坪 | 店舗 | - 掲載終了 | - | 掲載終了 | grade | |||
| 1階 | 35.71坪 | 店舗 | - 掲載終了 | - | 掲載終了 | grade | |||
| 1階 | 54.43坪 | 店舗 | - 掲載終了 | - | 掲載終了 | grade |
メブクス豊洲 11階 賃貸オフィス・事務所に関するお問い合わせ
03-5288-9520
平日 9:00〜17:30
シービーアールイー株式会社
物件探しのご相談
〒100-0005 東京都千代田区丸の内2-1-1 明治安田生命ビル 21F
免許番号:宅地建物取引業 国土交通大臣免許 (15) 第1075号
オフィスの移転・新規拠点開設はシービーアールイーにご相談ください。最適なオフィスソリューションとサポートを提供いたします。
東京都江東区豊洲6丁目に位置する「メブクス豊洲」は、2021年8月に竣工した地上11階建ての次世代型大規模オフィスビルです。ゆりかもめ「市場前駅」から徒歩1分(駅直結)、東京メトロ有楽町線「豊洲駅」からも徒歩15分と、都心アクセスと湾岸エリアの利便性を兼ね備えた立地にあります。本物件は、延床面積約88,000㎡、基準階面積は約2,000坪という圧倒的なスケールを誇り、最大4分割まで対応可能な柔軟なレイアウト設計が魅力です。天井高は2,900mm(ポテンシャルフロアでは最大6,000mm)、床荷重は500kg/㎡(一部1,000kg/㎡対応)と、オフィス用途に加え、研究開発やショールーム、テストキッチンなど多様な業態に対応可能です。 空調は個別方式、OAフロアは150mm、エレベーターは14基設置されており、快適な業務環境を提供。セキュリティは24時間有人管理と機械警備の併用で、安心して利用できます。BCP対策として、コージェネレーションシステムによる72時間対応の非常用電源、防災備蓄倉庫も完備されています。3・9・11階はR&D向けにフルスケルトン仕様でドラフトチャンバーや給排水の確保も可能です。トップフロアの11階は一部梁下6.6mあり、高さが必要な用途にも対応しています。共用施設も充実しており、テナント専用のラウンジ、食堂、会議室、シャワー室、屋上庭園、シェアサイクルポートなどが設置され、働く人々の快適性と利便性を高めています。さらに、豊洲駅からは無料シャトルバスが運行されており、通勤もスムーズです。「メブクス豊洲」は、1フロア2000坪の大規模プレートによる縦横の空間をご用意し、様々な研究開発用途に最適なレンタルラボスペースを提供します。詳細資料や内覧のご希望があれば、お気軽にお問い合わせください。
基準階面積約2000坪がもたらす大空間が自由度の高いオフィスレイアウトを実現、専門的な要望に応えられる特殊仕様のフロアも用意し、進化する豊洲で新しいワークスタイルを提案する。
※賃料、共益費は別途消費税の対象となります。 / ※階数や区画によって賃貸条件が異なる場合がございます。 / ※統合・分割区画は、別途条件がある場合がありますので、詳細はお問い合わせください。 / ※募集状況は変動があるため、お問い合わせをいただいた時点でご紹介ができない場合があります。 / ※賃貸条件や建物設備は変更することがあるため、ご契約内容の詳細は各建物の賃貸借契約書等でご確認ください。 / ※当サイトでは1983年以降に竣⼯した建物を「新耐震基準」と分類しています。 / ※端数処理の関係で、賃貸条件、建物・区画⾯積に誤差が⽣じる場合があります。 / ※掲載内容が現況と異なる場合は現況を優先いたします。 / ※契約成⽴の場合、法令に定める基準に従い仲介⼿数料を申し受けます。(⼀部例外もございます。)