092-686-6950

平日 9:00〜17:30

物件を探す

事業用不動産のあらゆるニーズを網羅するサービスと豊富な実績で、お客様の課題を解決する最適なソリューションをご提案いたします。

お役立ち情報

CBREが手掛けた、さまざまな業種・規模の移転事例のご紹介を始め、オフィスや物流拠点の移転に役立つ資料・情報をご提供しています。

マーケット情報

独自収集したデータを元に、不動産マーケットの市況を分析予測し、市場変化をいち早く捉え、ポイントをまとめた市場レポートを配信しています。
また、物件レポート、業界トレンド情報など、事業用不動産の最新情報、トレンドを配信しています。

CBREについて

事業用不動産の分野において、世界有数の企業であるCBRE。日本国内におけるその強み、拠点、会社概要をご紹介します。

ヘルプ

物件検索の使い方や、会員サービス、よくあるご質問など、当サイトをより便利にご利用いただくための情報をご紹介します。

仲介会社様はこちら
掲載終了 賃貸オフィス 物件番号 140132036011

T-Building HAKATA EAST

平日 9:00〜17:30 092-686-6950
専門家に相談してみる
  • 更新を通知
  • URLを共有
T-Building HAKATA EASTは掲載終了しました

T-Building HAKATA EASTに類似した物件を非公開物件から紹介致します

不動産業界では様々な理由で一般公開前の非公開物件があります

  • 募集の準備が整っていない
  • オーナー意向で空室情報を公開していない
  • オーナーに伝わる前の解約予告情報

以上の理由からCBREが仲介する法人向け事業用物件には、WEBに公開できない空き情報があります。
お問い合わせ頂いたお客様に限り、鮮度の高い先行物件をご案内しております。

非公開物件のお問い合わせ
外観 外観
外観 外観
内観 内観
内観 内観
内観 内観
内観 内観
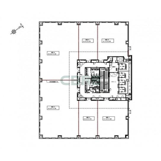
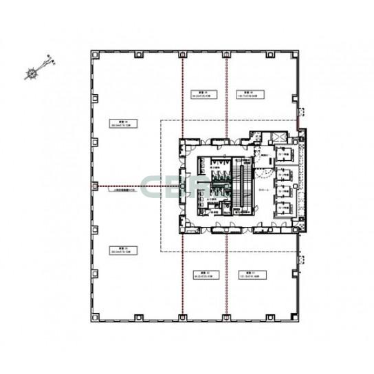
基準階 平面図 基準階 平面図
1/ 7
  • 外観
  • 外観
  • 内観
  • 内観
  • 内観
  • 内観
  • 基準階 平面図
物件概要
物件名 T-Building HAKATA EAST
所在地 福岡県福岡市博多区博多駅東3-14-1
最寄り駅 市営地下鉄空港線 東比恵駅 徒歩3分
鹿児島本線 博多駅 徒歩10分
竣工年月 2021年4月
規模 地上11階
構造 鉄骨造
基準階面積 291.42坪 / 963.37m2
延床面積 3,985.0坪 / 13,173.57m2
警備 機械警備・有人警備併用
駐車場 自走式 最大 140台
エレベーター数 4基
基準天井高 2,700mm
基準床荷重 500kg/m2
空調 冷房: 個別空調 / 暖房: 個別空調
こだわり条件について

募集区画

選択 面積 空室用途 月額賃料・共益費 坪単価 入居時期 取引態様 図面 お気に入り
10階 25.47坪 事務所 - 掲載終了 - 掲載終了 library_books
10階
grade
10階 79.72坪 事務所 - 掲載終了 - 掲載終了 library_books
10階
grade
10階 291.42坪 事務所 - 掲載終了 - 掲載終了 library_books
10階
grade
9階 291.42坪 事務所 - 掲載終了 - 掲載終了 library_books
9階
grade
8階 291.42坪 事務所 - 掲載終了 - 掲載終了 library_books
8階
grade
7階 291.42坪 事務所 - 掲載終了 - 掲載終了 library_books
7階
grade
6階 291.42坪 事務所 - 掲載終了 - 掲載終了 library_books
6階
grade
5階 291.42坪 事務所 - 掲載終了 - 掲載終了 library_books
5階
grade
4階 39.53坪 事務所 - 掲載終了 - 掲載終了 library_books
4階
grade
4階 251.89坪 事務所 - 掲載終了 - 掲載終了 library_books
4階
grade
3階 25.47坪 事務所 - 掲載終了 - 掲載終了 library_books
3階
grade
3階 41.48坪
(分割案)
事務所 - 掲載終了 - 掲載終了 library_books
3階
grade
3階 39.53坪 事務所 - 掲載終了 - 掲載終了 library_books
3階
grade
3階 66.95坪 事務所 - 掲載終了 - 掲載終了 library_books
3階
grade
3階 25.47坪
(分割案)
事務所 - 掲載終了 - 掲載終了 library_books
3階
grade
2階 79.72坪
(分割案)
事務所 - 掲載終了 - 掲載終了 library_books
2階
grade
2階 25.47坪
(分割案)
事務所 - 掲載終了 - 掲載終了 library_books
2階
grade
2階 41.48坪
(分割案)
事務所 - 掲載終了 - 掲載終了 library_books
2階
grade
2階 146.67坪 事務所 - 掲載終了 - 掲載終了 library_books
2階
grade
1階 84.33坪 店舗 - 掲載終了 - 掲載終了 library_books
1階
grade
1階 69.65坪 店舗 - 掲載終了 - 掲載終了 library_books
1階
grade
想定階 39.54坪
(分割案)
事務所 - 掲載終了 - 掲載終了 grade
想定階 25.47坪
(分割案)
事務所 - 掲載終了 - 掲載終了 grade
想定階 79.72坪
(分割案)
事務所 - 掲載終了 - 掲載終了 grade
想定階 79.72坪
(分割案)
事務所 - 掲載終了 - 掲載終了 grade
想定階 25.47坪
(分割案)
事務所 - 掲載終了 - 掲載終了 grade
想定階 41.48坪
(分割案)
事務所 - 掲載終了 - 掲載終了 grade
想定階 291.42坪 事務所 - 掲載終了 - 掲載終了 grade

T-Building HAKATA EASTの賃貸オフィス・事務所に関するお問い合わせ

092-686-6950

平日 9:00〜17:30

シービーアールイー株式会社
福岡支店

〒810-0001 福岡市中央区天神2丁目8番35号 天神住友生命FJビジネスセンター 11階
免許番号:宅地建物取引業 国土交通大臣免許 (15) 第1075号

この物件をお問い合わせ

オフィスの移転・新規拠点開設はシービーアールイーにご相談ください。最適なオフィスソリューションとサポートを提供いたします。

博多駅周辺エリアの想定成約賃料

16,350円 / 坪 (共益費含)

2026年1月現在

  • ※CBREで設定したオフィスマーケットエリアにおいて、規模、設備等で各エリアを代表すると考えられる複数のオフィスビルの想定成約賃料をもとに算出しています。不動産市場における賃料水準に関する意見であり、成約賃料を保証するものではありませんので、あらかじめご了承ください。

T-Building HAKATA EASTの概要

JR 博多駅、福岡空港という地元の交通の、2つの要衝のほぼ中間。地下鉄「東比恵」駅徒歩3分に、今年5月に竣工したのが「T-Building HAKATA EAST」。福岡都市高速環状線「博多駅東」出口から、メインストリート主要道路のひとつである百年橋通りを南下すること約1㎞。博多駅から続くオフィスが建ち並ぶ中比恵公園通りが交差する角地という恵まれた立地にそびえる、11階建のモノトーンを基調としたガラスカーテンウォールの外観が、落ち着いた色合いの中にも、先鋭的な雰囲気を漂わせている。約30m×40mの整形のビルの内部には、基準階(2~11階) 約300坪の無柱空間が広がっており、高さ2,700mmの天井から床面までの三面採光を実現した窓が、明るく開放的な執務空間を演出している。OAフロア高さは100mm、コンセント容量50VA/ ㎡、床荷重500kg/㎡(ヘビーデューティーゾーン800kg/㎡)と充実。冷暖房ともに個別空調で、季節を問わず快適な空間を作り出すほか、LED照明やLow-E ペアガラスの採用など、環境への配慮も十分でCASBEE Aランクを取得している。 セキュリティ面では、平日日中の管理人常駐による有人警備と、非接触型IC カードを利用した機械警備を併用した万全の体制を敷いている。そのほか、オフィス棟に隣接する自走式駐車場には、全140台(月極120台、時間貸20台)の収容スペースを確保しているほか、電気自動車の充電スペースを設けるなど環境負荷軽減にも優れている。また、福岡エリアで求められる基準の1.25倍の耐震性を有するなど、高い安全性を確保している。さらに、1階だけでなく、各フロアに多機能トイレを配置するなど、オフィス全体のバリアフリー化を実現しているのだ。空路、鉄道や道路などの陸路ともに、恵まれた交通アクセスを誇るだけでなく、機能性や快適性、安全性などすべてに優れた「T-Building HAKATA EAST」。福岡全体のビジネスのけん引役としての期待が高まっている。

T-Building HAKATA EASTの特長

アクセス

T-Building HAKATA EAST

JR 博多駅、福岡空港からそれぞれ一駅。国内と国外とをつなぐ2つの交通要衝のほぼ中間である地下鉄「東比恵」駅より徒歩3分。

福岡都市高速環状線「博多駅東入口」からは約600m(車で約3分)、「半道橋入口」からは約2.8km(車で約9分)。

福岡市内だけでなく、九州全体へスムーズにアクセスできる環境となっています。 

フロア構成

基準階約300坪の整形無柱空間

T-Building HAKATA EAST

東西南3面に大きく視界を開いた事務室スペースからは、福岡空港や遠く背振山を見渡せます。

1フロア最大約300坪、分割は約25坪から対応可能。少人数の起業から、大企業の営業拠点やバックオフィスまで、企業の多様なニーズに応えます。

設備

T-Building HAKATA EAST

最新設備で快適に。ワーカーの業務環境をサポート。

ワーカーサポート

喫煙所

T-Building HAKATA EAST

防災センター

T-Building HAKATA EAST

平日日中は警備員、設備員が常駐。万が一に備えます。

身障者お手洗い

T-Building HAKATA EAST

1階だけでなく、各階に配置。

駐車場

T-Building HAKATA EAST

自走式駐車場全140台完備(うち月極120台、時間貸し20台)

駐輪場

T-Building HAKATA EAST

テナント向け駐輪場全65台完備。

その他駐車場

T-Building HAKATA EAST

荷捌き駐車場2台、身障者用駐車場1台を配置。

T-Building HAKATA EASTを見た方が合わせてチェックしている物件

朝日生命福岡第2ビル

福岡県福岡市博多区店屋町5-22

呉服町駅 3分

コネクトスクエア博多

福岡県福岡市博多区博多駅東1-17-1


博多ハイテックビル

福岡県福岡市博多区博多駅前3-7-35

博多駅 7分

エコービル

福岡県福岡市博多区博多駅東2-13-34

博多駅 8分

FPG links TENJIN MINAMI

福岡県福岡市中央区渡辺通5-24-32

天神南駅 1分

明治安田生命福岡ビル

福岡県福岡市博多区中洲5-6-20

中洲川端駅 2分

NEWNO・ザイマックス博多駅前ビル

福岡県福岡市博多区博多駅前4-2-1

博多駅 5分

博多祇園M-SQUARE

福岡県福岡市博多区冷泉町2-1

祇園駅 2分

※賃料、共益費は別途消費税の対象となります。 / ※階数や区画によって賃貸条件が異なる場合がございます。 / ※統合・分割区画は、別途条件がある場合がありますので、詳細はお問い合わせください。 / ※募集状況は変動があるため、お問い合わせをいただいた時点でご紹介ができない場合があります。 / ※賃貸条件や建物設備は変更することがあるため、ご契約内容の詳細は各建物の賃貸借契約書等でご確認ください。 / ※当サイトでは1983年以降に竣⼯した建物を「新耐震基準」と分類しています。 / ※端数処理の関係で、賃貸条件、建物・区画⾯積に誤差が⽣じる場合があります。 / ※掲載内容が現況と異なる場合は現況を優先いたします。 / ※契約成⽴の場合、法令に定める基準に従い仲介⼿数料を申し受けます。(⼀部例外もございます。)

この物件をお問い合わせ
チェックした物件をまとめてお問い合わせ