076-224-6310

平日 9:00〜17:30

物件を探す

事業用不動産のあらゆるニーズを網羅するサービスと豊富な実績で、お客様の課題を解決する最適なソリューションをご提案いたします。

お役立ち情報

CBREが手掛けた、さまざまな業種・規模の移転事例のご紹介を始め、オフィスや物流拠点の移転に役立つ資料・情報をご提供しています。

マーケット情報

独自収集したデータを元に、不動産マーケットの市況を分析予測し、市場変化をいち早く捉え、ポイントをまとめた市場レポートを配信しています。
また、物件レポート、業界トレンド情報など、事業用不動産の最新情報、トレンドを配信しています。

CBREについて

事業用不動産の分野において、世界有数の企業であるCBRE。日本国内におけるその強み、拠点、会社概要をご紹介します。

ヘルプ

物件検索の使い方や、会員サービス、よくあるご質問など、当サイトをより便利にご利用いただくための情報をご紹介します。

仲介会社様はこちら
掲載終了 賃貸オフィス 物件番号 117201056025

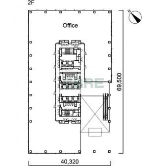
JR金沢駅西第四NKビル 2階 75.9坪

平日 9:00〜17:30 076-224-6310
専門家に相談してみる
  • 更新を通知
  • URLを共有
JR金沢駅西第四NKビル 2階は掲載終了しました

JR金沢駅西第四NKビル 2階に類似した物件を非公開物件から紹介致します

不動産業界では様々な理由で一般公開前の非公開物件があります

  • 募集の準備が整っていない
  • オーナー意向で空室情報を公開していない
  • オーナーに伝わる前の解約予告情報

以上の理由からCBREが仲介する法人向け事業用物件には、WEBに公開できない空き情報があります。
お問い合わせ頂いたお客様に限り、鮮度の高い先行物件をご案内しております。

非公開物件のお問い合わせ
2階 平面図 2階 平面図
1/ 1
  • 2階 平面図
外観 外観
外観 外観
外観 外観
外観 外観
外観 外観
外観 外観
外観 外観
外観 外観
外観 外観
外観 外観
外観 外観
外観 外観
内観 内観
エントランス エントランス
エントランス エントランス
エントランス エントランス
エントランス エントランス
エントランス エントランス
エントランス エントランス
エントランス エントランス
エントランス エントランス
エントランス エントランス
エレベーターホール エレベーターホール
エレベーターホール エレベーターホール
トイレ トイレ
トイレ トイレ
給湯室 給湯室
カンファレンスルーム カンファレンスルーム
カンファレンスルーム カンファレンスルーム
共用設備 共用設備
1/ 31
  • 外観
  • 外観
  • 外観
  • 外観
  • 外観
  • 外観
  • 外観
  • 外観
  • 外観
  • 外観
  • 外観
  • 外観
  • 内観
  • エントランス
  • エントランス
  • エントランス
  • エントランス
  • エントランス
  • エントランス
  • エントランス
  • エントランス
  • エントランス
  • エレベーターホール
  • エレベーターホール
  • トイレ
  • トイレ
  • 給湯室
  • カンファレンスルーム
  • カンファレンスルーム
  • 共用設備
賃貸条件
募集階 2階
募集面積 75.9坪 / 250.91m2
空室用途 事務所
賃料・保証金等 -
入居時期 -
取引態様 -
情報更新日 2023年2月20日
物件概要
物件名 JR金沢駅西第四NKビル
所在地 石川県金沢市広岡3-3-11
最寄り駅 北陸新幹線 金沢駅 徒歩5分
竣工年月 2022年8月
規模 地上10階
構造 鉄骨造
基準階面積 678.0坪 / 2,241.33m2
延床面積 8,333.32坪 / 27,548.22m2
警備 機械警備・有人警備併用
駐車場 自走式 最大 224台
エレベーター数 8基
基準天井高 2,800mm
基準床荷重 300kg/m2
空調 冷房: 個別空調 / 暖房: 個別空調
備考 基準階1スパン約25坪~最大約678坪までご提供可能です。
こだわり条件について

募集区画

選択 面積 空室用途 月額賃料・共益費 坪単価 入居時期 取引態様 図面 お気に入り
10階 25.36坪 事務所 相談 相談 即入居可 媒介 library_books
10階
grade
8階 73.13坪 事務所 相談 相談 即入居可 媒介 library_books
8階
grade
8階 25.36坪 事務所 相談 相談 即入居可 媒介 library_books
8階
grade
8階 50.72坪 事務所 相談 相談 即入居可 媒介 library_books
8階
grade
7階 50.72坪 事務所 相談 相談 即入居可 媒介 library_books
7階
grade
6階 215.12坪
(分割案)
事務所 相談 相談 即入居可 媒介 library_books
6階
grade
6階 237.53坪 事務所 相談 相談 即入居可 媒介 library_books
6階
grade
6階 435.39坪 事務所 相談 相談 即入居可 媒介 library_books
6階
grade
6階 220.27坪
(分割案)
事務所 相談 相談 即入居可 媒介 library_books
6階
grade
5階 25.36坪 事務所 相談 相談 即入居可 媒介 library_books
5階
grade
2階 25.36坪 事務所 相談 相談 即入居可 媒介 library_books
2階
grade
1階 41.94坪 飲食店舗 相談 相談 即入居可 媒介 library_books
1階
grade
選択 面積 空室用途 月額賃料・共益費 坪単価 入居時期 取引態様 図面 お気に入り
10階 678.0坪 事務所 - 掲載終了 - 掲載終了 library_books
10階
grade
10階 83.2坪 事務所 - 掲載終了 - 掲載終了 library_books
10階
grade
10階 199.95坪 事務所 - 掲載終了 - 掲載終了 library_books
10階
grade
10階 25.36坪 事務所 - 掲載終了 - 掲載終了 library_books
10階
grade
10階 25.36坪 事務所 - 掲載終了 - 掲載終了 library_books
10階
grade
10階 25.36坪 事務所 - 掲載終了 - 掲載終了 library_books
10階
grade
8階 25.36坪 事務所 - 掲載終了 - 掲載終了 library_books
8階
grade
8階 169.58坪 事務所 - 掲載終了 - 掲載終了 library_books
8階
grade
8階 101.45坪 事務所 - 掲載終了 - 掲載終了 library_books
8階
grade
8階 68.14坪 事務所 - 掲載終了 - 掲載終了 library_books
8階
grade
8階 93.5坪 事務所 - 掲載終了 - 掲載終了 library_books
8階
grade
7階 678.0坪 事務所 - 掲載終了 - 掲載終了 library_books
7階
grade
7階 678.0坪 事務所 - 掲載終了 - 掲載終了 library_books
7階
grade
7階 227.1坪
(統合案)
事務所 - 掲載終了 - 掲載終了 grade
7階 339.02坪
(分割案)
事務所 - 掲載終了 - 掲載終了 library_books
7階
grade
7階 339.02坪
(分割案)
事務所 - 掲載終了 - 掲載終了 library_books
7階
grade
6階 688.01坪 事務所 - 掲載終了 - 掲載終了 library_books
6階
grade
5階 73.13坪 事務所 - 掲載終了 - 掲載終了 library_books
5階
grade
5階 93.5坪 事務所 - 掲載終了 - 掲載終了 library_books
5階
grade
5階 154.24坪 事務所 - 掲載終了 - 掲載終了 library_books
5階
grade
5階 134.04坪 事務所 - 掲載終了 - 掲載終了 library_books
5階
grade
5階 118.86坪 事務所 - 掲載終了 - 掲載終了 library_books
5階
grade
5階 298.46坪 事務所 - 掲載終了 - 掲載終了 library_books
5階
grade
5階 478.31坪 事務所 - 掲載終了 - 掲載終了 library_books
5階
grade
5階 503.67坪 事務所 - 掲載終了 - 掲載終了 library_books
5階
grade
5階 678.0坪 事務所 - 掲載終了 - 掲載終了 library_books
5階
grade
4階 339.0坪
(分割案)
事務所 - 掲載終了 - 掲載終了 grade
4階 339.0坪
(分割案)
事務所 - 掲載終了 - 掲載終了 grade
3階 339.0坪
(分割案)
事務所 - 掲載終了 - 掲載終了 grade
3階 339.0坪
(分割案)
事務所 - 掲載終了 - 掲載終了 grade
2階 50.6坪
(統合案)
事務所兼店舗 - 掲載終了 - 掲載終了 library_books
2階
grade
2階 380.9坪 事務所 - 掲載終了 - 掲載終了 library_books
2階
grade
2階 75.9坪 事務所 - 掲載終了 - 掲載終了 library_books
2階
grade
2階 108.67坪
(統合案)
事務所 - 掲載終了 - 掲載終了 library_books
2階
grade
2階 75.9坪
(統合案)
事務所兼店舗 - 掲載終了 - 掲載終了 library_books
2階
grade
1階 77.5坪
(統合案)
事務所兼店舗 - 掲載終了 - 掲載終了 library_books
1階
grade
1階 52.7坪 事務所兼店舗 - 掲載終了 - 掲載終了 library_books
1階
grade
1階 24.8坪 事務所兼店舗 - 掲載終了 - 掲載終了 library_books
1階
grade
1階 139.1坪
(統合案)
事務所兼店舗 - 掲載終了 - 掲載終了 grade
1階 53.3坪 事務所 - 掲載終了 - 掲載終了 grade
1階 43.3坪 事務所 - 掲載終了 - 掲載終了 grade
掲載終了した区画

JR金沢駅西第四NKビル 2階 賃貸オフィス・事務所に関するお問い合わせ

076-224-6310

平日 9:00〜17:30

シービーアールイー株式会社
金沢支店

〒920-0031 石川県金沢市広岡3丁目3番11号 JR金沢駅西第四NKビル5階
免許番号:宅地建物取引業 国土交通大臣免許 (15) 第1075号

この空室をお問い合わせ

オフィスの移転・新規拠点開設はシービーアールイーにご相談ください。最適なオフィスソリューションとサポートを提供いたします。

JR金沢駅西第四NKビルの動画

JR金沢駅西第四NKビルの360度バーチャル内覧

JR金沢駅西第四NKビルの概要

外資系ホテル・公共放送機関が開業、さらには2023年日本銀行が移転予定と、いま最も注目される駅西再開発地区。2022年9月、県下初の「CASBEE‐ウェルネスオフィス認証最高位Sランク」を取得し、北陸最大規模・貸室総面積6,000坪超を誇るハイスペックビルがついに竣工した。本ビル外観は金沢伝統工芸である友禅流しをコンセプトイメージした金沢の街並みに調和するデザイン、天井高約8mの圧倒的大空間を有するエントランスには、機能性と空間を生かしたエスカレータ動線を組み込む。全フロアにリフレッシュエリアを確保しワーカーが過ごしやすい空間や最新設計設備を備え、大規模災害に備えたBCP対策として、停電時間を最小限に抑える2回線受電方式の導入・非常用発電機による最長72時間(貸室内12VA/㎡)電力提供、断水時もトイレ利用可能な井戸水確保のほか、機械室/防災センター/防災備蓄倉庫の浸水対策をも講じた設計を採用することで、利用者の安心・安全・快適性を追求した。基準階区画は最小約25坪から最大約678坪のワンフロア仕様まで幅広く対応。センターコアを採用しバリエーション豊かで多彩なレイアウトが可能となる。

JR金沢駅西第四NKビルを見た方が合わせてチェックしている物件

Hirooka Terrace(広岡テラス)

石川県金沢市広岡2-12-6

金沢駅 5分
37~237坪

金沢パークビル

石川県金沢市広岡3-1-1

金沢駅 3分
30~157坪

JR金沢駅西第三NKビル

石川県金沢市広岡2-13-33

金沢駅 7分
24~161坪

NCO金沢

石川県金沢市西念1-1-8

金沢駅 8分
15~151坪

ヴィサージュ

石川県金沢市昭和町16-1

金沢駅 3分
28~266坪

コンフィデンス金沢

石川県金沢市西念1-1-3

金沢駅 7分
21~73坪

JR金沢駅西第一NKビル

石川県金沢市広岡3-3-77

金沢駅 3分

ウレシャス小松

石川県小松市日の出町1-100

小松駅 1分
57坪

※賃料、共益費は別途消費税の対象となります。 / ※階数や区画によって賃貸条件が異なる場合がございます。 / ※統合・分割区画は、別途条件がある場合がありますので、詳細はお問い合わせください。 / ※募集状況は変動があるため、お問い合わせをいただいた時点でご紹介ができない場合があります。 / ※賃貸条件や建物設備は変更することがあるため、ご契約内容の詳細は各建物の賃貸借契約書等でご確認ください。 / ※当サイトでは1983年以降に竣⼯した建物を「新耐震基準」と分類しています。 / ※端数処理の関係で、賃貸条件、建物・区画⾯積に誤差が⽣じる場合があります。 / ※掲載内容が現況と異なる場合は現況を優先いたします。 / ※契約成⽴の場合、法令に定める基準に従い仲介⼿数料を申し受けます。(⼀部例外もございます。)

この物件をお問い合わせ
チェックした物件をまとめてお問い合わせ