03-5288-9520

平日 9:00〜17:30

物件を探す

事業用不動産のあらゆるニーズを網羅するサービスと豊富な実績で、お客様の課題を解決する最適なソリューションをご提案いたします。

お役立ち情報

CBREが手掛けた、さまざまな業種・規模の移転事例のご紹介を始め、オフィスや物流拠点の移転に役立つ資料・情報をご提供しています。

マーケット情報

独自収集したデータを元に、不動産マーケットの市況を分析予測し、市場変化をいち早く捉え、ポイントをまとめた市場レポートを配信しています。
また、物件レポート、業界トレンド情報など、事業用不動産の最新情報、トレンドを配信しています。

CBREについて

事業用不動産の分野において、世界有数の企業であるCBRE。日本国内におけるその強み、拠点、会社概要をご紹介します。

ヘルプ

物件検索の使い方や、会員サービス、よくあるご質問など、当サイトをより便利にご利用いただくための情報をご紹介します。

仲介会社様はこちら
掲載終了 賃貸オフィス 物件番号 113109050076

アーバンネット五反田NNビル 1階 88.03坪

平日 9:00〜17:30 03-5288-9520
専門家に相談してみる
  • 更新を通知
  • URLを共有
アーバンネット五反田NNビル 1階は掲載終了しました

アーバンネット五反田NNビル 1階に類似した物件を非公開物件から紹介致します

不動産業界では様々な理由で一般公開前の非公開物件があります

  • 募集の準備が整っていない
  • オーナー意向で空室情報を公開していない
  • オーナーに伝わる前の解約予告情報

以上の理由からCBREが仲介する法人向け事業用物件には、WEBに公開できない空き情報があります。
お問い合わせ頂いたお客様に限り、鮮度の高い先行物件をご案内しております。

非公開物件のお問い合わせ
基準階 平面図 基準階 平面図
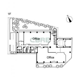
1階 平面図 1階 平面図
1/ 2
  • 基準階 平面図
  • 1階 平面図
外観 外観
内観 内観
内観 内観
内観 内観
内観 内観
内観 内観
内観 内観
駐車場 駐車場
共用設備 共用設備
共用設備 共用設備
共用設備 共用設備
1/ 11
  • 外観
  • 内観
  • 内観
  • 内観
  • 内観
  • 内観
  • 内観
  • 駐車場
  • 共用設備
  • 共用設備
  • 共用設備
賃貸条件
募集階 1階
募集面積 88.03坪 / 291.02m2
空室用途 事務所
賃料・保証金等 -
入居時期 -
取引態様 -
情報更新日 2021年12月16日
物件概要
物件名 アーバンネット五反田NNビル
所在地 東京都品川区西五反田3-7-10
最寄り駅 山手線 五反田駅 徒歩8分
東急目黒線 不動前駅 徒歩7分
東急池上線 大崎広小路駅 徒歩8分
竣工年月 1989年8月
規模 地上8階 地下1階
構造 鉄骨鉄筋コンクリート造
基準階面積 272.79坪 / 901.79m2
延床面積 2,915.51坪 / 9,638.05m2
警備 機械警備・有人警備併用
駐車場 あり 最大 23台
エレベーター数 3基
基準天井高 2,600mm
基準床荷重 300kg/m2
空調 冷房: 個別空調 / 暖房: 個別空調
こだわり条件について

募集区画

選択 面積 空室用途 月額賃料・共益費 坪単価 入居時期 取引態様 図面 お気に入り
8階 272.95坪 事務所 - 掲載終了 - 掲載終了 grade
7階 272.95坪 事務所 - 掲載終了 - 掲載終了 grade
6階 272.79坪 事務所 - 掲載終了 - 掲載終了 grade
5階 272.79坪 事務所 - 掲載終了 - 掲載終了 grade
4階 272.48坪 事務所 - 掲載終了 - 掲載終了 grade
4階 115.05坪
(分割案)
事務所 - 掲載終了 - 掲載終了 grade
4階 157.43坪
(分割案)
事務所 - 掲載終了 - 掲載終了 grade
4階 157.43坪 事務所 - 掲載終了 - 掲載終了 grade
3階 157.43坪 事務所 - 掲載終了 - 掲載終了 grade
3階 115.05坪 事務所 - 掲載終了 - 掲載終了 grade
2階 257.37坪 事務所 - 掲載終了 - 掲載終了 grade
2階 114.99坪 事務所 - 掲載終了 - 掲載終了 grade
2階 142.38坪
(分割案)
事務所 - 掲載終了 - 掲載終了 grade
1階 88.03坪 事務所 - 掲載終了 - 掲載終了 library_books
1階
grade

アーバンネット五反田NNビル 1階 賃貸オフィス・事務所に関するお問い合わせ

03-5288-9520

平日 9:00〜17:30

シービーアールイー株式会社
東京本社 オフィス

〒100-0005 東京都千代田区丸の内2-1-1 明治安田生命ビル 21F
免許番号:宅地建物取引業 国土交通大臣免許 (15) 第1075号

この空室をお問い合わせ

オフィスの移転・新規拠点開設はシービーアールイーにご相談ください。最適なオフィスソリューションとサポートを提供いたします。

アーバンネット五反田NNビルの概要

アーバンネット五反田NNビルは、JR五反田駅から徒歩9分、都営浅草線五反田駅から徒歩7分という好立地に位置するオフィスビルです。鉄骨鉄筋コンクリート造の地下1階地上8階建てで、延床面積は2,915.51坪です。基準階面積は272.79坪で、広々としたオフィスを構えることが可能です。周辺には、飲食店やコンビニエンスストア、銀行など、生活に必要な施設が充実しています。また、五反田駅周辺には、多くの企業や商店が集積しており、ビジネスに最適な環境です。

アーバンネット五反田NNビルを見た方が合わせてチェックしている物件

HF八丁堀ビルディング

東京都中央区八丁堀3-12-8

八丁堀駅 3分

東宝日比谷ビル(日比谷シャンテ)

東京都千代田区有楽町1-2-2

日比谷駅 2分

大樹生命町田ビル

東京都町田市森野1-7-23

町田駅 6分
63坪

GRC品川イノベーションパーク

東京都品川区東品川4-12-2

品川シーサイド駅 2分
87~434坪

日本橋浜町プレイス

東京都中央区日本橋浜町1-2-1

東日本橋駅 3分

コーンズハウス2

東京都港区芝3-5-1

芝公園駅 1分
136坪

東京トラフィック錦糸町ビル

東京都墨田区江東橋4-26-5

錦糸町駅 2分
81坪

住友五反田ビル

東京都品川区西五反田7-1-1

五反田駅 8分
99~128坪

※賃料、共益費は別途消費税の対象となります。 / ※階数や区画によって賃貸条件が異なる場合がございます。 / ※統合・分割区画は、別途条件がある場合がありますので、詳細はお問い合わせください。 / ※募集状況は変動があるため、お問い合わせをいただいた時点でご紹介ができない場合があります。 / ※賃貸条件や建物設備は変更することがあるため、ご契約内容の詳細は各建物の賃貸借契約書等でご確認ください。 / ※当サイトでは1983年以降に竣⼯した建物を「新耐震基準」と分類しています。 / ※端数処理の関係で、賃貸条件、建物・区画⾯積に誤差が⽣じる場合があります。 / ※掲載内容が現況と異なる場合は現況を優先いたします。 / ※契約成⽴の場合、法令に定める基準に従い仲介⼿数料を申し受けます。(⼀部例外もございます。)

この物件をお問い合わせ
チェックした物件をまとめてお問い合わせ