03-5288-9520

平日 9:00〜17:30

物件を探す

事業用不動産のあらゆるニーズを網羅するサービスと豊富な実績で、お客様の課題を解決する最適なソリューションをご提案いたします。

お役立ち情報

CBREが手掛けた、さまざまな業種・規模の移転事例のご紹介を始め、オフィスや物流拠点の移転に役立つ資料・情報をご提供しています。

マーケット情報

独自収集したデータを元に、不動産マーケットの市況を分析予測し、市場変化をいち早く捉え、ポイントをまとめた市場レポートを配信しています。
また、物件レポート、業界トレンド情報など、事業用不動産の最新情報、トレンドを配信しています。

CBREについて

事業用不動産の分野において、世界有数の企業であるCBRE。日本国内におけるその強み、拠点、会社概要をご紹介します。

ヘルプ

物件検索の使い方や、会員サービス、よくあるご質問など、当サイトをより便利にご利用いただくための情報をご紹介します。

仲介会社様はこちら
掲載終了 賃貸オフィス 物件番号 113103086002

プライムテラス神谷町 9階 62.1坪

平日 9:00〜17:30 03-5288-9520
専門家に相談してみる
  • 更新を通知
  • URLを共有
プライムテラス神谷町 9階は掲載終了しました

プライムテラス神谷町 9階に類似した物件を非公開物件から紹介致します

不動産業界では様々な理由で一般公開前の非公開物件があります

  • 募集の準備が整っていない
  • オーナー意向で空室情報を公開していない
  • オーナーに伝わる前の解約予告情報

以上の理由からCBREが仲介する法人向け事業用物件には、WEBに公開できない空き情報があります。
お問い合わせ頂いたお客様に限り、鮮度の高い先行物件をご案内しております。

非公開物件のお問い合わせ
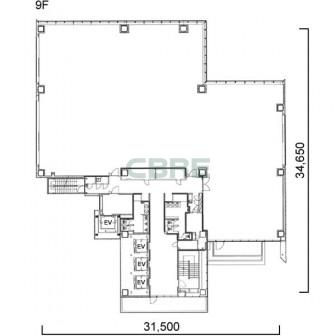
基準階 平面図 基準階 平面図
9階 平面図 9階 平面図
1/ 2
  • 基準階 平面図
  • 9階 平面図
外観 外観
エレベーターホール エレベーターホール
トイレ トイレ
給湯室 給湯室
荷物用昇降設備 荷物用昇降設備
共用設備 共用設備
共用設備 共用設備
1/ 7
  • 外観
  • エレベーターホール
  • トイレ
  • 給湯室
  • 荷物用昇降設備
  • 共用設備
  • 共用設備
賃貸条件
募集階 9階
募集面積 62.1坪 / 205.29m2
空室用途 事務所
賃料・保証金等 -
入居時期 -
取引態様 -
情報更新日 2022年5月6日
空室概要
天井高 3,000mm
床荷重 500kg/m2
物件概要
物件名 プライムテラス神谷町
所在地 東京都港区虎ノ門4-1-13
最寄り駅 東京メトロ日比谷線 神谷町駅 徒歩2分
竣工年月 2020年11月
規模 地上10階 地下1階
構造 鉄骨造
基準階面積 202.0坪 / 667.77m2
延床面積 2,770.0坪 / 9,157.04m2
警備 機械警備
駐車場 機械式 最大 25台
エレベーター数 4基
基準天井高 2,850mm
基準床荷重 500kg/m2
空調 冷房: 個別空調 / 暖房: 個別空調
こだわり条件について

募集区画

選択 面積 空室用途 月額賃料・共益費 坪単価 入居時期 取引態様 図面 お気に入り
10階 202.97坪 事務所 - 掲載終了 - 掲載終了 library_books
10階
grade
9階 202.97坪 事務所 - 掲載終了 - 掲載終了 library_books
9階
grade
9階 133.94坪
(統合案)
事務所 - 掲載終了 - 掲載終了 library_books
9階
grade
9階 71.84坪 事務所 - 掲載終了 - 掲載終了 library_books
9階
grade
9階 62.1坪 事務所 - 掲載終了 - 掲載終了 library_books
9階
grade
9階 69.02坪
(分割案)
事務所 - 掲載終了 - 掲載終了 library_books
9階
grade
8階 202.97坪 事務所 - 掲載終了 - 掲載終了 library_books
8階
grade
7階 202.97坪 事務所 - 掲載終了 - 掲載終了 library_books
7階
grade
6階 201.16坪 事務所 - 掲載終了 - 掲載終了 library_books
6階
grade
5階 202.97坪 事務所 - 掲載終了 - 掲載終了 library_books
5階
grade
4階 71.84坪
(分割案)
事務所 - 掲載終了 - 掲載終了 library_books
4階
grade
4階 202.97坪 事務所 - 掲載終了 - 掲載終了 library_books
4階
grade
4階 131.13坪
(分割案)
事務所 - 掲載終了 - 掲載終了 library_books
4階
grade
3階 62.11坪
(分割案)
事務所 - 掲載終了 - 掲載終了 library_books
3階
grade
3階 133.95坪
(統合案)
事務所 - 掲載終了 - 掲載終了 library_books
3階
grade
3階 62.11坪 事務所 - 掲載終了 - 掲載終了 library_books
3階
grade
3階 71.84坪 事務所 - 掲載終了 - 掲載終了 library_books
3階
grade
3階 71.84坪
(分割案)
事務所 - 掲載終了 - 掲載終了 library_books
3階
grade
3階 133.95坪 事務所 - 掲載終了 - 掲載終了 library_books
3階
grade
2階 161.96坪 事務所 - 掲載終了 - 掲載終了 library_books
2階
grade

プライムテラス神谷町 9階 賃貸オフィス・事務所に関するお問い合わせ

03-5288-9520

平日 9:00〜17:30

シービーアールイー株式会社
東京本社 オフィス

〒100-0005 東京都千代田区丸の内2-1-1 明治安田生命ビル 21F
免許番号:宅地建物取引業 国土交通大臣免許 (15) 第1075号

この空室をお問い合わせ

オフィスの移転・新規拠点開設はシービーアールイーにご相談ください。最適なオフィスソリューションとサポートを提供いたします。

プライムテラス神谷町を見た方が合わせてチェックしている物件

住友不動産芝公園タワー

東京都港区芝公園2-11-1

芝公園駅 2分
269坪

西新橋PR-EX

東京都港区西新橋2-4-12

内幸町駅 5分
40坪

菱進御成門ビル

東京都港区新橋6-17-15

御成門駅 1分
252坪

住友芝公園ビル

東京都港区芝2-7-17

芝公園駅 1分
294~412坪

パークコート浜離宮ザタワー

東京都港区浜松町1

浜松町駅 5分

麻布台ヒルズ レジデンスB S-Office

東京都港区麻布台1-1-1

六本木一丁目駅
11~32坪

住友不動産虎ノ門タワー

東京都港区虎ノ門2-2-1

虎ノ門駅 5分

青海フロンティアビル

東京都江東区青海2-4-24

テレコムセンター駅 1分
104~415坪

※賃料、共益費は別途消費税の対象となります。 / ※階数や区画によって賃貸条件が異なる場合がございます。 / ※統合・分割区画は、別途条件がある場合がありますので、詳細はお問い合わせください。 / ※募集状況は変動があるため、お問い合わせをいただいた時点でご紹介ができない場合があります。 / ※賃貸条件や建物設備は変更することがあるため、ご契約内容の詳細は各建物の賃貸借契約書等でご確認ください。 / ※当サイトでは1983年以降に竣⼯した建物を「新耐震基準」と分類しています。 / ※端数処理の関係で、賃貸条件、建物・区画⾯積に誤差が⽣じる場合があります。 / ※掲載内容が現況と異なる場合は現況を優先いたします。 / ※契約成⽴の場合、法令に定める基準に従い仲介⼿数料を申し受けます。(⼀部例外もございます。)

この物件をお問い合わせ
チェックした物件をまとめてお問い合わせ