03-5288-9520

平日 9:00〜17:30

物件を探す

事業用不動産のあらゆるニーズを網羅するサービスと豊富な実績で、お客様の課題を解決する最適なソリューションをご提案いたします。

お役立ち情報

CBREが手掛けた、さまざまな業種・規模の移転事例のご紹介を始め、オフィスや物流拠点の移転に役立つ資料・情報をご提供しています。

マーケット情報

独自収集したデータを元に、不動産マーケットの市況を分析予測し、市場変化をいち早く捉え、ポイントをまとめた市場レポートを配信しています。
また、物件レポート、業界トレンド情報など、事業用不動産の最新情報、トレンドを配信しています。

CBREについて

事業用不動産の分野において、世界有数の企業であるCBRE。日本国内におけるその強み、拠点、会社概要をご紹介します。

ヘルプ

物件検索の使い方や、会員サービス、よくあるご質問など、当サイトをより便利にご利用いただくための情報をご紹介します。

仲介会社様はこちら
掲載終了 賃貸オフィス 物件番号 111103010256

明治安田生命大宮吉敷町ビル 5階 33.98坪

平日 9:00〜17:30 03-5288-9520
専門家に相談してみる
  • 更新を通知
  • URLを共有
明治安田生命大宮吉敷町ビル 5階は掲載終了しました

明治安田生命大宮吉敷町ビル 5階に類似した物件を非公開物件から紹介致します

不動産業界では様々な理由で一般公開前の非公開物件があります

  • 募集の準備が整っていない
  • オーナー意向で空室情報を公開していない
  • オーナーに伝わる前の解約予告情報

以上の理由からCBREが仲介する法人向け事業用物件には、WEBに公開できない空き情報があります。
お問い合わせ頂いたお客様に限り、鮮度の高い先行物件をご案内しております。

非公開物件のお問い合わせ
外観 外観
1/ 1
  • 外観
賃貸条件
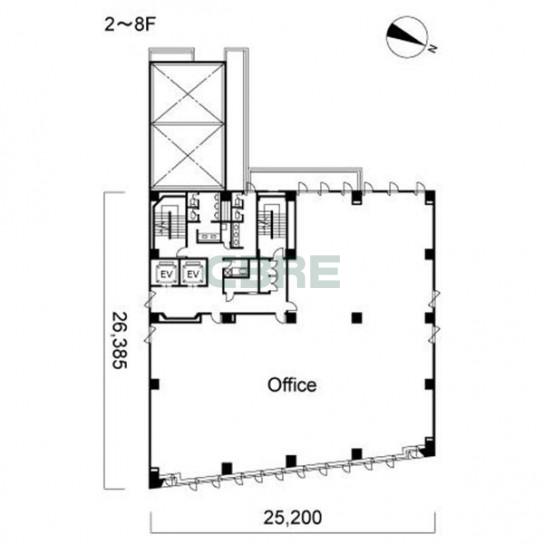
募集階 5階
募集面積 33.98坪 / 112.33m2
空室用途 事務所
賃料・保証金等 -
入居時期 -
取引態様 -
情報更新日 2016年10月31日
空室概要
天井高 2,500mm
床荷重 300kg/m2
物件概要
物件名 明治安田生命大宮吉敷町ビル
所在地 埼玉県さいたま市大宮区吉敷町1-31-1
最寄り駅 埼京線 大宮駅 徒歩10分
京浜東北・根岸線 さいたま新都心駅 徒歩13分
埼京線 北与野駅 徒歩19分
竣工年月 1989年10月
規模 地上8階
構造 鉄骨鉄筋コンクリート造
基準階面積 147.31坪 / 486.99m2
延床面積 1,821.84坪 / 6,022.62m2
警備 機械警備
駐車場 機械式 最大 64台
エレベーター数 2基
基準天井高 2,550mm
基準床荷重 300kg/m2
空調 冷房: 個別空調 / 暖房: 個別空調
こだわり条件について

募集区画

選択 面積 空室用途 月額賃料・共益費 坪単価 入居時期 取引態様 図面 お気に入り
7階 34.56坪 事務所 - 掲載終了 - 掲載終了 library_books
7階
grade
5階 33.98坪 事務所 - 掲載終了 - 掲載終了 grade
5階 51.08坪 事務所 - 掲載終了 - 掲載終了 library_books
5階
grade
2階 34.58坪 事務所 - 掲載終了 - 掲載終了 library_books
2階
grade
2階 51.27坪 事務所 - 掲載終了 - 掲載終了 library_books
2階
grade

明治安田生命大宮吉敷町ビル 5階 賃貸オフィス・事務所に関するお問い合わせ

03-5288-9520

平日 9:00〜17:30

シービーアールイー株式会社
物件探しのご相談

〒100-0005 東京都千代田区丸の内2-1-1 明治安田生命ビル 21F
免許番号:宅地建物取引業 国土交通大臣免許 (15) 第1075号

この空室をお問い合わせ

オフィスの移転・新規拠点開設はシービーアールイーにご相談ください。最適なオフィスソリューションとサポートを提供いたします。

明治安田生命大宮吉敷町ビルを見た方が合わせてチェックしている物件

キュポ・ラ専門店A

埼玉県川口市川口1-1-1

川口駅 2分

(仮称)桜木PPJ オフィス棟

埼玉県さいたま市大宮区桜木町3-1-1

大宮駅 6分

アーバン・V北与野ビル

埼玉県さいたま市中央区上落合2-11-27

北与野駅 2分

ソニックシティビル

埼玉県さいたま市大宮区桜木町1-7-5

大宮駅 4分

シーノ大宮ノースウィング

埼玉県さいたま市大宮区桜木町1-10-16

大宮駅 5分

小山ビル

埼玉県さいたま市北区東大成町1-556


大宮サウスゲートフロント

埼玉県さいたま市中央区新都心7-2

さいたま新都心駅 7分
41~502坪

イーストゲート大宮ビル(A館)

埼玉県さいたま市大宮区宮町2-23

大宮駅 4分

※賃料、共益費は別途消費税の対象となります。 / ※階数や区画によって賃貸条件が異なる場合がございます。 / ※統合・分割区画は、別途条件がある場合がありますので、詳細はお問い合わせください。 / ※募集状況は変動があるため、お問い合わせをいただいた時点でご紹介ができない場合があります。 / ※賃貸条件や建物設備は変更することがあるため、ご契約内容の詳細は各建物の賃貸借契約書等でご確認ください。 / ※当サイトでは1983年以降に竣⼯した建物を「新耐震基準」と分類しています。 / ※端数処理の関係で、賃貸条件、建物・区画⾯積に誤差が⽣じる場合があります。 / ※掲載内容が現況と異なる場合は現況を優先いたします。 / ※契約成⽴の場合、法令に定める基準に従い仲介⼿数料を申し受けます。(⼀部例外もございます。)

この物件をお問い合わせ
チェックした物件をまとめてお問い合わせ