物件を探す

事業用不動産のあらゆるニーズを網羅するサービスと豊富な実績で、お客様の課題を解決する最適なソリューションをご提案いたします。

お役立ち情報

CBREが手掛けた、さまざまな業種・規模の移転事例のご紹介を始め、オフィスや物流拠点の移転に役立つ資料・情報をご提供しています。

マーケット情報

独自収集したデータを元に、不動産マーケットの市況を分析予測し、市場変化をいち早く捉え、ポイントをまとめた市場レポートを配信しています。
また、物件レポート、業界トレンド情報など、事業用不動産の最新情報、トレンドを配信しています。

CBREについて

事業用不動産の分野において、世界有数の企業であるCBRE。日本国内におけるその強み、拠点、会社概要をご紹介します。

ヘルプ

物件検索の使い方や、会員サービス、よくあるご質問など、当サイトをより便利にご利用いただくための情報をご紹介します。

仲介会社様はこちら
賃貸オフィス 仲介手数料0円 物件番号 nc107201010036

福島セントランドビル 10階 26.87坪 | 仲介手数料0円オフィス

  • 更新を通知
  • URLを共有
基準階 平面図 基準階 平面図
10階 平面図 10階 平面図
1/ 2
  • 基準階 平面図
  • 10階 平面図
外観 外観
1/ 1
  • 外観
賃貸条件
募集階 10階
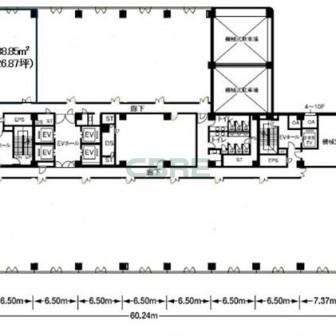
募集面積 26.87坪 / 88.83m2
空室用途 事務所
賃料 相談
共益費 賃料に込み
賃料+共益費 相談
入居時期 即入居可
取引態様 媒介
情報更新日 2026年3月3日
物件概要
物件名 福島セントランドビル
所在地 福島県福島市栄町6-6
最寄り駅 東北本線 福島駅 徒歩1分
竣工年月 1994年10月
規模 地上10階 地下2階
構造 鉄骨鉄筋コンクリート造
基準階面積 443.77坪 / 1,467.01m2
延床面積 7,536.01坪 / 24,912.4m2
警備 機械警備・有人警備併用
駐車場 機械式 最大 154台
エレベーター数 6基
基準天井高 2,600mm
基準床荷重 300kg/m2
空調 冷房: フロア毎空調 / 暖房: フロア毎空調
備考 ■福島駅(東口)前の好立地 ■管理人常駐 ■1階店舗、2階クリニック・オフィス 、3階~10階オフィス ■喫煙所、貸会議室あり
  • 駅1分
  • 新耐震
  • 即入居可
  • 基準階300坪以上
こだわり条件について

募集区画

選択 面積 空室用途 月額賃料・共益費 坪単価 入居時期 取引態様 図面 お気に入り
10階 26.75坪 事務所 相談 相談 即入居可 媒介 library_books
10階
grade
10階 26.87坪 事務所 相談 相談 即入居可 媒介 library_books
10階
grade
10階 26.87坪 事務所 相談 相談 即入居可 媒介 library_books
10階
grade
7階 26.87坪 事務所 相談 相談 即入居可 媒介 library_books
7階
grade
5階 53.75坪 事務所 相談 相談 即入居可 媒介 library_books
5階
grade
5階 26.87坪 事務所 相談 相談 即入居可 媒介 library_books
5階
grade
4階 33.8坪 事務所 相談 相談 即入居可 媒介 library_books
4階
grade
3階 26.87坪 事務所 相談 相談 即入居可 媒介 grade
1階 55.08坪 事務所 相談 相談 即入居可 媒介 grade
選択 面積 空室用途 月額賃料・共益費 坪単価 入居時期 取引態様 図面 お気に入り
7階 26.87坪 事務所 - 掲載終了 - 掲載終了 library_books
7階
grade
7階 26.87坪 事務所 - 掲載終了 - 掲載終了 library_books
7階
grade
7階 18.49坪 事務所 - 掲載終了 - 掲載終了 library_books
7階
grade
7階 33.8坪 事務所 - 掲載終了 - 掲載終了 library_books
7階
grade
6階 87.56坪 事務所 - 掲載終了 - 掲載終了 library_books
6階
grade
5階 53.75坪 事務所 - 掲載終了 - 掲載終了 library_books
5階
grade
5階 26.87坪 事務所 - 掲載終了 - 掲載終了 library_books
5階
grade
5階 80.51坪 事務所 - 掲載終了 - 掲載終了 library_books
5階
grade
5階 25.17坪 事務所 - 掲載終了 - 掲載終了 library_books
5階
grade
4階 53.63坪 事務所 - 掲載終了 - 掲載終了 library_books
4階
grade
2階 60.68坪 事務所 - 掲載終了 - 掲載終了 library_books
2階
grade
掲載終了した仲介手数料0円オフィス区画

福島セントランドビル 10階 賃貸オフィス・事務所に関するお問い合わせ

シービーアールイー株式会社
仙台支店

〒980-0021 宮城県仙台市青葉区中央1-2-3 仙台マークワン 16F
免許番号:宅地建物取引業 国土交通大臣免許 (15) 第1075号

この空室をお問い合わせ

オフィスの移転・新規拠点開設はシービーアールイーにご相談ください。最適なオフィスソリューションとサポートを提供いたします。

仲介⼿数料無料のクイックサポート

  • CBRE担当者が非対面でお客様とコミュニケーションを行い、資料提供から契約締結までをクイックにサポートします。
  • 内覧は、直接物件オーナーや管理会社と⾏なっていただき、CBREでは⽴会いを⾏いません
  • ⼿数料無料物件で契約される場合でも、CBREが重要事項説明を行い、取引の安全性を確保いたします。

仲介手数料0円オフィスは、以下の利用条件に同意されたお客様にご利用いただけるオフィス用途限定のサービスです。

  • 過去3ヶ月以内にCBREの営業から問合せ物件の紹介・案内・交渉等を受けていません。
  • 現地内覧にはCBREは立ち会いません。
  • お客様とのコミュニケーションは原則非対面で行います。

仲介⼿数料有料物件ではCBREの営業がお客様のご移転を徹底サポート!

  • ⾮公開物件を含めた、お客様の条件にマッチする物件を紹介できます。
    業界随⼀のネットワークとデータベースを駆使した情報⼒には自信があります。
  • 複数物件の内覧など、お客様の要望に合わせて内覧⽇程を調整します。
    また、CBREの営業が同⾏しプロの視点でおさえるべきポイントをアドバイスいたします。
  • あらゆる⾓度からの⽐較検討材料を提供し選定根拠の明確化を⾏います。
  • 約10万件の契約実績に基づくノウハウをベースに、競争原理のもと有利な交渉条件を引き出します。
  • 豊富な経験と専門性を持つプロフェッショナルが、取引の安全性を確保しつつ、お客様の利益の最大化を図ります。

福島セントランドビルの360度バーチャル内覧

福島セントランドビルの概要

福島駅『東口』から徒歩1分の好立地にあり、当ビル地下からは駅前ビル広場まで直結となっております。管理人も常駐しており、機械式駐車場、喫煙所、会議室等オフィスのスペックは十分に備わっている物件となっております。

※賃料、共益費は別途消費税の対象となります。 / ※階数や区画によって賃貸条件が異なる場合がございます。 / ※統合・分割区画は、別途条件がある場合がありますので、詳細はお問い合わせください。 / ※募集状況は変動があるため、お問い合わせをいただいた時点でご紹介ができない場合があります。 / ※賃貸条件や建物設備は変更することがあるため、ご契約内容の詳細は各建物の賃貸借契約書等でご確認ください。 / ※当サイトでは1983年以降に竣⼯した建物を「新耐震基準」と分類しています。 / ※端数処理の関係で、賃貸条件、建物・区画⾯積に誤差が⽣じる場合があります。 / ※掲載内容が現況と異なる場合は現況を優先いたします。

この物件をお問い合わせ
チェックした物件をまとめてお問い合わせ