092-686-6950

平日 9:00〜17:30

物件を探す

事業用不動産のあらゆるニーズを網羅するサービスと豊富な実績で、お客様の課題を解決する最適なソリューションをご提案いたします。

お役立ち情報

CBREが手掛けた、さまざまな業種・規模の移転事例のご紹介を始め、オフィスや物流拠点の移転に役立つ資料・情報をご提供しています。

マーケット情報

独自収集したデータを元に、不動産マーケットの市況を分析予測し、市場変化をいち早く捉え、ポイントをまとめた市場レポートを配信しています。
また、物件レポート、業界トレンド情報など、事業用不動産の最新情報、トレンドを配信しています。

CBREについて

事業用不動産の分野において、世界有数の企業であるCBRE。日本国内におけるその強み、拠点、会社概要をご紹介します。

ヘルプ

物件検索の使い方や、会員サービス、よくあるご質問など、当サイトをより便利にご利用いただくための情報をご紹介します。

仲介会社様はこちら
セットアップ 物件番号 140132010059_0000855283

Crobis博多 セットアップオフィス

平日 9:00〜17:30 092-686-6950
専門家に相談してみる
  • URLを共有

引渡しをフルセットアップ仕様かハーフセットアップ仕様かで選べます!

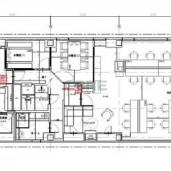
執務室-1※注釈有 執務室-1※注釈有
会議室(1)※注釈有 会議室(1)※注釈有
会議室(2)-1※注釈有 会議室(2)-1※注釈有
会議室(2)-1'※注釈有 会議室(2)-1'※注釈有
執務室-3※注釈有 執務室-3※注釈有
執務室-5※注釈有 執務室-5※注釈有
執務室-5'※注釈有 執務室-5'※注釈有
執務室-5''※注釈有 執務室-5''※注釈有
執務室-7※注釈有 執務室-7※注釈有
リフレッシュエリア-1※注釈有 リフレッシュエリア-1※注釈有
エントランス-1※注釈有 エントランス-1※注釈有
エントランス-3※注釈有 エントランス-3※注釈有
女子トイレ-1 女子トイレ-1
女子トイレ-2 女子トイレ-2
男子トイレ-1 男子トイレ-1
男子トイレ-2 男子トイレ-2
3Fレイアウト 3Fレイアウト
1/ 17
  • 執務室-1※注釈有
  • 会議室(1)※注釈有
  • 会議室(2)-1※注釈有
  • 会議室(2)-1'※注釈有
  • 執務室-3※注釈有
  • 執務室-5※注釈有
  • 執務室-5'※注釈有
  • 執務室-5''※注釈有
  • 執務室-7※注釈有
  • リフレッシュエリア-1※注釈有
  • エントランス-1※注釈有
  • エントランス-3※注釈有
  • 女子トイレ-1
  • 女子トイレ-2
  • 男子トイレ-1
  • 男子トイレ-2
  • 3Fレイアウト
物件概要
所在地 福岡県福岡市博多区中洲5-4-18
最寄り駅 市営地下鉄空港線 中洲川端駅 徒歩3分
竣工年月 1983年5月
規模 地上8階
構造 鉄骨造
特徴 受付スペース、ワークポイント27席、会議室(6名用×2)、簡易応接(2名用×1)、フォンブース×2の什器付きフルセットアップ仕様か、もしくは、造作壁設置済みのハーフセットアップ仕様(什器はご契約者様にてご用意)からお選びいただけます。
面積 45.76坪
備考 3F 45.76坪
取引態様 媒介
情報更新日 2026年2月17日
こだわり条件について

Crobis博多 セットアップオフィスの賃貸オフィス・事務所に関するお問い合わせ

092-686-6950

平日 9:00〜17:30

シービーアールイー株式会社
福岡支店

〒810-0001 福岡市中央区天神2丁目8番35号 天神住友生命FJビジネスセンター 11階
免許番号:宅地建物取引業 国土交通大臣免許 (15) 第1075号

この物件をお問い合わせ

オフィスの移転・新規拠点開設はシービーアールイーにご相談ください。最適なオフィスソリューションとサポートを提供いたします。

Crobis博多 セットアップオフィスを見た方が合わせてチェックしている物件

Crobis博多

福岡県福岡市博多区中洲5-4-18

中洲川端駅 3分
46坪

サンライトビル

福岡県福岡市中央区渡辺通5-23-8

天神駅 6分
57~104坪

オーキッドプレイス天神南

福岡県福岡市中央区高砂2-1

渡辺通駅 8分
26~59坪

小倉京町センタービル

福岡県北九州市小倉北区京町3-14-8

小倉駅 5分
28~164坪

OZUビル赤坂

福岡県福岡市中央区赤坂1-13-35

赤坂駅 2分
43坪

アクロス福岡

福岡県福岡市中央区天神1-1-1

天神駅 3分
22~336坪

グランドタワー西博多ビル

福岡県福岡市博多区住吉4-29-22

渡辺通駅 11分
40~173坪

N天神ビル

福岡県福岡市中央区天神3-7-31

天神駅 6分
65坪

近隣のエリアから居抜きを探す

※賃料、共益費は別途消費税の対象となります。 / ※階数や区画によって賃貸条件が異なる場合がございます。 / ※統合・分割区画は、別途条件がある場合がありますので、詳細はお問い合わせください。 / ※募集状況は変動があるため、お問い合わせをいただいた時点でご紹介ができない場合があります。 / ※賃貸条件や建物設備は変更することがあるため、ご契約内容の詳細は各建物の賃貸借契約書等でご確認ください。 / ※当サイトでは1983年以降に竣⼯した建物を「新耐震基準」と分類しています。 / ※端数処理の関係で、賃貸条件、建物・区画⾯積に誤差が⽣じる場合があります。 / ※掲載内容が現況と異なる場合は現況を優先いたします。 / ※契約成⽴の場合、法令に定める基準に従い仲介⼿数料を申し受けます。(⼀部例外もございます。)

この物件をお問い合わせ
チェックした物件をまとめてお問い合わせ