06-6292-1720

平日 9:00〜17:30

物件を探す

事業用不動産のあらゆるニーズを網羅するサービスと豊富な実績で、お客様の課題を解決する最適なソリューションをご提案いたします。

お役立ち情報

CBREが手掛けた、さまざまな業種・規模の移転事例のご紹介を始め、オフィスや物流拠点の移転に役立つ資料・情報をご提供しています。

マーケット情報

独自収集したデータを元に、不動産マーケットの市況を分析予測し、市場変化をいち早く捉え、ポイントをまとめた市場レポートを配信しています。
また、物件レポート、業界トレンド情報など、事業用不動産の最新情報、トレンドを配信しています。

CBREについて

事業用不動産の分野において、世界有数の企業であるCBRE。日本国内におけるその強み、拠点、会社概要をご紹介します。

ヘルプ

物件検索の使い方や、会員サービス、よくあるご質問など、当サイトをより便利にご利用いただくための情報をご紹介します。

仲介会社様はこちら
掲載終了 賃貸オフィス 物件番号 127123016002

プライムプレイス新大阪 1階 72.65坪

平日 9:00〜17:30 06-6292-1720
専門家に相談してみる
  • 更新を通知
  • URLを共有
プライムプレイス新大阪 1階は掲載終了しました

プライムプレイス新大阪 1階に類似した物件を非公開物件から紹介致します

不動産業界では様々な理由で一般公開前の非公開物件があります

  • 募集の準備が整っていない
  • オーナー意向で空室情報を公開していない
  • オーナーに伝わる前の解約予告情報

以上の理由からCBREが仲介する法人向け事業用物件には、WEBに公開できない空き情報があります。
お問い合わせ頂いたお客様に限り、鮮度の高い先行物件をご案内しております。

非公開物件のお問い合わせ
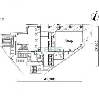
1階 平面図 1階 平面図
1/ 1
  • 1階 平面図
外観 外観
外観 外観
1階 内観 1階 内観
1階 内観 1階 内観
エントランス エントランス
エントランス エントランス
エントランス エントランス
エントランス エントランス
エレベーターホール エレベーターホール
トイレ トイレ
トイレ トイレ
トイレ トイレ
トイレ トイレ
トイレ トイレ
トイレ トイレ
給湯室 給湯室
駐車場 駐車場
駐車場 駐車場
共用設備 共用設備
共用設備 共用設備
近隣施設 近隣施設
眺望 眺望
1/ 22
  • 外観
  • 外観
  • 1階 内観
  • 1階 内観
  • エントランス
  • エントランス
  • エントランス
  • エントランス
  • エレベーターホール
  • トイレ
  • トイレ
  • トイレ
  • トイレ
  • トイレ
  • トイレ
  • 給湯室
  • 駐車場
  • 駐車場
  • 共用設備
  • 共用設備
  • 近隣施設
  • 眺望
賃貸条件
募集階 1階
募集面積 72.65坪 / 240.16m2
空室用途 店舗 / 事務所
賃料・保証金等 -
入居時期 -
取引態様 -
情報更新日 2024年6月4日
空室概要
天井高 4,000mm
床荷重 300kg/m2
物件概要
物件名 プライムプレイス新大阪
所在地 大阪府大阪市淀川区西中島7-6-15
最寄り駅 Osaka Metro御堂筋線 新大阪駅 徒歩1分
東海道本線 新大阪駅 徒歩5分
竣工年月 2024年1月
規模 地上13階
構造 鉄骨造
基準階面積 215.59坪 / 712.7m2
延床面積 3,752.9坪 / 12,406.29m2
警備 機械警備
駐車場 機械式 最大 28台
エレベーター数 4基
基準天井高 2,800mm
基準床荷重 500kg/m2
空調 冷房: 個別空調 / 暖房: 個別空調
こだわり条件について

募集区画

選択 面積 空室用途 月額賃料・共益費 坪単価 入居時期 取引態様 図面 お気に入り
13階 215.59坪 事務所 - 掲載終了 - 掲載終了 grade
13階 58.19坪
(分割案)
事務所 - 掲載終了 - 掲載終了 grade
13階 54.65坪
(分割案)
事務所 - 掲載終了 - 掲載終了 grade
13階 36.68坪
(分割案)
事務所 - 掲載終了 - 掲載終了 grade
13階 66.07坪
(分割案)
事務所 - 掲載終了 - 掲載終了 grade
13階 66.07坪 事務所 - 掲載終了 - 掲載終了 library_books
13階
grade
12階 215.59坪 事務所 - 掲載終了 - 掲載終了 library_books
12階
grade
11階 215.59坪 事務所 - 掲載終了 - 掲載終了 library_books
11階
grade
10階 215.59坪 事務所 - 掲載終了 - 掲載終了 library_books
10階
grade
9階 215.59坪 事務所 - 掲載終了 - 掲載終了 library_books
9階
grade
8階 215.59坪 事務所 - 掲載終了 - 掲載終了 library_books
8階
grade
7階 215.59坪 事務所 - 掲載終了 - 掲載終了 library_books
7階
grade
6階 215.59坪 事務所 - 掲載終了 - 掲載終了 library_books
6階
grade
6階 58.19坪 事務所 - 掲載終了 - 掲載終了 library_books
6階
grade
6階 157.4坪
(分割案)
事務所 - 掲載終了 - 掲載終了 library_books
6階
grade
6階 58.19坪
(分割案)
事務所 - 掲載終了 - 掲載終了 grade
6階 54.65坪
(分割案)
事務所 - 掲載終了 - 掲載終了 grade
6階 36.68坪
(分割案)
事務所 - 掲載終了 - 掲載終了 grade
6階 66.07坪
(分割案)
事務所 - 掲載終了 - 掲載終了 grade
5階 215.59坪 事務所 - 掲載終了 - 掲載終了 grade
5階 58.19坪 事務所 - 掲載終了 - 掲載終了 library_books
5階
grade
5階 54.65坪 事務所 - 掲載終了 - 掲載終了 library_books
5階
grade
5階 36.68坪
(分割案)
事務所 - 掲載終了 - 掲載終了 grade
5階 66.07坪
(分割案)
事務所 - 掲載終了 - 掲載終了 grade
4階 215.59坪 事務所 - 掲載終了 - 掲載終了 library_books
4階
grade
3階 112.84坪 事務所 - 掲載終了 - 掲載終了 library_books
3階
grade
3階 66.07坪 事務所 - 掲載終了 - 掲載終了 library_books
3階
grade
3階 36.68坪
(分割案)
事務所 - 掲載終了 - 掲載終了 library_books
3階
grade
3階 58.19坪
(分割案)
事務所 - 掲載終了 - 掲載終了 grade
3階 54.65坪
(分割案)
事務所 - 掲載終了 - 掲載終了 grade
3階 36.68坪
(分割案)
事務所 - 掲載終了 - 掲載終了 grade
3階 66.07坪
(分割案)
事務所 - 掲載終了 - 掲載終了 grade
3階 215.59坪 事務所 - 掲載終了 - 掲載終了 library_books
3階
grade
2階 215.59坪 事務所 - 掲載終了 - 掲載終了 library_books
2階
grade
1階 72.65坪 店舗 - 掲載終了 - 掲載終了 library_books
1階
grade

プライムプレイス新大阪 1階 賃貸オフィス・事務所に関するお問い合わせ

06-6292-1720

平日 9:00〜17:30

シービーアールイー株式会社
関西支社 オフィス(賃貸事務所 担当)

〒530-0011 大阪府大阪市北区大深町4-20 グランフロント大阪 タワーA 32F
免許番号:宅地建物取引業 国土交通大臣免許 (15) 第1075号

この空室をお問い合わせ

オフィスの移転・新規拠点開設はシービーアールイーにご相談ください。最適なオフィスソリューションとサポートを提供いたします。

プライムプレイス新大阪を見た方が合わせてチェックしている物件

新大阪プライムタワー

大阪府大阪市淀川区西中島6-1-1

西中島南方駅 3分
38~128坪

新大阪第5ドイビル

大阪府大阪市淀川区宮原1-2-4

新大阪駅

新大阪第2ドイビル

大阪府大阪市淀川区西中島2-14-6

西中島南方駅 3分
61~67坪

千代田ビルANNEX

大阪府大阪市西区靱本町1-4-5

本町駅 1分

Vianode SHIN-OSAKA

大阪府大阪市淀川区西宮原1-8-10

新大阪駅 6分

エッグビル第3江坂

大阪府吹田市広芝町3-29

江坂駅 5分

新大阪NKビル

大阪府大阪市淀川区宮原4-3-39

新大阪駅 7分
35坪

GATE TERRACE SHIN OSAKA

大阪府大阪市淀川区西中島4-3-24

西中島南方駅 1分

※賃料、共益費は別途消費税の対象となります。 / ※階数や区画によって賃貸条件が異なる場合がございます。 / ※統合・分割区画は、別途条件がある場合がありますので、詳細はお問い合わせください。 / ※募集状況は変動があるため、お問い合わせをいただいた時点でご紹介ができない場合があります。 / ※賃貸条件や建物設備は変更することがあるため、ご契約内容の詳細は各建物の賃貸借契約書等でご確認ください。 / ※当サイトでは1983年以降に竣⼯した建物を「新耐震基準」と分類しています。 / ※端数処理の関係で、賃貸条件、建物・区画⾯積に誤差が⽣じる場合があります。 / ※掲載内容が現況と異なる場合は現況を優先いたします。 / ※契約成⽴の場合、法令に定める基準に従い仲介⼿数料を申し受けます。(⼀部例外もございます。)

この物件をお問い合わせ
チェックした物件をまとめてお問い合わせ