052-238-1055

平日 9:00〜17:30

物件を探す

事業用不動産のあらゆるニーズを網羅するサービスと豊富な実績で、お客様の課題を解決する最適なソリューションをご提案いたします。

お役立ち情報

CBREが手掛けた、さまざまな業種・規模の移転事例のご紹介を始め、オフィスや物流拠点の移転に役立つ資料・情報をご提供しています。

マーケット情報

独自収集したデータを元に、不動産マーケットの市況を分析予測し、市場変化をいち早く捉え、ポイントをまとめた市場レポートを配信しています。
また、物件レポート、業界トレンド情報など、事業用不動産の最新情報、トレンドを配信しています。

CBREについて

事業用不動産の分野において、世界有数の企業であるCBRE。日本国内におけるその強み、拠点、会社概要をご紹介します。

ヘルプ

物件検索の使い方や、会員サービス、よくあるご質問など、当サイトをより便利にご利用いただくための情報をご紹介します。

仲介会社様はこちら
掲載終了 賃貸オフィス 物件番号 123105096001

東邦不動産名古屋駅前ビル 4階 71.08坪

平日 9:00〜17:30 052-238-1055
専門家に相談してみる
  • 更新を通知
  • URLを共有
東邦不動産名古屋駅前ビル 4階は掲載終了しました

東邦不動産名古屋駅前ビル 4階に類似した物件を非公開物件から紹介致します

不動産業界では様々な理由で一般公開前の非公開物件があります

  • 募集の準備が整っていない
  • オーナー意向で空室情報を公開していない
  • オーナーに伝わる前の解約予告情報

以上の理由からCBREが仲介する法人向け事業用物件には、WEBに公開できない空き情報があります。
お問い合わせ頂いたお客様に限り、鮮度の高い先行物件をご案内しております。

非公開物件のお問い合わせ
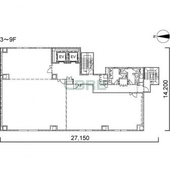
3階〜9階 平面図 3階〜9階 平面図
1/ 1
  • 3階〜9階 平面図
外観 外観
外観 外観
外観 外観
1/ 3
  • 外観
  • 外観
  • 外観
賃貸条件
募集階 4階
募集面積 71.08坪 / 234.98m2
空室用途 事務所
賃料・保証金等 -
入居時期 -
取引態様 -
情報更新日 2020年7月20日
物件概要
物件名 東邦不動産名古屋駅前ビル
所在地 愛知県名古屋市中村区太閤3-2-14
最寄り駅 中央本線 名古屋駅 徒歩8分
市営地下鉄桜通線 名古屋駅 徒歩8分
東海道本線 名古屋駅 徒歩8分
竣工年月 2020年9月
規模 地上9階
構造 鉄骨造
基準階面積 74.25坪 / 245.45m2
延床面積 839.37坪 / 2,774.79m2
警備 機械警備
駐車場 平面 最大 8台
エレベーター数 2基
基準天井高 2,700mm
基準床荷重 300kg/m2
空調 冷房: 個別空調 / 暖房: 個別空調
備考 360度WEB内覧可能
こだわり条件について

募集区画

選択 面積 空室用途 月額賃料・共益費 坪単価 入居時期 取引態様 図面 お気に入り
9階 29.89坪 事務所 - 掲載終了 - 掲載終了 library_books
9階
grade
9階 27.23坪 事務所 - 掲載終了 - 掲載終了 library_books
9階
grade
9階 57.12坪 事務所 - 掲載終了 - 掲載終了 library_books
9階
grade
9階 29.89坪
(分割案)
事務所 - 掲載終了 - 掲載終了 library_books
9階
grade
6階 29.89坪
(分割案)
事務所 - 掲載終了 - 掲載終了 library_books
6階
grade
6階 27.23坪
(分割案)
事務所 - 掲載終了 - 掲載終了 library_books
6階
grade
6階 13.96坪
(分割案)
事務所 - 掲載終了 - 掲載終了 library_books
6階
grade
4階 71.08坪 事務所 - 掲載終了 - 掲載終了 library_books
4階
grade
3階 71.08坪 事務所 - 掲載終了 - 掲載終了 library_books
3階
grade
2階 57.12坪 事務所 - 掲載終了 - 掲載終了 library_books
2階
grade
2階 29.89坪
(分割案)
事務所 - 掲載終了 - 掲載終了 library_books
2階
grade
1~9階 698.85坪 事務所 - 掲載終了 - 掲載終了 grade

東邦不動産名古屋駅前ビル 4階 賃貸オフィス・事務所に関するお問い合わせ

052-238-1055

平日 9:00〜17:30

シービーアールイー株式会社
名古屋支店 オフィス(賃貸事務所 担当)

〒460-0008 愛知県名古屋市中区栄4-1-1 中日ビル 21F
免許番号:宅地建物取引業 国土交通大臣免許 (15) 第1075号

この空室をお問い合わせ

オフィスの移転・新規拠点開設はシービーアールイーにご相談ください。最適なオフィスソリューションとサポートを提供いたします。

東邦不動産名古屋駅前ビルの概要

名古屋駅から徒歩8分の好立地。JR・名鉄・近鉄さらには市営地下鉄など、鉄道各路線が利用しやすいことに加え、ビル1階には駐車場を設置、名古屋高速のICも近隣に点在するため営業車の活用にも利便性が高いビルです。名古屋のメインストリートのひとつ「広小路通」に直結する太閤通沿いに位置。ファサードにガラスカーテンウォールを使ったモダンな印象。エントランスは高級感があり、大きく開かれた窓を備える各フロアは明るく開放的。執務フロアは天井高2,700mmを確保し、分割対応は最小13坪から最大71坪。企業の様々な使用ニーズに対応し、配線に便利なOAフロア、マルチエアコンなどを採用するほか、LED照明を用いることで省エネや環境にも配慮しています。また、共用部分にもこだわりが見られ、セキュリティシステム完備に加えて、ビル2階には共用ミーティングスペースを設置。各テナントが打ち合わせや来客対応の場として利用できるため、その分、オフィスフロアを執務スペースに特化できるなど、占有部分をより有効に活用できます。

東邦不動産名古屋駅前ビルを見た方が合わせてチェックしている物件

朝日生命矢場町ビル

愛知県名古屋市中区栄3-32-20

矢場町駅 1分

アドバンス・スクエア刈谷Ⅲ

愛知県刈谷市中山町1-45

刈谷駅 8分
99~253坪

栄中央ビル

愛知県名古屋市中区新栄町1-5

栄駅 1分
45~218坪

アドバンス・スクエア刈谷

愛知県刈谷市相生町1-1-1

刈谷駅 1分
114坪

メイフィス伏見ビル

愛知県名古屋市中区栄2-10-1

伏見駅 3分

THE EDGE 名古屋

愛知県名古屋市中村区名駅2-42-1


32坪

井門名古屋ビル

愛知県名古屋市中村区椿町1-16


名古屋桜通ビル

愛知県名古屋市中区丸の内3-22-24

丸の内駅 3分

※賃料、共益費は別途消費税の対象となります。 / ※階数や区画によって賃貸条件が異なる場合がございます。 / ※統合・分割区画は、別途条件がある場合がありますので、詳細はお問い合わせください。 / ※募集状況は変動があるため、お問い合わせをいただいた時点でご紹介ができない場合があります。 / ※賃貸条件や建物設備は変更することがあるため、ご契約内容の詳細は各建物の賃貸借契約書等でご確認ください。 / ※当サイトでは1983年以降に竣⼯した建物を「新耐震基準」と分類しています。 / ※端数処理の関係で、賃貸条件、建物・区画⾯積に誤差が⽣じる場合があります。 / ※掲載内容が現況と異なる場合は現況を優先いたします。 / ※契約成⽴の場合、法令に定める基準に従い仲介⼿数料を申し受けます。(⼀部例外もございます。)

この物件をお問い合わせ
チェックした物件をまとめてお問い合わせ