076-224-6310

平日 9:00〜17:30

物件を探す

事業用不動産のあらゆるニーズを網羅するサービスと豊富な実績で、お客様の課題を解決する最適なソリューションをご提案いたします。

お役立ち情報

CBREが手掛けた、さまざまな業種・規模の移転事例のご紹介を始め、オフィスや物流拠点の移転に役立つ資料・情報をご提供しています。

マーケット情報

独自収集したデータを元に、不動産マーケットの市況を分析予測し、市場変化をいち早く捉え、ポイントをまとめた市場レポートを配信しています。
また、物件レポート、業界トレンド情報など、事業用不動産の最新情報、トレンドを配信しています。

CBREについて

事業用不動産の分野において、世界有数の企業であるCBRE。日本国内におけるその強み、拠点、会社概要をご紹介します。

ヘルプ

物件検索の使い方や、会員サービス、よくあるご質問など、当サイトをより便利にご利用いただくための情報をご紹介します。

仲介会社様はこちら
賃貸オフィス 物件番号 116201016025

Dタワー富山 3階 57.82坪

平日 9:00〜17:30 076-224-6310
専門家に相談してみる
  • 更新を通知
  • URLを共有
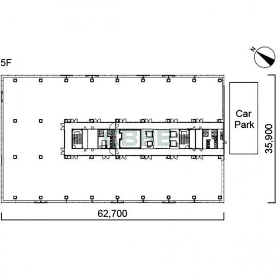
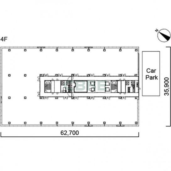
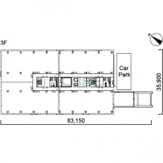
3階 平面図 3階 平面図
1/ 1
  • 3階 平面図
外観 外観
外観 外観
外観 外観
外観 外観
外観 外観
内観 内観
エントランス エントランス
エレベーターホール エレベーターホール
トイレ トイレ
トイレ トイレ
トイレ トイレ
給湯室 給湯室
リフレッシュルーム リフレッシュルーム
リフレッシュルーム リフレッシュルーム
リフレッシュルーム リフレッシュルーム
リフレッシュルーム リフレッシュルーム
カンファレンスルーム カンファレンスルーム
カンファレンスルーム カンファレンスルーム
カンファレンスルーム カンファレンスルーム
建物前面スペース 建物前面スペース
建物前面スペース 建物前面スペース
前面道路 前面道路
周辺写真 周辺写真
眺望 眺望
1/ 26
  • 外観
  • 外観
  • 外観
  • 外観
  • 外観
  • 内観
  • エントランス
  • エレベーターホール
  • トイレ
  • トイレ
  • トイレ
  • 給湯室
  • リフレッシュルーム
  • リフレッシュルーム
  • リフレッシュルーム
  • リフレッシュルーム
  • カンファレンスルーム
  • カンファレンスルーム
  • カンファレンスルーム
  • 建物前面スペース
  • 建物前面スペース
  • 前面道路
  • 周辺写真
  • 眺望
賃貸条件
募集階 3階
募集面積 57.82坪 / 191.16m2
空室用途 事務所
賃料 相談
共益費 相談
賃料+共益費 相談
入居時期 即入居可
取引態様 媒介
情報更新日 2025年10月2日
物件概要
物件名 Dタワー富山
所在地 富山県富山市牛島町9-5
最寄り駅 北陸新幹線 富山駅 徒歩4分
竣工年月 2024年3月
規模 地上7階
構造 鉄骨造
基準階面積 553.97坪 / 1,831.32m2
延床面積 5,122.85坪 / 16,935.0m2
警備 機械警備
駐車場 機械式 最大 150台
エレベーター数 4基
基準天井高 2,800mm
基準床荷重 300kg/m2
空調 冷房: 個別空調 / 暖房: 個別空調
備考 ゆとりある1Fエントランス・1F飲⾷フロア ・2Fラウンジ/タッチダウンスペース・ ⾮接触操作対応EV・プラズマクラスターイオン発⽣装置等・環境認証制度 「BELS4スター」「CASBEE ウェルネスオフィスAランク」取得
  • 築3年内
  • 駅5分
  • オススメ
  • 新耐震
  • 3階以下
  • 即入居可
  • 基準階300坪以上
こだわり条件について

募集区画

選択 面積 空室用途 月額賃料・共益費 坪単価 入居時期 取引態様 図面 お気に入り
7階 149.18坪 事務所 相談 相談 即入居可 媒介 library_books
7階
grade
6階 57.82坪 事務所 相談 相談 即入居可 媒介 library_books
6階
grade
6階 57.82坪 事務所 相談 相談 即入居可 媒介 library_books
6階
grade
5階 62.44坪 事務所 相談 相談 即入居可 媒介 library_books
5階
grade
5階 115.64坪 事務所 相談 相談 即入居可 媒介 library_books
5階
grade
4階 62.44坪 事務所 相談 相談 即入居可 媒介 library_books
4階
grade
4階 276.98坪 事務所 相談 相談 即入居可 媒介 library_books
4階
grade
3階 57.82坪 事務所 相談 相談 即入居可 媒介 library_books
3階
grade
3階 120.26坪 事務所 相談 相談 即入居可 媒介 library_books
3階
grade
2階 112.72坪 サービス店舗 相談 相談 即入居可 媒介 library_books
2階
grade
選択 面積 空室用途 月額賃料・共益費 坪単価 入居時期 取引態様 図面 お気に入り
7階 178.09坪 事務所 - 掲載終了 - 掲載終了 library_books
7階
grade
6階 86.73坪
(統合案)
事務所 - 掲載終了 - 掲載終了 library_books
6階
grade
5階 28.91坪 事務所 - 掲載終了 - 掲載終了 library_books
5階
grade
5階 28.91坪 事務所 - 掲載終了 - 掲載終了 library_books
5階
grade
5階 33.52坪 事務所 - 掲載終了 - 掲載終了 library_books
5階
grade
5階 115.64坪
(統合案)
事務所 - 掲載終了 - 掲載終了 library_books
5階
grade
5階 62.43坪
(統合案)
事務所 - 掲載終了 - 掲載終了 library_books
5階
grade
4階 214.54坪
(分割案)
事務所 - 掲載終了 - 掲載終了 library_books
4階
grade
3階 553.97坪 事務所 - 掲載終了 - 掲載終了 library_books
3階
grade
2階 56.37坪 サービス店舗 - 掲載終了 - 掲載終了 library_books
2階
grade
2階 112.71坪
(統合案)
サービス店舗 - 掲載終了 - 掲載終了 library_books
2階
grade
2階 56.34坪 サービス店舗 - 掲載終了 - 掲載終了 library_books
2階
grade
2階 63.89坪 サービス店舗 - 掲載終了 - 掲載終了 library_books
2階
grade
2階 62.83坪 サービス店舗 - 掲載終了 - 掲載終了 library_books
2階
grade
2階 56.34坪 サービス店舗 - 掲載終了 - 掲載終了 library_books
2階
grade
2階 56.37坪 サービス店舗 - 掲載終了 - 掲載終了 library_books
2階
grade
掲載終了した区画

Dタワー富山 3階 賃貸オフィス・事務所に関するお問い合わせ

076-224-6310

平日 9:00〜17:30

シービーアールイー株式会社
金沢営業所

〒920-0031 石川県金沢市広岡3丁目3番11号 JR金沢駅西第四NKビル5階
免許番号:宅地建物取引業 国土交通大臣免許 (15) 第1075号

この空室をお問い合わせ

オフィスの移転・新規拠点開設はシービーアールイーにご相談ください。最適なオフィスソリューションとサポートを提供いたします。

Dタワー富山の動画

Dタワー富山の360度バーチャル内覧

Dタワー富山の概要

富山駅周辺は、駅の南北に接続した市電(路面電車)に加え、富山駅南北線道路も開通したことにより、公共交通・インフラの利便性が向上しました。Dタワー富山は、隣接するオーバードホール(中ホール)とともに富山駅北口周辺の賑わいを担う施設となります。また、1F飲食フロアには、北陸初進出の「GURUNAVI FOODHALL WYE 」がオープン。「地域の食の発信 新たな『おいしい』に出会える場所。」を共通コンセプトとし、地域の人気店など6店舗の飲食店が出店しております。 富岸(ふがん)運河環⽔公園近くの閑静な⽴地 。JR富⼭駅から徒歩3分 ・富⼭地鉄市内電⾞オークスカナルパーク富⼭駅から徒歩2分です。

Dタワー富山を見た方が合わせてチェックしている物件

Toyama Sakuraビル

富山県富山市新桜町6-15

富山駅 8分
65坪

インテックビル(タワー111)

富山県富山市牛島新町5-5

富山駅 3分
23~187坪

いちご富山駅西ビル

富山県富山市神通本町1-1-19

富山駅 5分
24~40坪

WAKURU SOGAWA(SOGAWA BASE)

富山県富山市総曲輪3-4-1

富山駅 18分
450坪

北日本桜橋ビル

富山県富山市桜橋通り1-18

富山駅 5分
7~144坪

北日本スクエア

富山県富山市安住町2-14

富山駅 8分
20~79坪

大同生命富山ビル

富山県富山市本町9-10

富山駅 12分
15~109坪

総曲輪レガートスクエア

富山県富山市総曲輪4-4-3

富山駅 19分

※賃料、共益費は別途消費税の対象となります。 / ※階数や区画によって賃貸条件が異なる場合がございます。 / ※統合・分割区画は、別途条件がある場合がありますので、詳細はお問い合わせください。 / ※募集状況は変動があるため、お問い合わせをいただいた時点でご紹介ができない場合があります。 / ※賃貸条件や建物設備は変更することがあるため、ご契約内容の詳細は各建物の賃貸借契約書等でご確認ください。 / ※当サイトでは1983年以降に竣⼯した建物を「新耐震基準」と分類しています。 / ※端数処理の関係で、賃貸条件、建物・区画⾯積に誤差が⽣じる場合があります。 / ※掲載内容が現況と異なる場合は現況を優先いたします。 / ※契約成⽴の場合、法令に定める基準に従い仲介⼿数料を申し受けます。(⼀部例外もございます。)

この物件をお問い合わせ
チェックした物件をまとめてお問い合わせ