03-5288-9520

平日 9:00〜17:30

物件を探す

事業用不動産のあらゆるニーズを網羅するサービスと豊富な実績で、お客様の課題を解決する最適なソリューションをご提案いたします。

お役立ち情報

CBREが手掛けた、さまざまな業種・規模の移転事例のご紹介を始め、オフィスや物流拠点の移転に役立つ資料・情報をご提供しています。

マーケット情報

独自収集したデータを元に、不動産マーケットの市況を分析予測し、市場変化をいち早く捉え、ポイントをまとめた市場レポートを配信しています。
また、物件レポート、業界トレンド情報など、事業用不動産の最新情報、トレンドを配信しています。

CBREについて

事業用不動産の分野において、世界有数の企業であるCBRE。日本国内におけるその強み、拠点、会社概要をご紹介します。

ヘルプ

物件検索の使い方や、会員サービス、よくあるご質問など、当サイトをより便利にご利用いただくための情報をご紹介します。

仲介会社様はこちら
掲載終了 賃貸オフィス 物件番号 114103020071

リーフみなとみらい 2階 53.06坪

  • 更新を通知
  • URLを共有
リーフみなとみらい 2階は掲載終了しました

リーフみなとみらい 2階に類似した物件を非公開物件から紹介致します

不動産業界では様々な理由で一般公開前の非公開物件があります

  • 募集の準備が整っていない
  • オーナー意向で空室情報を公開していない
  • オーナーに伝わる前の解約予告情報

以上の理由からCBREが仲介する法人向け事業用物件には、WEBに公開できない空き情報があります。
お問い合わせ頂いたお客様に限り、鮮度の高い先行物件をご案内しております。

非公開物件のお問い合わせ
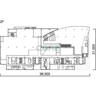
2階 平面図 2階 平面図
1/ 1
  • 2階 平面図
外観 外観
外観 外観
内観 内観
内観 内観
内観 内観
内観 内観
内観 内観
内観 内観
エントランス エントランス
エントランス エントランス
エントランス エントランス
エレベーターホール エレベーターホール
トイレ トイレ
トイレ トイレ
トイレ トイレ
給湯室 給湯室
共用設備 共用設備
1/ 17
  • 外観
  • 外観
  • 内観
  • 内観
  • 内観
  • 内観
  • 内観
  • 内観
  • エントランス
  • エントランス
  • エントランス
  • エレベーターホール
  • トイレ
  • トイレ
  • トイレ
  • 給湯室
  • 共用設備
賃貸条件
募集階 2階
募集面積 53.06坪 / 175.39m2
空室用途 事務所
賃料・保証金等 -
入居時期 -
取引態様 -
情報更新日 2025年2月26日
物件概要
物件名 リーフみなとみらい
所在地 神奈川県横浜市西区みなとみらい4-6-5
最寄り駅 横浜高速鉄道みなとみらい線 みなとみらい駅 徒歩4分
横浜高速鉄道みなとみらい線 新高島駅 徒歩6分
東海道本線 横浜駅 徒歩15分
竣工年月 2004年2月
規模 地上12階 地下4階
構造
基準階面積 739.13坪 / 2,443.41m2
延床面積 14,432.46坪 / 47,710.68m2
警備 機械警備・有人警備併用
駐車場 自走式・機械式併用 最大 209台
エレベーター数 4基
基準天井高 2,900mm
基準床荷重 500kg/m2
空調 冷房: 全館空調 / 暖房: 全館空調
備考 2024年2月リニューアル工事完了
こだわり条件について

募集区画

選択 面積 空室用途 月額賃料・共益費 坪単価 入居時期 取引態様 図面 お気に入り
12階 426.47坪 事務所 - 掲載終了 - 掲載終了 grade
11階 488.95坪 事務所 - 掲載終了 - 掲載終了 library_books
11階
grade
10階 488.95坪 事務所 - 掲載終了 - 掲載終了 library_books
10階
grade
10階 201.57坪
(分割案)
事務所 - 掲載終了 - 掲載終了 library_books
10階
grade
10階 268.94坪
(分割案)
事務所 - 掲載終了 - 掲載終了 library_books
10階
grade
9階 488.95坪 事務所 - 掲載終了 - 掲載終了 library_books
9階
grade
8階 488.95坪 事務所 - 掲載終了 - 掲載終了 library_books
8階
grade
7階 283.06坪 事務所 - 掲載終了 - 掲載終了 library_books
7階
grade
7階 662.82坪 事務所 - 掲載終了 - 掲載終了 library_books
7階
grade
6階 201.7坪
(分割案)
事務所 - 掲載終了 - 掲載終了 library_books
6階
grade
6階 240.9坪
(分割案)
事務所 - 掲載終了 - 掲載終了 library_books
6階
grade
6階 296.3坪
(分割案)
事務所 - 掲載終了 - 掲載終了 library_books
6階
grade
6階 739.13坪 事務所 - 掲載終了 - 掲載終了 library_books
6階
grade
5階 739.13坪 事務所 - 掲載終了 - 掲載終了 library_books
5階
grade
5階 201.7坪
(分割案)
事務所 - 掲載終了 - 掲載終了 library_books
5階
grade
5階 240.9坪
(分割案)
事務所 - 掲載終了 - 掲載終了 library_books
5階
grade
5階 296.3坪
(分割案)
事務所 - 掲載終了 - 掲載終了 library_books
5階
grade
4階 728.12坪 事務所 - 掲載終了 - 掲載終了 library_books
4階
grade
3階 47.84坪 事務所 - 掲載終了 - 掲載終了 library_books
3階
grade
3階 40.22坪 事務所 - 掲載終了 - 掲載終了 grade
3階 218.97坪 事務所 - 掲載終了 - 掲載終了 grade
3階 40.0坪 事務所 - 掲載終了 - 掲載終了 grade
2階 53.06坪 事務所 - 掲載終了 - 掲載終了 library_books
2階
grade

リーフみなとみらい 2階 賃貸オフィス・事務所に関するお問い合わせ

シービーアールイー株式会社

免許番号:宅地建物取引業 国土交通大臣免許 (15) 第1075号

この空室をお問い合わせ

オフィスの移転・新規拠点開設はシービーアールイーにご相談ください。最適なオフィスソリューションとサポートを提供いたします。

リーフみなとみらいの概要

リーフみなとみらい は神奈川県横浜市西区みなとみらい4丁目に所在する2004年3月に竣工したビルです。竣工から20年を迎える2024年2月に新たなビジネス拠点としてリニューアル・オープンの時を迎えます。エントランスを入ると、グランモール公園に面した光あふれるアトリウム、賑わいに満ちたアクティビティフロア。ワーカー、ゲストを問わず交流する空間に集まる人々が協働し、イノベーションを誘発する創造の場、将来の夢を育む空間を提供いたします。4階オフィスフロアは、フレキシブルな働き方を可能とする約730坪の空間。3分割でのご相談も可能となっております。リノベーション工事中だからこそ、R&Dやラボなど多様なニーズに合わせて、フレキシビリティにご相談、ご対応いたします。また、大型荷物用エレベーターがあり、1階トラックヤードからの荷物の搬出入が可能となります。構造はCFT造(コンクリート充填鋼管構造)で、規模は地下4階地上12階建て、基準階面積は約739坪のオフィスビルです。「みなとみらい」駅徒歩3分です。基準階天井高3,000mm、床荷重500kg/㎡で、電気容量50VA/㎡です。

リーフみなとみらいを見た方が合わせてチェックしている物件

横浜シンフォステージイーストタワー

神奈川県横浜市西区みなとみらい5-1-1

横浜駅 10分
209~853坪

横浜ブルーアベニュー

神奈川県横浜市西区みなとみらい4-4-2

新高島駅 3分
85~97坪

新川崎ツインタワー

神奈川県川崎市幸区鹿島田1-1-2

新川崎駅 3分
94~191坪

横浜コネクトスクエア

神奈川県横浜市西区みなとみらい3-3-3

桜木町駅 9分
23~1256坪

KDX横浜みなとみらいタワー

神奈川県横浜市西区みなとみらい3-3-1

みなとみらい駅 4分
21~582坪

アクアリアタワー横浜

神奈川県横浜市神奈川区新浦島町1-1-32

東神奈川駅 17分
88~255坪

BASEGATE横浜関内タワー

神奈川県横浜市中区港町1-1-1他

関内駅 1分
92~708坪

クイーンズタワーA

神奈川県横浜市西区みなとみらい2-3-1

桜木町駅 8分
80~162坪

※賃料、共益費は別途消費税の対象となります。 / ※階数や区画によって賃貸条件が異なる場合がございます。 / ※統合・分割区画は、別途条件がある場合がありますので、詳細はお問い合わせください。 / ※募集状況は変動があるため、お問い合わせをいただいた時点でご紹介ができない場合があります。 / ※賃貸条件や建物設備は変更することがあるため、ご契約内容の詳細は各建物の賃貸借契約書等でご確認ください。 / ※当サイトでは1983年以降に竣⼯した建物を「新耐震基準」と分類しています。 / ※端数処理の関係で、賃貸条件、建物・区画⾯積に誤差が⽣じる場合があります。 / ※掲載内容が現況と異なる場合は現況を優先いたします。 / ※契約成⽴の場合、法令に定める基準に従い仲介⼿数料を申し受けます。(⼀部例外もございます。)

この物件をお問い合わせ
チェックした物件をまとめてお問い合わせ