03-5288-9520

平日 9:00〜17:30

物件を探す

事業用不動産のあらゆるニーズを網羅するサービスと豊富な実績で、お客様の課題を解決する最適なソリューションをご提案いたします。

お役立ち情報

CBREが手掛けた、さまざまな業種・規模の移転事例のご紹介を始め、オフィスや物流拠点の移転に役立つ資料・情報をご提供しています。

マーケット情報

独自収集したデータを元に、不動産マーケットの市況を分析予測し、市場変化をいち早く捉え、ポイントをまとめた市場レポートを配信しています。
また、物件レポート、業界トレンド情報など、事業用不動産の最新情報、トレンドを配信しています。

CBREについて

事業用不動産の分野において、世界有数の企業であるCBRE。日本国内におけるその強み、拠点、会社概要をご紹介します。

ヘルプ

物件検索の使い方や、会員サービス、よくあるご質問など、当サイトをより便利にご利用いただくための情報をご紹介します。

仲介会社様はこちら
掲載終了 賃貸オフィス 物件番号 113113026249

関電不動産渋谷ビル 1-2階 227.44坪

平日 9:00〜17:30 03-5288-9520
専門家に相談してみる
  • 更新を通知
  • URLを共有
関電不動産渋谷ビル 1-2階は掲載終了しました

関電不動産渋谷ビル 1-2階に類似した物件を非公開物件から紹介致します

不動産業界では様々な理由で一般公開前の非公開物件があります

  • 募集の準備が整っていない
  • オーナー意向で空室情報を公開していない
  • オーナーに伝わる前の解約予告情報

以上の理由からCBREが仲介する法人向け事業用物件には、WEBに公開できない空き情報があります。
お問い合わせ頂いたお客様に限り、鮮度の高い先行物件をご案内しております。

非公開物件のお問い合わせ
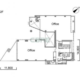
1階 平面図 1階 平面図
2階 平面図 2階 平面図
1/ 2
  • 1階 平面図
  • 2階 平面図
外観 外観
1階 内観 1階 内観
1階 内観 1階 内観
内観 内観
2階 内観 2階 内観
1/ 18
  • 外観
  • 1階 内観
  • 1階 内観
  • 内観
  • 2階 内観
賃貸条件
募集階 1-2階
募集面積 227.44坪 / 751.87m2 (統合案)
空室用途 事務所
賃料・保証金等 -
入居時期 -
取引態様 -
情報更新日 2024年6月19日
物件概要
物件名 関電不動産渋谷ビル
所在地 東京都渋谷区渋谷3-26-20
最寄り駅 山手線 渋谷駅 徒歩7分
東京メトロ銀座線 渋谷駅 徒歩6分
東急田園都市線 渋谷駅 徒歩6分
竣工年月 2024年2月 予定
規模 地上12階 地下1階
構造 鉄骨造
耐震性能 制震構造
基準階面積 302.71坪 / 1,000.69m2
延床面積 4,346.64坪 / 14,369.09m2
警備 機械警備
駐車場 機械式 最大 36台
エレベーター数 4基
基準天井高 2,900mm
基準床荷重 500kg/m2
空調 冷房: 個別空調 / 暖房: 個別空調
こだわり条件について

募集区画

選択 面積 空室用途 月額賃料・共益費 坪単価 入居時期 取引態様 図面 お気に入り
11階 282.57坪 事務所 - 掲載終了 - 掲載終了 grade
10階 302.74坪 事務所 - 掲載終了 - 掲載終了 grade
10階 107.47坪 事務所 - 掲載終了 - 掲載終了 library_books
10階
grade
9階 302.74坪 事務所 - 掲載終了 - 掲載終了 grade
8階 302.74坪 事務所 - 掲載終了 - 掲載終了 grade
7階 302.74坪 事務所 - 掲載終了 - 掲載終了 grade
7階 107.47坪 事務所 - 掲載終了 - 掲載終了 grade
6階 302.74坪 事務所 - 掲載終了 - 掲載終了 grade
5階 302.74坪 事務所 - 掲載終了 - 掲載終了 library_books
5階
grade
5階 195.27坪 事務所 - 掲載終了 - 掲載終了 library_books
5階
grade
4階 307.39坪 事務所 - 掲載終了 - 掲載終了 grade
3階 322.8坪 事務所 - 掲載終了 - 掲載終了 library_books
3階
grade
2階 112.81坪 事務所 - 掲載終了 - 掲載終了 library_books
2階
grade
2階 119.39坪 事務所 - 掲載終了 - 掲載終了 library_books
2階
grade
1階 114.63坪 事務所 - 掲載終了 - 掲載終了 library_books
1階
grade
1-2階 227.44坪
(統合案)
事務所 - 掲載終了 - 掲載終了 library_books
1-2階
grade

関電不動産渋谷ビル 1-2階 賃貸オフィス・事務所に関するお問い合わせ

03-5288-9520

平日 9:00〜17:30

シービーアールイー株式会社
物件探しのご相談

〒100-0005 東京都千代田区丸の内2-1-1 明治安田生命ビル 21F
免許番号:宅地建物取引業 国土交通大臣免許 (15) 第1075号

この空室をお問い合わせ

オフィスの移転・新規拠点開設はシービーアールイーにご相談ください。最適なオフィスソリューションとサポートを提供いたします。

関電不動産渋谷ビルの概要

関電不動産渋谷ビル(東京都渋谷区渋谷3-26-20)は、JR渋谷駅新南口から徒歩3分の好立地にあります。ビルは地下1階地上12階建てで、基準階面積は302.71坪と広々としており、大規模なオフィスにも対応できます。周辺環境が充実しているだけでなく、ビルには屋上テラスやラウンジ空間など優れた共用部があります。ZEB Ready 認証とBELS評価最高ランクも取得しており、環境性能にも配慮しています。是非、お気軽にお問い合わせください。

関電不動産渋谷ビルを見た方が合わせてチェックしている物件

キューブワン麹町

東京都千代田区麹町5-1

麹町駅 2分
157坪

浜松町エムプレスビル

東京都港区浜松町2-9-6

浜松町駅 1分
59坪

Terraza Harajuku

東京都渋谷区神宮前2-31-11

明治神宮前駅 7分

X-BASE SHIBUYA

東京都渋谷区松濤2-15-13

神泉駅 4分
3~12坪

渋谷サクラステージ SHIBUYAタワー

東京都渋谷区桜丘町1-4

渋谷駅 1分
92坪

Dタワー西新宿

東京都新宿区西新宿6-11-3

西新宿駅 4分
102~307坪

パシフィックセンチュリープレイス丸の内

東京都千代田区丸の内1-11-1

東京駅 3分

住友不動産新宿御苑ビル

東京都新宿区新宿2-13-12

新宿三丁目駅 3分
30坪

※賃料、共益費は別途消費税の対象となります。 / ※階数や区画によって賃貸条件が異なる場合がございます。 / ※統合・分割区画は、別途条件がある場合がありますので、詳細はお問い合わせください。 / ※募集状況は変動があるため、お問い合わせをいただいた時点でご紹介ができない場合があります。 / ※賃貸条件や建物設備は変更することがあるため、ご契約内容の詳細は各建物の賃貸借契約書等でご確認ください。 / ※当サイトでは1983年以降に竣⼯した建物を「新耐震基準」と分類しています。 / ※端数処理の関係で、賃貸条件、建物・区画⾯積に誤差が⽣じる場合があります。 / ※掲載内容が現況と異なる場合は現況を優先いたします。 / ※契約成⽴の場合、法令に定める基準に従い仲介⼿数料を申し受けます。(⼀部例外もございます。)

この物件をお問い合わせ
チェックした物件をまとめてお問い合わせ