03-5288-9520

平日 9:00〜17:30

物件を探す

事業用不動産のあらゆるニーズを網羅するサービスと豊富な実績で、お客様の課題を解決する最適なソリューションをご提案いたします。

お役立ち情報

CBREが手掛けた、さまざまな業種・規模の移転事例のご紹介を始め、オフィスや物流拠点の移転に役立つ資料・情報をご提供しています。

マーケット情報

独自収集したデータを元に、不動産マーケットの市況を分析予測し、市場変化をいち早く捉え、ポイントをまとめた市場レポートを配信しています。
また、物件レポート、業界トレンド情報など、事業用不動産の最新情報、トレンドを配信しています。

CBREについて

事業用不動産の分野において、世界有数の企業であるCBRE。日本国内におけるその強み、拠点、会社概要をご紹介します。

ヘルプ

物件検索の使い方や、会員サービス、よくあるご質問など、当サイトをより便利にご利用いただくための情報をご紹介します。

仲介会社様はこちら
掲載終了 賃貸オフィス 物件番号 113113010079

藤和宮益坂ビル 3階 30.48坪

平日 9:00〜17:30 03-5288-9520
専門家に相談してみる
  • 更新を通知
  • URLを共有
藤和宮益坂ビル 3階は掲載終了しました

藤和宮益坂ビル 3階に類似した物件を非公開物件から紹介致します

不動産業界では様々な理由で一般公開前の非公開物件があります

  • 募集の準備が整っていない
  • オーナー意向で空室情報を公開していない
  • オーナーに伝わる前の解約予告情報

以上の理由からCBREが仲介する法人向け事業用物件には、WEBに公開できない空き情報があります。
お問い合わせ頂いたお客様に限り、鮮度の高い先行物件をご案内しております。

非公開物件のお問い合わせ
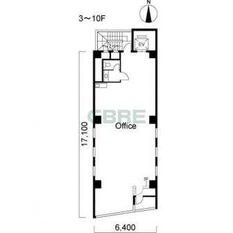
3階〜10階 平面図 3階〜10階 平面図
1/ 1
  • 3階〜10階 平面図
外観 外観
エントランス エントランス
1/ 2
  • 外観
  • エントランス
賃貸条件
募集階 3階
募集面積 30.48坪 / 100.76m2
空室用途 店舗 / 教室 / サービス店舗
賃料・保証金等 -
入居時期 -
取引態様 -
情報更新日 2022年8月4日
空室概要
天井高 2,500mm
床荷重 300kg/m2
物件概要
物件名 藤和宮益坂ビル
所在地 東京都渋谷区渋谷1-14-9
最寄り駅 山手線 渋谷駅 徒歩1分
東京メトロ銀座線 渋谷駅 徒歩1分
東急田園都市線 渋谷駅 徒歩1分
竣工年月 1988年3月
規模 地上10階 地下1階
構造 鉄骨鉄筋コンクリート造
基準階面積 31.28坪 / 103.4m2
延床面積 345.84坪 / 1,143.27m2
警備 機械警備
駐車場 なし
エレベーター数 1基
基準天井高 2,500mm
基準床荷重 300kg/m2
空調 冷房: 個別空調 / 暖房: 個別空調
こだわり条件について

募集区画

選択 面積 空室用途 月額賃料・共益費 坪単価 入居時期 取引態様 図面 お気に入り
7階 31.28坪 事務所 相談 相談 2026年6月 媒介 library_books
7階
grade
選択 面積 空室用途 月額賃料・共益費 坪単価 入居時期 取引態様 図面 お気に入り
10階 31.28坪 事務所 - 掲載終了 - 掲載終了 grade
10階 31.28坪 事務所 - 掲載終了 - 掲載終了 library_books
10階
grade
9階 31.48坪 店舗 - 掲載終了 - 掲載終了 library_books
9階
grade
8階 31.48坪 店舗 - 掲載終了 - 掲載終了 library_books
8階
grade
7階 30.81坪 事務所 - 掲載終了 - 掲載終了 grade
6階 30.81坪 事務所 - 掲載終了 - 掲載終了 grade
5階 31.28坪 事務所 - 掲載終了 - 掲載終了 library_books
5階
grade
3階 30.48坪 店舗 - 掲載終了 - 掲載終了 library_books
3階
grade
3階 30.81坪 事務所・店舗 - 掲載終了 - 掲載終了 grade
3階 30.48坪 事務所・店舗 - 掲載終了 - 掲載終了 grade
掲載終了した区画

藤和宮益坂ビル 3階 賃貸オフィス・事務所に関するお問い合わせ

03-5288-9520

平日 9:00〜17:30

シービーアールイー株式会社
東京本社 オフィス

〒100-0005 東京都千代田区丸の内2-1-1 明治安田生命ビル 21F
免許番号:宅地建物取引業 国土交通大臣免許 (15) 第1075号

この空室をお問い合わせ

オフィスの移転・新規拠点開設はシービーアールイーにご相談ください。最適なオフィスソリューションとサポートを提供いたします。

藤和宮益坂ビルを見た方が合わせてチェックしている物件

道玄坂今井ビル

東京都渋谷区道玄坂1-19-12

渋谷駅 7分
25坪

渋谷サクラステージ SHIBUYAタワー

東京都渋谷区桜丘町1-4

渋谷駅 1分
92坪

JMFビル渋谷03

東京都渋谷区道玄坂2-11-1

渋谷駅 3分
160坪

新宿文化クイントビル

東京都渋谷区代々木3-22-7

新宿駅 3分
33坪

神田システムビルディング

東京都千代田区神田紺屋町7

神田駅 4分

ルーシッドスクエア新宿イースト

東京都新宿区大久保1-3-21

東新宿駅 1分
97坪

住友不動産渋谷ファーストタワー

東京都渋谷区東1-2-20

渋谷駅 6分
562坪

住友不動産新宿オークタワー

東京都新宿区西新宿6-8-1

西新宿駅 4分
55~550坪

※賃料、共益費は別途消費税の対象となります。 / ※階数や区画によって賃貸条件が異なる場合がございます。 / ※統合・分割区画は、別途条件がある場合がありますので、詳細はお問い合わせください。 / ※募集状況は変動があるため、お問い合わせをいただいた時点でご紹介ができない場合があります。 / ※賃貸条件や建物設備は変更することがあるため、ご契約内容の詳細は各建物の賃貸借契約書等でご確認ください。 / ※当サイトでは1983年以降に竣⼯した建物を「新耐震基準」と分類しています。 / ※端数処理の関係で、賃貸条件、建物・区画⾯積に誤差が⽣じる場合があります。 / ※掲載内容が現況と異なる場合は現況を優先いたします。 / ※契約成⽴の場合、法令に定める基準に従い仲介⼿数料を申し受けます。(⼀部例外もございます。)

この物件をお問い合わせ
チェックした物件をまとめてお問い合わせ