03-5288-9520

平日 9:00〜17:30

物件を探す

事業用不動産のあらゆるニーズを網羅するサービスと豊富な実績で、お客様の課題を解決する最適なソリューションをご提案いたします。

お役立ち情報

CBREが手掛けた、さまざまな業種・規模の移転事例のご紹介を始め、オフィスや物流拠点の移転に役立つ資料・情報をご提供しています。

マーケット情報

独自収集したデータを元に、不動産マーケットの市況を分析予測し、市場変化をいち早く捉え、ポイントをまとめた市場レポートを配信しています。
また、物件レポート、業界トレンド情報など、事業用不動産の最新情報、トレンドを配信しています。

CBREについて

事業用不動産の分野において、世界有数の企業であるCBRE。日本国内におけるその強み、拠点、会社概要をご紹介します。

ヘルプ

物件検索の使い方や、会員サービス、よくあるご質問など、当サイトをより便利にご利用いただくための情報をご紹介します。

仲介会社様はこちら
賃貸オフィス 物件番号 113108070138

第一びる本館

平日 9:00〜17:30 03-5288-9520
専門家に相談してみる
  • 更新を通知
  • URLを共有
外観 外観
エレベーターホール エレベーターホール
駐車場 駐車場
駐車場 駐車場
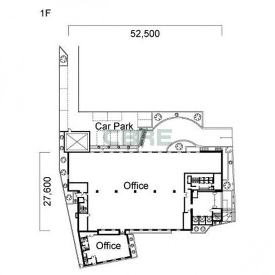
2階〜5階 平面図 2階〜5階 平面図
1/ 5
  • 外観
  • エレベーターホール
  • 駐車場
  • 駐車場
  • 2階〜5階 平面図
物件概要
物件名 第一びる本館
所在地 東京都江東区木場2-7-23
最寄り駅 東京メトロ東西線 木場駅 徒歩1分
東京メトロ東西線 門前仲町駅 徒歩9分
東京都営大江戸線 門前仲町駅 徒歩12分
竣工年月 1987年4月
規模 地上8階 地下1階
構造 鉄筋コンクリート造
基準階面積 354.0坪 / 1,170.24m2
延床面積 3,543.08坪 / 11,712.68m2
警備 機械警備・有人警備併用
駐車場 あり 最大 62台
エレベーター数 3基
基準天井高 2,400mm
基準床荷重 300kg/m2
空調 冷房: 個別空調 / 暖房: 個別空調
  • 駅1分
  • 新耐震
  • 3階以下
  • 即入居可
  • 基準階300坪以上
こだわり条件について

募集区画

選択 面積 空室用途 月額賃料・共益費 坪単価 入居時期 取引態様 図面 お気に入り
3階 354.04坪 事務所 相談 相談 即入居可 媒介 library_books
3階
grade
選択 面積 空室用途 月額賃料・共益費 坪単価 入居時期 取引態様 図面 お気に入り
7階 220.96坪 事務所 - 掲載終了 - 掲載終了 library_books
7階
grade
6階 291.1坪 事務所 - 掲載終了 - 掲載終了 grade
6階 291.1坪 事務所 - 掲載終了 - 掲載終了 library_books
6階
grade
5階 354.04坪 事務所 - 掲載終了 - 掲載終了 library_books
5階
grade
4階 354.04坪 事務所 - 掲載終了 - 掲載終了 library_books
4階
grade
2階 354.04坪 事務所 - 掲載終了 - 掲載終了 library_books
2階
grade
1階 329.08坪 事務所 - 掲載終了 - 掲載終了 library_books
1階
grade
1-3階 120.89坪 事務所 - 掲載終了 - 掲載終了 library_books
1-3階
grade
掲載終了した区画

第一びる本館の賃貸オフィス・事務所に関するお問い合わせ

03-5288-9520

平日 9:00〜17:30

シービーアールイー株式会社
物件探しのご相談

〒100-0005 東京都千代田区丸の内2-1-1 明治安田生命ビル 21F
免許番号:宅地建物取引業 国土交通大臣免許 (15) 第1075号

この物件をお問い合わせ

オフィスの移転・新規拠点開設はシービーアールイーにご相談ください。最適なオフィスソリューションとサポートを提供いたします。

墨田・江東エリアの想定成約賃料

19,000円 / 坪 (共益費含)

2026年1月現在

  • ※CBREで設定したオフィスマーケットエリアにおいて、規模、設備等で各エリアを代表すると考えられる複数のオフィスビルの想定成約賃料をもとに算出しています。不動産市場における賃料水準に関する意見であり、成約賃料を保証するものではありませんので、あらかじめご了承ください。
  • ※グレードAマイナスの想定成約賃料です。グレードAマイナスは、東京23区に立地し、貸室総面積4,500坪以上、延床面積7,000坪以上、基準階面積250坪以上、新耐震基準準拠の各条件を満たしたビルと定義しています(ただし、グレードA:貸室総面積6,500坪以上、延床面積10,000坪以上、基準階面積500坪以上を除く)

第一びる本館の概要

第一びる本館は、東京メトロの木場駅から徒歩1分、門前仲町駅から徒歩9分の場所にあるオフィスビルです。1987年に建てられた鉄筋コンクリ-ト造の地下1階地上8階建てで、延床面積は3,543坪、基準階面積は354坪です。2020年8月に各階トイレ・EVホールのリニューアル工事を完了しています。江東区木場2-7-23に位置しています。

第一びる本館を見た方が合わせてチェックしている物件

文京グリーンコート センターオフィス

東京都文京区本駒込2-28-8

千石駅 4分
146~301坪

住友不動産品川港南ビル

東京都港区港南3-8-1

品川駅 15分

東陽駅前ビル

東京都江東区東陽2-2-20

東陽町駅 5分
93~366坪

フロンティア本郷Ⅱ

東京都文京区本郷2-27-18

本郷三丁目駅 2分

文京グリーンコートイーストウイング

東京都文京区本駒込2-28-10

千石駅 5分
228坪

owns八丁堀 セットアップオフィス

東京都中央区八丁堀3-20-4

八丁堀駅 1分
101坪

羽田イノベーションシティ ZONE C セットアップオフィス

東京都大田区羽田空港1-1-4

天空橋駅 1分
331坪

豊洲ONビル

東京都江東区豊洲1-1-1

豊洲駅 8分
302坪

※賃料、共益費は別途消費税の対象となります。 / ※階数や区画によって賃貸条件が異なる場合がございます。 / ※統合・分割区画は、別途条件がある場合がありますので、詳細はお問い合わせください。 / ※募集状況は変動があるため、お問い合わせをいただいた時点でご紹介ができない場合があります。 / ※賃貸条件や建物設備は変更することがあるため、ご契約内容の詳細は各建物の賃貸借契約書等でご確認ください。 / ※当サイトでは1983年以降に竣⼯した建物を「新耐震基準」と分類しています。 / ※端数処理の関係で、賃貸条件、建物・区画⾯積に誤差が⽣じる場合があります。 / ※掲載内容が現況と異なる場合は現況を優先いたします。 / ※契約成⽴の場合、法令に定める基準に従い仲介⼿数料を申し受けます。(⼀部例外もございます。)

この物件をお問い合わせ
チェックした物件をまとめてお問い合わせ