03-5288-9520

平日 9:00〜17:30

物件を探す

事業用不動産のあらゆるニーズを網羅するサービスと豊富な実績で、お客様の課題を解決する最適なソリューションをご提案いたします。

お役立ち情報

CBREが手掛けた、さまざまな業種・規模の移転事例のご紹介を始め、オフィスや物流拠点の移転に役立つ資料・情報をご提供しています。

マーケット情報

独自収集したデータを元に、不動産マーケットの市況を分析予測し、市場変化をいち早く捉え、ポイントをまとめた市場レポートを配信しています。
また、物件レポート、業界トレンド情報など、事業用不動産の最新情報、トレンドを配信しています。

CBREについて

事業用不動産の分野において、世界有数の企業であるCBRE。日本国内におけるその強み、拠点、会社概要をご紹介します。

ヘルプ

物件検索の使い方や、会員サービス、よくあるご質問など、当サイトをより便利にご利用いただくための情報をご紹介します。

仲介会社様はこちら
掲載終了 賃貸オフィス 物件番号 113103220241

プライム高輪ゲートウェイ B1-13階 3,608.88坪

平日 9:00〜17:30 03-5288-9520
専門家に相談してみる
  • 更新を通知
  • URLを共有
プライム高輪ゲートウェイ B1-13階は掲載終了しました

プライム高輪ゲートウェイ B1-13階に類似した物件を非公開物件から紹介致します

不動産業界では様々な理由で一般公開前の非公開物件があります

  • 募集の準備が整っていない
  • オーナー意向で空室情報を公開していない
  • オーナーに伝わる前の解約予告情報

以上の理由からCBREが仲介する法人向け事業用物件には、WEBに公開できない空き情報があります。
お問い合わせ頂いたお客様に限り、鮮度の高い先行物件をご案内しております。

非公開物件のお問い合わせ
基準階 平面図 基準階 平面図
基準階 平面図 基準階 平面図
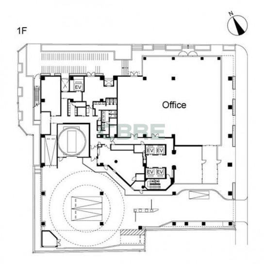
1階 平面図 1階 平面図
2階 平面図 2階 平面図
3階〜13階 平面図 3階〜13階 平面図
1/ 5
  • 基準階 平面図
  • 基準階 平面図
  • 1階 平面図
  • 2階 平面図
  • 3階〜13階 平面図
外観 外観
エントランス エントランス
エントランス エントランス
駐車場 駐車場
共用設備 共用設備
1/ 5
  • 外観
  • エントランス
  • エントランス
  • 駐車場
  • 共用設備
賃貸条件
募集階 B1-13階
募集面積 3,608.88坪 / 11,930.44m2 (統合案)
空室用途 事務所
賃料・保証金等 -
入居時期 -
取引態様 -
情報更新日 2024年1月29日
物件概要
物件名 プライム高輪ゲートウェイ
所在地 東京都港区三田3-9-6
最寄り駅 東京都営浅草線 泉岳寺駅 徒歩3分
山手線 高輪ゲートウェイ駅 徒歩10分
東京都営浅草線 三田駅 徒歩10分
竣工年月 2008年2月
規模 地上13階 地下1階
構造 鉄骨造
耐震性能 制震構造
基準階面積 229.86坪 / 759.87m2
延床面積 5,200.2坪 / 17,190.8m2
駐車場 あり 最大 46台
エレベーター数 5基
基準天井高 2,750mm
基準床荷重 500kg/m2
空調 冷房: ゾーン別空調 / 暖房: ゾーン別空調
こだわり条件について

募集区画

選択 面積 空室用途 月額賃料・共益費 坪単価 入居時期 取引態様 図面 お気に入り
13階 231.07坪 事務所 - 掲載終了 - 掲載終了 library_books
13階
grade
12階 231.07坪 事務所 - 掲載終了 - 掲載終了 library_books
12階
grade
11階 231.07坪 事務所 - 掲載終了 - 掲載終了 library_books
11階
grade
10階 229.86坪 事務所 - 掲載終了 - 掲載終了 library_books
10階
grade
9階 229.86坪 事務所 - 掲載終了 - 掲載終了 library_books
9階
grade
8階 229.86坪 事務所 - 掲載終了 - 掲載終了 library_books
8階
grade
7階 229.86坪 事務所 - 掲載終了 - 掲載終了 library_books
7階
grade
6階 229.86坪 事務所 - 掲載終了 - 掲載終了 library_books
6階
grade
5階 229.86坪 事務所 - 掲載終了 - 掲載終了 library_books
5階
grade
4階 229.86坪 事務所 - 掲載終了 - 掲載終了 library_books
4階
grade
3階 229.86坪 事務所 - 掲載終了 - 掲載終了 library_books
3階
grade
2階 285.78坪 事務所 - 掲載終了 - 掲載終了 library_books
2階
grade
1階 162.29坪 事務所 - 掲載終了 - 掲載終了 library_books
1階
grade
B1-13階 3,608.88坪
(統合案)
事務所 - 掲載終了 - 掲載終了 library_books
B1-13階
grade

プライム高輪ゲートウェイ B1-13階 賃貸オフィス・事務所に関するお問い合わせ

03-5288-9520

平日 9:00〜17:30

シービーアールイー株式会社
物件探しのご相談

〒100-0005 東京都千代田区丸の内2-1-1 明治安田生命ビル 21F
免許番号:宅地建物取引業 国土交通大臣免許 (15) 第1075号

この空室をお問い合わせ

オフィスの移転・新規拠点開設はシービーアールイーにご相談ください。最適なオフィスソリューションとサポートを提供いたします。

プライム高輪ゲートウェイの概要

プライム高輪ゲートウェイは、都営浅草線泉岳寺駅から徒歩3分、JR山手線田町駅から徒歩10分、東京メトロ南北線白金高輪駅から徒歩12分の第一京浜通り沿いの物件です。2008年2月に竣工し鉄骨造・鉄骨鉄筋コンクリート造で、地下1階地上13階建てです。延床面積は5,200坪、基準階面積は229坪です。

プライム高輪ゲートウェイを見た方が合わせてチェックしている物件

音羽プライムビル

東京都文京区音羽1-20-11

護国寺駅 2分

中野坂上サンブライトツイン

東京都中野区本町2-46-1

中野坂上駅 1分
219~227坪

晴海アイランドトリトンスクエア オフィスタワーW

東京都中央区晴海1-8-8

勝どき駅 8分

住友不動産大崎ウイング

東京都品川区大崎3-7-10

大崎駅 3分
411坪

(仮称)第一白鳳ビルディング

東京都新宿区新宿5-17-11

新宿三丁目駅 1分
30~121坪

Daiwa品川Northビル

東京都品川区北品川1-8-11

北品川駅 6分

新宿三井ビルディング

東京都新宿区西新宿2-1-1

新宿駅 7分
31~254坪

中野セントラルパークサウス

東京都中野区中野4-10-2

中野駅 5分

※賃料、共益費は別途消費税の対象となります。 / ※階数や区画によって賃貸条件が異なる場合がございます。 / ※統合・分割区画は、別途条件がある場合がありますので、詳細はお問い合わせください。 / ※募集状況は変動があるため、お問い合わせをいただいた時点でご紹介ができない場合があります。 / ※賃貸条件や建物設備は変更することがあるため、ご契約内容の詳細は各建物の賃貸借契約書等でご確認ください。 / ※当サイトでは1983年以降に竣⼯した建物を「新耐震基準」と分類しています。 / ※端数処理の関係で、賃貸条件、建物・区画⾯積に誤差が⽣じる場合があります。 / ※掲載内容が現況と異なる場合は現況を優先いたします。 / ※契約成⽴の場合、法令に定める基準に従い仲介⼿数料を申し受けます。(⼀部例外もございます。)

この物件をお問い合わせ
チェックした物件をまとめてお問い合わせ