03-5288-9520

平日 9:00〜17:30

物件を探す

事業用不動産のあらゆるニーズを網羅するサービスと豊富な実績で、お客様の課題を解決する最適なソリューションをご提案いたします。

お役立ち情報

CBREが手掛けた、さまざまな業種・規模の移転事例のご紹介を始め、オフィスや物流拠点の移転に役立つ資料・情報をご提供しています。

マーケット情報

独自収集したデータを元に、不動産マーケットの市況を分析予測し、市場変化をいち早く捉え、ポイントをまとめた市場レポートを配信しています。
また、物件レポート、業界トレンド情報など、事業用不動産の最新情報、トレンドを配信しています。

CBREについて

事業用不動産の分野において、世界有数の企業であるCBRE。日本国内におけるその強み、拠点、会社概要をご紹介します。

ヘルプ

物件検索の使い方や、会員サービス、よくあるご質問など、当サイトをより便利にご利用いただくための情報をご紹介します。

仲介会社様はこちら
賃貸オフィス 物件番号 113103090445

赤坂KOSENビル 8階 212.46坪

平日 9:00〜17:30 03-5288-9520
専門家に相談してみる
  • 更新を通知
  • URLを共有
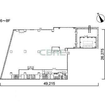
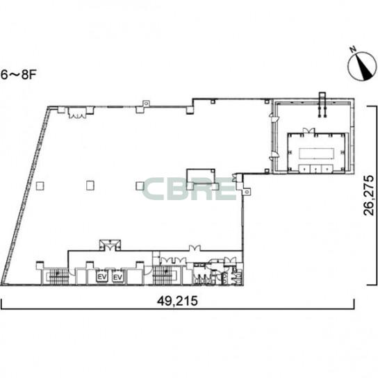
6階〜8階 平面図 6階〜8階 平面図
1/ 1
  • 6階〜8階 平面図
外観 外観
外観 外観
内観 内観
エントランス エントランス
トイレ トイレ
トイレ トイレ
トイレ トイレ
トイレ トイレ
駐車場 駐車場
1/ 9
  • 外観
  • 外観
  • 内観
  • エントランス
  • トイレ
  • トイレ
  • トイレ
  • トイレ
  • 駐車場
賃貸条件
募集階 8階
募集面積 212.46坪 / 702.35m2
空室用途 事務所
賃料 相談
共益費 賃料に込み
賃料+共益費 相談
入居時期 2026年
(相談)
取引態様 媒介
情報更新日 2026年2月6日
物件概要
物件名 赤坂KOSENビル
所在地 東京都港区赤坂4-8-15
最寄り駅 東京メトロ銀座線 赤坂見附駅 徒歩5分
東京メトロ有楽町線 永田町駅 徒歩7分
東京メトロ千代田線 赤坂駅 徒歩9分
竣工年月 1974年9月
規模 地上8階 地下2階
構造 鉄骨鉄筋コンクリート造
基準階面積 239.93坪 / 793.16m2
延床面積 2,639.01坪 / 8,724.0m2
警備 機械警備
駐車場 平面 最大 9台
エレベーター数 3基
基準天井高 2,450mm
基準床荷重 296kg/m2
空調 冷房: 個別空調 / 暖房: 個別空調
  • 駅5分
  • オススメ
こだわり条件について

募集区画

選択 面積 空室用途 月額賃料・共益費 坪単価 入居時期 取引態様 図面 お気に入り
8階 212.46坪 事務所 相談 相談 2026年
(相談)
媒介 library_books
8階
grade
3階 239.93坪 事務所 相談 相談 2027年1月 媒介 library_books
3階
grade
選択 面積 空室用途 月額賃料・共益費 坪単価 入居時期 取引態様 図面 お気に入り
7階 212.46坪 事務所 - 掲載終了 - 掲載終了 library_books
7階
grade
6階 212.46坪 事務所 - 掲載終了 - 掲載終了 library_books
6階
grade
5階 239.93坪 事務所 - 掲載終了 - 掲載終了 library_books
5階
grade
4階 239.93坪 事務所 - 掲載終了 - 掲載終了 library_books
4階
grade
2階 239.93坪 事務所 - 掲載終了 - 掲載終了 library_books
2階
grade
1階 171.76坪 事務所 - 掲載終了 - 掲載終了 library_books
1階
grade
1-8階 1,768.86坪
(統合案)
事務所 - 掲載終了 - 掲載終了 grade
掲載終了した区画

赤坂KOSENビル 8階 賃貸オフィス・事務所に関するお問い合わせ

03-5288-9520

平日 9:00〜17:30

シービーアールイー株式会社
物件探しのご相談

〒100-0005 東京都千代田区丸の内2-1-1 明治安田生命ビル 21F
免許番号:宅地建物取引業 国土交通大臣免許 (15) 第1075号

この空室をお問い合わせ

オフィスの移転・新規拠点開設はシービーアールイーにご相談ください。最適なオフィスソリューションとサポートを提供いたします。

赤坂KOSENビルの概要

赤坂KOSENビルは、東京メトロ赤坂見附駅から徒歩5分、東京メトロ永田町駅から徒歩7分、東京メトロ青山一丁目駅から徒歩11分という好立地にあり、1974年に竣工した物件です。鉄骨鉄筋コンクリート造、鉄骨造、地下2階地上8階建てで、延床面積は2,639坪です。2022年5月に大規模リニューアル工事済みです。

赤坂KOSENビルを見た方が合わせてチェックしている物件

新橋エンタービル

東京都港区新橋5-8-11

新橋駅 7分
50坪

住友五反田ビル

東京都品川区西五反田7-1-1

五反田駅 8分

ネクストサイト小石川ビル

東京都文京区小石川1-21-3

春日駅 5分

渋谷サクラステージ SHIBUYAタワー

東京都渋谷区桜丘町1-4

渋谷駅 1分

CIRCLES+新橋

東京都港区新橋6-2-1

御成門駅 3分
100坪

西新宿KSビル

東京都新宿区西新宿3-6-11

都庁前駅 6分

X-BASE SHIBUYA

東京都渋谷区松濤2-15-13

神泉駅 4分
3~12坪

N.E.Sビル(N棟)

東京都渋谷区桜丘町22-14

渋谷駅 7分
63坪

※賃料、共益費は別途消費税の対象となります。 / ※階数や区画によって賃貸条件が異なる場合がございます。 / ※統合・分割区画は、別途条件がある場合がありますので、詳細はお問い合わせください。 / ※募集状況は変動があるため、お問い合わせをいただいた時点でご紹介ができない場合があります。 / ※賃貸条件や建物設備は変更することがあるため、ご契約内容の詳細は各建物の賃貸借契約書等でご確認ください。 / ※当サイトでは1983年以降に竣⼯した建物を「新耐震基準」と分類しています。 / ※端数処理の関係で、賃貸条件、建物・区画⾯積に誤差が⽣じる場合があります。 / ※掲載内容が現況と異なる場合は現況を優先いたします。 / ※契約成⽴の場合、法令に定める基準に従い仲介⼿数料を申し受けます。(⼀部例外もございます。)

この物件をお問い合わせ
チェックした物件をまとめてお問い合わせ