03-5288-9520

平日 9:00〜17:30

物件を探す

事業用不動産のあらゆるニーズを網羅するサービスと豊富な実績で、お客様の課題を解決する最適なソリューションをご提案いたします。

お役立ち情報

CBREが手掛けた、さまざまな業種・規模の移転事例のご紹介を始め、オフィスや物流拠点の移転に役立つ資料・情報をご提供しています。

マーケット情報

独自収集したデータを元に、不動産マーケットの市況を分析予測し、市場変化をいち早く捉え、ポイントをまとめた市場レポートを配信しています。
また、物件レポート、業界トレンド情報など、事業用不動産の最新情報、トレンドを配信しています。

CBREについて

事業用不動産の分野において、世界有数の企業であるCBRE。日本国内におけるその強み、拠点、会社概要をご紹介します。

ヘルプ

物件検索の使い方や、会員サービス、よくあるご質問など、当サイトをより便利にご利用いただくための情報をご紹介します。

仲介会社様はこちら
掲載終了 賃貸オフィス 物件番号 113101150149

興和二番町ビル 6階 63.7坪

平日 9:00〜17:30 03-5288-9520
専門家に相談してみる
  • 更新を通知
  • URLを共有
興和二番町ビル 6階は掲載終了しました

興和二番町ビル 6階に類似した物件を非公開物件から紹介致します

不動産業界では様々な理由で一般公開前の非公開物件があります

  • 募集の準備が整っていない
  • オーナー意向で空室情報を公開していない
  • オーナーに伝わる前の解約予告情報

以上の理由からCBREが仲介する法人向け事業用物件には、WEBに公開できない空き情報があります。
お問い合わせ頂いたお客様に限り、鮮度の高い先行物件をご案内しております。

非公開物件のお問い合わせ
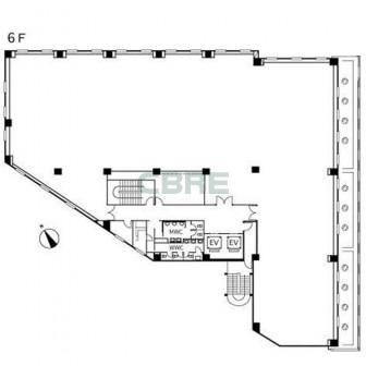
6階 平面図 6階 平面図
1/ 1
  • 6階 平面図
外観 外観
内観 内観
1/ 2
  • 外観
  • 内観
賃貸条件
募集階 6階
募集面積 63.7坪 / 210.58m2
空室用途 事務所
賃料・保証金等 -
入居時期 -
取引態様 -
情報更新日 2020年9月10日
物件概要
物件名 興和二番町ビル
所在地 東京都千代田区二番町11-19
最寄り駅 東京メトロ有楽町線 麹町駅 徒歩2分
東京メトロ半蔵門線 半蔵門駅 徒歩5分
総武・中央緩行線 市ヶ谷駅 徒歩10分
竣工年月 1988年11月
規模 地上6階 地下1階
構造 鉄骨鉄筋コンクリート造
基準階面積 272.63坪 / 901.26m2
延床面積 2,130.79坪 / 7,042.94m2
警備 機械警備・有人警備併用
駐車場 機械式 最大 20台
エレベーター数 2基
基準天井高 2,650mm
基準床荷重 300kg/m2
空調 冷房: 個別空調 / 暖房: 個別空調
こだわり条件について

募集区画

選択 面積 空室用途 月額賃料・共益費 坪単価 入居時期 取引態様 図面 お気に入り
6階 245.97坪 事務所 - 掲載終了 - 掲載終了 grade
6階 63.7坪 事務所 - 掲載終了 - 掲載終了 library_books
6階
grade
5階 272.63坪 事務所 - 掲載終了 - 掲載終了 grade
4階 272.63坪 事務所 - 掲載終了 - 掲載終了 grade
4階 64.58坪 事務所 - 掲載終了 - 掲載終了 library_books
4階
grade
3階 272.63坪 事務所 - 掲載終了 - 掲載終了 grade
3階 272.63坪 事務所 - 掲載終了 - 掲載終了 library_books
3階
grade
2階 114.11坪 事務所 - 掲載終了 - 掲載終了 grade
2階 131.85坪 事務所 - 掲載終了 - 掲載終了 library_books
2階
grade

興和二番町ビル 6階 賃貸オフィス・事務所に関するお問い合わせ

03-5288-9520

平日 9:00〜17:30

シービーアールイー株式会社
物件探しのご相談

〒100-0005 東京都千代田区丸の内2-1-1 明治安田生命ビル 21F
免許番号:宅地建物取引業 国土交通大臣免許 (15) 第1075号

この空室をお問い合わせ

オフィスの移転・新規拠点開設はシービーアールイーにご相談ください。最適なオフィスソリューションとサポートを提供いたします。

興和二番町ビルの概要

興和二番町ビルは、東京都千代田区二番町に位置する地上6階・地下1階建てのハイグレードオフィスビルです。1988年11月に竣工し、新耐震基準に適合した鉄骨鉄筋コンクリート造(SRC造)で、堅牢性と安全性を兼ね備えています。2014年には専有部のLED化や空調機更新工事、2015年には共用部のリニューアルが実施され、現代的な設備と快適な環境が整えられています。最寄り駅は東京メトロ有楽町線「麹町駅」から徒歩2分、半蔵門線「半蔵門駅」から徒歩5分と、複数路線が利用可能な交通至便な立地です。周辺には大使館や教育施設が点在し、落ち着いた環境の中で業務に集中できる点も魅力です。基準階の貸室面積は約272坪(約901㎡)で、天井高は2,650mm。無柱設計に近い整形なフロア構成により、レイアウトの自由度が高く、業務内容に応じた柔軟なオフィス設計が可能です。OAフロアを完備し、配線の整理やレイアウト変更にも対応しやすい構造となっています。空調は個別制御型で、快適な執務環境を維持できます。トイレは男女別で共用部に設置されており、衛生面にも配慮されています。セキュリティは機械警備による24時間体制を採用し、安心して業務に集中できる環境が整っています。エレベーターは2基設置。駐車場は機械式で複数台分を確保しており、社用車の利用や来客対応にも便利です。情報通信設備として光ファイバーを導入しており、ビジネスに必要な高速通信環境も整っています。外観はブランのタイル張りで重厚感があり、エントランスは広々とした設計で来訪者にも好印象を与える空間です。CASBEE不動産認証ではAランクを取得しており、環境性能にも配慮された建物です。周辺にはコンビニや飲食店も点在しており、徒歩圏内の麹町大通り沿いにはランチスポットも充実。ビジネスパーソンにとって利便性の高い環境が整っています。興和二番町ビルの現在の空室状況や賃貸条件については、お気軽にお問い合わせください。

興和二番町ビルを見た方が合わせてチェックしている物件

WORK VILLA HIRAKAWACHO

東京都千代田区平河町1-6-8

麹町駅 5分
49~101坪

大手町ゲートビルディング

東京都千代田区内神田1-1-12、14

大手町駅 4分
49~179坪

千代田ファーストビル東館

東京都千代田区西神田3-8-1

神保町駅 5分

赤坂スターゲートプラザ

東京都港区赤坂2-3-5

溜池山王駅 1分
102~235坪

品川イーストワンタワー

東京都港区港南2-16-1

品川駅 1分

飯田橋グラン・ブルーム

東京都千代田区富士見2-10-2

飯田橋駅 1分

第3虎の門電気ビルディング

東京都港区虎ノ門1-2-20

虎ノ門駅 2分

明治安田生命ビル

東京都千代田区丸の内2-1-1

二重橋前駅

※賃料、共益費は別途消費税の対象となります。 / ※階数や区画によって賃貸条件が異なる場合がございます。 / ※統合・分割区画は、別途条件がある場合がありますので、詳細はお問い合わせください。 / ※募集状況は変動があるため、お問い合わせをいただいた時点でご紹介ができない場合があります。 / ※賃貸条件や建物設備は変更することがあるため、ご契約内容の詳細は各建物の賃貸借契約書等でご確認ください。 / ※当サイトでは1983年以降に竣⼯した建物を「新耐震基準」と分類しています。 / ※端数処理の関係で、賃貸条件、建物・区画⾯積に誤差が⽣じる場合があります。 / ※掲載内容が現況と異なる場合は現況を優先いたします。 / ※契約成⽴の場合、法令に定める基準に従い仲介⼿数料を申し受けます。(⼀部例外もございます。)

この物件をお問い合わせ
チェックした物件をまとめてお問い合わせ