03-5288-9520

平日 9:00〜17:30

物件を探す

事業用不動産のあらゆるニーズを網羅するサービスと豊富な実績で、お客様の課題を解決する最適なソリューションをご提案いたします。

お役立ち情報

CBREが手掛けた、さまざまな業種・規模の移転事例のご紹介を始め、オフィスや物流拠点の移転に役立つ資料・情報をご提供しています。

マーケット情報

独自収集したデータを元に、不動産マーケットの市況を分析予測し、市場変化をいち早く捉え、ポイントをまとめた市場レポートを配信しています。
また、物件レポート、業界トレンド情報など、事業用不動産の最新情報、トレンドを配信しています。

CBREについて

事業用不動産の分野において、世界有数の企業であるCBRE。日本国内におけるその強み、拠点、会社概要をご紹介します。

ヘルプ

物件検索の使い方や、会員サービス、よくあるご質問など、当サイトをより便利にご利用いただくための情報をご紹介します。

仲介会社様はこちら
掲載終了 賃貸オフィス 物件番号 113101060302

住友不動産神田ビル2号館 11階 151.15坪

平日 9:00〜17:30 03-5288-9520
専門家に相談してみる
  • 更新を通知
  • URLを共有
住友不動産神田ビル2号館 11階は掲載終了しました

住友不動産神田ビル2号館 11階に類似した物件を非公開物件から紹介致します

不動産業界では様々な理由で一般公開前の非公開物件があります

  • 募集の準備が整っていない
  • オーナー意向で空室情報を公開していない
  • オーナーに伝わる前の解約予告情報

以上の理由からCBREが仲介する法人向け事業用物件には、WEBに公開できない空き情報があります。
お問い合わせ頂いたお客様に限り、鮮度の高い先行物件をご案内しております。

非公開物件のお問い合わせ
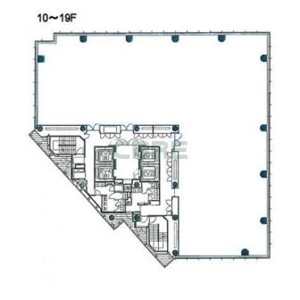
10階〜19階 平面図 10階〜19階 平面図
1/ 1
  • 10階〜19階 平面図
外観 外観
1/ 1
  • 外観
賃貸条件
募集階 11階
募集面積 151.15坪 / 499.68m2
空室用途 事務所
賃料・保証金等 -
入居時期 -
取引態様 -
情報更新日 2023年12月22日
物件概要
物件名 住友不動産神田ビル2号館
所在地 東京都千代田区神田須田町1-23-1
最寄り駅 東京メトロ丸ノ内線 淡路町駅 徒歩3分
山手線 神田駅 徒歩7分
中央本線 御茶ノ水駅 徒歩6分
竣工年月 2009年6月
規模 地上19階 地下2階
構造 鉄骨造
耐震性能 制震構造
基準階面積 244.81坪 / 809.28m2
延床面積 6,252.73坪 / 20,669.66m2
警備 機械警備・有人警備併用
駐車場 機械式・平面併用 最大 66台
エレベーター数 4基
基準天井高 2,800mm
基準床荷重 500kg/m2
空調 冷房: 個別空調 / 暖房: 個別空調
こだわり条件について

募集区画

選択 面積 空室用途 月額賃料・共益費 坪単価 入居時期 取引態様 図面 お気に入り
14階 244.81坪 事務所 - 掲載終了 - 掲載終了 library_books
14階
grade
13階 244.81坪 事務所 - 掲載終了 - 掲載終了 library_books
13階
grade
12階 93.65坪 事務所 - 掲載終了 - 掲載終了 grade
11階 151.15坪 事務所 - 掲載終了 - 掲載終了 library_books
11階
grade
11階 86.32坪 事務所 - 掲載終了 - 掲載終了 library_books
11階
grade
9階 244.81坪 事務所 - 掲載終了 - 掲載終了 grade
9階 244.81坪 事務所 - 掲載終了 - 掲載終了 library_books
9階
grade
8階 244.81坪 事務所 - 掲載終了 - 掲載終了 grade
7階 244.81坪 事務所 - 掲載終了 - 掲載終了 grade

住友不動産神田ビル2号館 11階 賃貸オフィス・事務所に関するお問い合わせ

03-5288-9520

平日 9:00〜17:30

シービーアールイー株式会社
物件探しのご相談

〒100-0005 東京都千代田区丸の内2-1-1 明治安田生命ビル 21F
免許番号:宅地建物取引業 国土交通大臣免許 (15) 第1075号

この空室をお問い合わせ

オフィスの移転・新規拠点開設はシービーアールイーにご相談ください。最適なオフィスソリューションとサポートを提供いたします。

住友不動産神田ビル2号館を見た方が合わせてチェックしている物件

いちご渋谷道玄坂ビル

東京都渋谷区円山町28-3

神泉駅 3分
39~62坪

日本橋ライフサイエンスビルディング3

東京都中央区日本橋本町3-8-3

新日本橋駅 1分

NEWS日本橋堀留町

東京都中央区日本橋堀留町1-9-11

人形町駅 3分

翔和神田ビルⅡ

東京都千代田区神田東松下町10-5

神田駅 4分
39坪

MFPR日本橋本町ビル

東京都中央区日本橋本町3-7-2

新日本橋駅 1分

京王東日本橋ビル

東京都中央区東日本橋1-1-7

東日本橋駅 2分

麹町市原ビル

東京都千代田区平河町1-1-8

半蔵門駅 1分

翔和神田ビルⅡ セットアップオフィス

東京都千代田区神田東松下町10-5

神田駅 4分
39坪

※賃料、共益費は別途消費税の対象となります。 / ※階数や区画によって賃貸条件が異なる場合がございます。 / ※統合・分割区画は、別途条件がある場合がありますので、詳細はお問い合わせください。 / ※募集状況は変動があるため、お問い合わせをいただいた時点でご紹介ができない場合があります。 / ※賃貸条件や建物設備は変更することがあるため、ご契約内容の詳細は各建物の賃貸借契約書等でご確認ください。 / ※当サイトでは1983年以降に竣⼯した建物を「新耐震基準」と分類しています。 / ※端数処理の関係で、賃貸条件、建物・区画⾯積に誤差が⽣じる場合があります。 / ※掲載内容が現況と異なる場合は現況を優先いたします。 / ※契約成⽴の場合、法令に定める基準に従い仲介⼿数料を申し受けます。(⼀部例外もございます。)

この物件をお問い合わせ
チェックした物件をまとめてお問い合わせ