011-231-6931

平日 9:00〜17:30

物件を探す

事業用不動産のあらゆるニーズを網羅するサービスと豊富な実績で、お客様の課題を解決する最適なソリューションをご提案いたします。

お役立ち情報

CBREが手掛けた、さまざまな業種・規模の移転事例のご紹介を始め、オフィスや物流拠点の移転に役立つ資料・情報をご提供しています。

マーケット情報

独自収集したデータを元に、不動産マーケットの市況を分析予測し、市場変化をいち早く捉え、ポイントをまとめた市場レポートを配信しています。
また、物件レポート、業界トレンド情報など、事業用不動産の最新情報、トレンドを配信しています。

CBREについて

事業用不動産の分野において、世界有数の企業であるCBRE。日本国内におけるその強み、拠点、会社概要をご紹介します。

ヘルプ

物件検索の使い方や、会員サービス、よくあるご質問など、当サイトをより便利にご利用いただくための情報をご紹介します。

仲介会社様はこちら
賃貸オフィス 物件番号 101207010025

第2いせきビル 6階 24.5坪

平日 9:00〜17:30 011-231-6931
専門家に相談してみる
  • 更新を通知
  • URLを共有
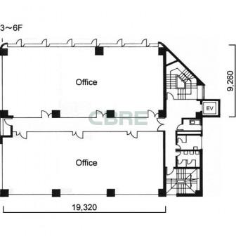
3階〜6階 平面図 3階〜6階 平面図
1/ 1
  • 3階〜6階 平面図
外観 外観
1/ 1
  • 外観
賃貸条件
募集階 6階
募集面積 24.5坪 / 80.99m2
空室用途 事務所
賃料 月額121,400円(4,955円/坪)
共益費 月額31,900円(1,302円/坪)
賃料+共益費 月額153,300円(6,257円/坪)
敷金 3ヶ月
入居時期 即入居可
取引態様 媒介
情報更新日 2026年2月24日
空室概要
天井高 2,500mm
物件概要
物件名 第2いせきビル
所在地 北海道帯広市西五条南13-8-1
最寄り駅 根室本線 帯広駅 徒歩3分
竣工年月 1985年9月
規模 地上6階 地下1階
構造 鉄筋コンクリート造
基準階面積 108.07坪 / 357.25m2
延床面積 854.13坪 / 2,823.57m2
警備 機械警備
駐車場 平面 最大 50台
エレベーター数 1基
基準天井高 2,500mm
空調 冷房: 個別空調 / 暖房: 個別空調
  • 駅3分
  • 新耐震
  • 即入居可
こだわり条件について

募集区画

選択 面積 空室用途 月額賃料・共益費 坪単価 入居時期 取引態様 図面 お気に入り
6階 24.5坪 事務所 153,300円 6,257円/坪 即入居可 媒介 library_books
6階
grade
4階 24.5坪 事務所 相談 相談 即入居可 媒介 library_books
4階
grade
4階 20.8坪 事務所 140,300円 6,745円/坪 即入居可 媒介 library_books
4階
grade
2階 16.12坪 事務所 101,000円 6,264円/坪 即入居可 媒介 library_books
2階
grade
選択 面積 空室用途 月額賃料・共益費 坪単価 入居時期 取引態様 図面 お気に入り
6階 19.5坪 事務所 - 掲載終了 - 掲載終了 library_books
6階
grade
5階 15.4坪 事務所 - 掲載終了 - 掲載終了 grade
5階 19.5坪 事務所 - 掲載終了 - 掲載終了 library_books
5階
grade
4階 15.76坪 事務所 - 掲載終了 - 掲載終了 grade
4階 10.98坪 事務所 - 掲載終了 - 掲載終了 library_books
4階
grade
4階 19.5坪 事務所 - 掲載終了 - 掲載終了 library_books
4階
grade
3階 28.4坪 事務所 - 掲載終了 - 掲載終了 library_books
3階
grade
2階 32.3坪 事務所 - 掲載終了 - 掲載終了 library_books
2階
grade
掲載終了した区画

第2いせきビル 6階 賃貸オフィス・事務所に関するお問い合わせ

011-231-6931

平日 9:00〜17:30

シービーアールイー株式会社
札幌支店

〒060-0003 北海道札幌市中央区北3条西4-1-1 日本生命札幌ビル15F
免許番号:宅地建物取引業 国土交通大臣免許 (15) 第1075号

この空室をお問い合わせ

オフィスの移転・新規拠点開設はシービーアールイーにご相談ください。最適なオフィスソリューションとサポートを提供いたします。

第2いせきビルを見た方が合わせてチェックしている物件

日本生命帯広駅前ビル

北海道帯広市西三条南10-32

帯広駅 3分
19坪

北海道新聞社帯広ビル

北海道帯広市西四条南9-1-4

帯広駅 5分
15~36坪

アクア旭川ビル

北海道旭川市6条通7-31-1

旭川駅 15分
16~116坪

明治安田生命函館ビル

北海道函館市若松町2-5

函館駅 4分
17~62坪

三ツ輪ビルディング

北海道釧路市錦町5-3

釧路駅 10分
18~37坪

一条緑橋通ビル

北海道旭川市1条通8-542-4

旭川駅 5分
10~30坪

旭川三条緑橋ビル

北海道旭川市3条通9-左1

旭川駅 5分
29~82坪

グラン旭川

北海道旭川市4条通7-793-1

旭川駅 8分

※賃料、共益費は別途消費税の対象となります。 / ※階数や区画によって賃貸条件が異なる場合がございます。 / ※統合・分割区画は、別途条件がある場合がありますので、詳細はお問い合わせください。 / ※募集状況は変動があるため、お問い合わせをいただいた時点でご紹介ができない場合があります。 / ※賃貸条件や建物設備は変更することがあるため、ご契約内容の詳細は各建物の賃貸借契約書等でご確認ください。 / ※当サイトでは1983年以降に竣⼯した建物を「新耐震基準」と分類しています。 / ※端数処理の関係で、賃貸条件、建物・区画⾯積に誤差が⽣じる場合があります。 / ※掲載内容が現況と異なる場合は現況を優先いたします。 / ※契約成⽴の場合、法令に定める基準に従い仲介⼿数料を申し受けます。(⼀部例外もございます。)

この物件をお問い合わせ
チェックした物件をまとめてお問い合わせ