物件を探す

事業用不動産のあらゆるニーズを網羅するサービスと豊富な実績で、お客様の課題を解決する最適なソリューションをご提案いたします。

お役立ち情報

CBREが手掛けた、さまざまな業種・規模の移転事例のご紹介を始め、オフィスや物流拠点の移転に役立つ資料・情報をご提供しています。

マーケット情報

独自収集したデータを元に、不動産マーケットの市況を分析予測し、市場変化をいち早く捉え、ポイントをまとめた市場レポートを配信しています。
また、物件レポート、業界トレンド情報など、事業用不動産の最新情報、トレンドを配信しています。

CBREについて

事業用不動産の分野において、世界有数の企業であるCBRE。日本国内におけるその強み、拠点、会社概要をご紹介します。

ヘルプ

物件検索の使い方や、会員サービス、よくあるご質問など、当サイトをより便利にご利用いただくための情報をご紹介します。

仲介会社様はこちら
掲載終了 賃貸オフィス 仲介手数料0円 物件番号 nc104101030004

フージャース仙台本町ビル | 仲介手数料0円オフィス

  • 更新を通知
  • URLを共有
フージャース仙台本町ビルは掲載終了しました

フージャース仙台本町ビルに類似した物件を非公開物件から紹介致します

不動産業界では様々な理由で一般公開前の非公開物件があります

  • 募集の準備が整っていない
  • オーナー意向で空室情報を公開していない
  • オーナーに伝わる前の解約予告情報

以上の理由からCBREが仲介する法人向け事業用物件には、WEBに公開できない空き情報があります。
お問い合わせ頂いたお客様に限り、鮮度の高い先行物件をご案内しております。

非公開物件のお問い合わせ
外観 外観
1/ 1
  • 外観
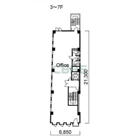
物件概要
物件名 フージャース仙台本町ビル
所在地 宮城県仙台市青葉区本町1-9-6
最寄り駅 市営地下鉄南北線 広瀬通駅 徒歩5分
常磐線 仙台駅 徒歩10分
竣工年月 1982年1月
規模 地上7階 地下1階
構造 鉄骨鉄筋コンクリート造
基準階面積 33.94坪 / 112.19m2
延床面積 298.47坪 / 986.71m2
警備 機械警備
駐車場 なし
エレベーター数 1基
基準天井高 2,580mm
こだわり条件について

募集区画

選択 面積 空室用途 月額賃料・共益費 坪単価 入居時期 取引態様 図面 お気に入り
6階 15.48坪 事務所 - 掲載終了 - 掲載終了 library_books
6階
grade
6階 5.65坪 事務所 - 掲載終了 - 掲載終了 library_books
6階
grade
3階 15.49坪 事務所 - 掲載終了 - 掲載終了 library_books
3階
grade

フージャース仙台本町ビルの賃貸オフィス・事務所に関するお問い合わせ

シービーアールイー株式会社
仙台支店

〒980-0021 宮城県仙台市青葉区中央1-2-3 仙台マークワン 16F
免許番号:宅地建物取引業 国土交通大臣免許 (15) 第1075号

この物件をお問い合わせ

オフィスの移転・新規拠点開設はシービーアールイーにご相談ください。最適なオフィスソリューションとサポートを提供いたします。

仙台駅西口エリアの想定成約賃料

12,380円 / 坪 (共益費含)

2026年1月現在

  • ※CBREで設定したオフィスマーケットエリアにおいて、規模、設備等で各エリアを代表すると考えられる複数のオフィスビルの想定成約賃料をもとに算出しています。不動産市場における賃料水準に関する意見であり、成約賃料を保証するものではありませんので、あらかじめご了承ください。

仲介⼿数料無料のクイックサポート

  • CBRE担当者が非対面でお客様とコミュニケーションを行い、資料提供から契約締結までをクイックにサポートします。
  • 内覧は、直接物件オーナーや管理会社と⾏なっていただき、CBREでは⽴会いを⾏いません
  • ⼿数料無料物件で契約される場合でも、CBREが重要事項説明を行い、取引の安全性を確保いたします。

仲介手数料0円オフィスは、以下の利用条件に同意されたお客様にご利用いただけるオフィス用途限定のサービスです。

  • 過去3ヶ月以内にCBREの営業から問合せ物件の紹介・案内・交渉等を受けていません。
  • 現地内覧にはCBREは立ち会いません。
  • お客様とのコミュニケーションは原則非対面で行います。

仲介⼿数料有料物件ではCBREの営業がお客様のご移転を徹底サポート!

  • ⾮公開物件を含めた、お客様の条件にマッチする物件を紹介できます。
    業界随⼀のネットワークとデータベースを駆使した情報⼒には自信があります。
  • 複数物件の内覧など、お客様の要望に合わせて内覧⽇程を調整します。
    また、CBREの営業が同⾏しプロの視点でおさえるべきポイントをアドバイスいたします。
  • あらゆる⾓度からの⽐較検討材料を提供し選定根拠の明確化を⾏います。
  • 約10万件の契約実績に基づくノウハウをベースに、競争原理のもと有利な交渉条件を引き出します。
  • 豊富な経験と専門性を持つプロフェッショナルが、取引の安全性を確保しつつ、お客様の利益の最大化を図ります。

フージャース仙台本町ビルを見た方が合わせてチェックしている物件

フージャース仙台本町ビル

宮城県仙台市青葉区本町1-9-6

広瀬通駅 5分

二日町東急ビル

宮城県仙台市青葉区二日町16-1

北四番丁駅 4分
41坪

五橋ビジネスセンタービル

宮城県仙台市青葉区五橋1-4-30

五橋駅 3分

日本生命仙台勾当台ビル

宮城県仙台市青葉区上杉1-6-11

北四番丁駅 2分

鹿島定禅寺ビル

宮城県仙台市青葉区本町2-18-21

勾当台公園駅 1分
55~134坪

仙台一番町ビル

宮城県仙台市青葉区一番町2-10-17


174坪

花京院ビルディング

宮城県仙台市青葉区花京院2-1-14

仙台駅 10分

インテリックス仙台ビル

宮城県仙台市青葉区本町1-6-23

仙台駅 8分

※賃料、共益費は別途消費税の対象となります。 / ※階数や区画によって賃貸条件が異なる場合がございます。 / ※統合・分割区画は、別途条件がある場合がありますので、詳細はお問い合わせください。 / ※募集状況は変動があるため、お問い合わせをいただいた時点でご紹介ができない場合があります。 / ※賃貸条件や建物設備は変更することがあるため、ご契約内容の詳細は各建物の賃貸借契約書等でご確認ください。 / ※当サイトでは1983年以降に竣⼯した建物を「新耐震基準」と分類しています。 / ※端数処理の関係で、賃貸条件、建物・区画⾯積に誤差が⽣じる場合があります。 / ※掲載内容が現況と異なる場合は現況を優先いたします。

この物件をお問い合わせ
チェックした物件をまとめてお問い合わせ