06-6292-1720

平日 9:00〜17:30

物件を探す

事業用不動産のあらゆるニーズを網羅するサービスと豊富な実績で、お客様の課題を解決する最適なソリューションをご提案いたします。

お役立ち情報

CBREが手掛けた、さまざまな業種・規模の移転事例のご紹介を始め、オフィスや物流拠点の移転に役立つ資料・情報をご提供しています。

マーケット情報

独自収集したデータを元に、不動産マーケットの市況を分析予測し、市場変化をいち早く捉え、ポイントをまとめた市場レポートを配信しています。
また、物件レポート、業界トレンド情報など、事業用不動産の最新情報、トレンドを配信しています。

CBREについて

事業用不動産の分野において、世界有数の企業であるCBRE。日本国内におけるその強み、拠点、会社概要をご紹介します。

ヘルプ

物件検索の使い方や、会員サービス、よくあるご質問など、当サイトをより便利にご利用いただくための情報をご紹介します。

仲介会社様はこちら
掲載終了 賃貸オフィス 物件番号 127128090564

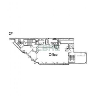
中央内本町ビル 2階 67.51坪

平日 9:00〜17:30 06-6292-1720
専門家に相談してみる
  • 更新を通知
  • URLを共有
中央内本町ビル 2階は掲載終了しました

中央内本町ビル 2階に類似した物件を非公開物件から紹介致します

不動産業界では様々な理由で一般公開前の非公開物件があります

  • 募集の準備が整っていない
  • オーナー意向で空室情報を公開していない
  • オーナーに伝わる前の解約予告情報

以上の理由からCBREが仲介する法人向け事業用物件には、WEBに公開できない空き情報があります。
お問い合わせ頂いたお客様に限り、鮮度の高い先行物件をご案内しております。

非公開物件のお問い合わせ
2階 平面図 2階 平面図
1/ 1
  • 2階 平面図
外観 外観
1/ 1
  • 外観
賃貸条件
募集階 2階
募集面積 67.51坪 / 223.17m2
空室用途 事務所
賃料・保証金等 -
入居時期 -
取引態様 -
情報更新日 2021年3月29日
物件概要
物件名 中央内本町ビル
所在地 大阪府大阪市中央区内本町2-4-12
最寄り駅 Osaka Metro中央線 堺筋本町駅 徒歩6分
Osaka Metro谷町線 谷町四丁目駅 徒歩6分
竣工年月 1983年8月
規模 地上9階
構造 鉄骨造
基準階面積 59.35坪 / 196.19m2
延床面積 909.32坪 / 3,006.04m2
警備 機械警備
駐車場 機械式
エレベーター数 1基
基準天井高 2,500mm
空調 冷房: 個別空調 / 暖房: 個別空調
こだわり条件について

募集区画

選択 面積 空室用途 月額賃料・共益費 坪単価 入居時期 取引態様 図面 お気に入り
8階 84.44坪 事務所 - 掲載終了 - 掲載終了 grade
8階 74.86坪 事務所 - 掲載終了 - 掲載終了 library_books
8階
grade
7階 38.9坪 事務所 - 掲載終了 - 掲載終了 grade
6階 45.9坪 事務所 - 掲載終了 - 掲載終了 grade
6階 33.7坪 事務所 - 掲載終了 - 掲載終了 library_books
6階
grade
5階 31.2坪 事務所 - 掲載終了 - 掲載終了 library_books
5階
grade
4階 78.05坪 事務所 - 掲載終了 - 掲載終了 library_books
4階
grade
3階 65.93坪 事務所 - 掲載終了 - 掲載終了 library_books
3階
grade
3階 65.93坪 事務所 - 掲載終了 - 掲載終了 library_books
3階
grade
2階 67.51坪 事務所 - 掲載終了 - 掲載終了 library_books
2階
grade
2階 74.72坪 事務所 - 掲載終了 - 掲載終了 library_books
2階
grade
1階 76.72坪 事務所 - 掲載終了 - 掲載終了 library_books
1階
grade

中央内本町ビル 2階 賃貸オフィス・事務所に関するお問い合わせ

06-6292-1720

平日 9:00〜17:30

シービーアールイー株式会社
関西支社 オフィス(賃貸事務所 担当)

〒530-0011 大阪府大阪市北区大深町4-20 グランフロント大阪 タワーA 32F
免許番号:宅地建物取引業 国土交通大臣免許 (15) 第1075号

この空室をお問い合わせ

オフィスの移転・新規拠点開設はシービーアールイーにご相談ください。最適なオフィスソリューションとサポートを提供いたします。

中央内本町ビルを見た方が合わせてチェックしている物件

フェニックス内本町ビル

大阪府大阪市中央区内本町2-1-13

谷町四丁目駅 7分
45~71坪

北浜NEXU BUILD

大阪府大阪市中央区北浜東4-33

北浜駅 5分
163~326坪

京阪神瓦町ビル

大阪府大阪市中央区瓦町4-2-14

本町駅 2分

明治安田生命大阪梅田ビル

大阪府大阪市北区梅田3-3-20

西梅田駅 5分
15~286坪

いちご内本町ビル

大阪府大阪市中央区内本町1-3-5

谷町四丁目駅 3分

ゼント心斎橋

大阪府大阪市中央区南船場4-3-2

心斎橋駅 2分
40~92坪

EDGE本町

大阪府大阪市中央区南本町2-3-12

堺筋本町駅 1分
160坪

本町太平ビル

大阪府大阪市中央区博労町4-5-9

本町駅 4分
39~125坪

※賃料、共益費は別途消費税の対象となります。 / ※階数や区画によって賃貸条件が異なる場合がございます。 / ※統合・分割区画は、別途条件がある場合がありますので、詳細はお問い合わせください。 / ※募集状況は変動があるため、お問い合わせをいただいた時点でご紹介ができない場合があります。 / ※賃貸条件や建物設備は変更することがあるため、ご契約内容の詳細は各建物の賃貸借契約書等でご確認ください。 / ※当サイトでは1983年以降に竣⼯した建物を「新耐震基準」と分類しています。 / ※端数処理の関係で、賃貸条件、建物・区画⾯積に誤差が⽣じる場合があります。 / ※掲載内容が現況と異なる場合は現況を優先いたします。 / ※契約成⽴の場合、法令に定める基準に従い仲介⼿数料を申し受けます。(⼀部例外もございます。)

この物件をお問い合わせ
チェックした物件をまとめてお問い合わせ