06-6292-1720

平日 9:00〜17:30

物件を探す

事業用不動産のあらゆるニーズを網羅するサービスと豊富な実績で、お客様の課題を解決する最適なソリューションをご提案いたします。

お役立ち情報

CBREが手掛けた、さまざまな業種・規模の移転事例のご紹介を始め、オフィスや物流拠点の移転に役立つ資料・情報をご提供しています。

マーケット情報

独自収集したデータを元に、不動産マーケットの市況を分析予測し、市場変化をいち早く捉え、ポイントをまとめた市場レポートを配信しています。
また、物件レポート、業界トレンド情報など、事業用不動産の最新情報、トレンドを配信しています。

CBREについて

事業用不動産の分野において、世界有数の企業であるCBRE。日本国内におけるその強み、拠点、会社概要をご紹介します。

ヘルプ

物件検索の使い方や、会員サービス、よくあるご質問など、当サイトをより便利にご利用いただくための情報をご紹介します。

仲介会社様はこちら
掲載終了 賃貸オフィス 物件番号 127127070030

リゾートトラスト御堂筋ビル 1-2階 49.69坪

平日 9:00〜17:30 06-6292-1720
専門家に相談してみる
  • 更新を通知
  • URLを共有
リゾートトラスト御堂筋ビル 1-2階は掲載終了しました

リゾートトラスト御堂筋ビル 1-2階に類似した物件を非公開物件から紹介致します

不動産業界では様々な理由で一般公開前の非公開物件があります

  • 募集の準備が整っていない
  • オーナー意向で空室情報を公開していない
  • オーナーに伝わる前の解約予告情報

以上の理由からCBREが仲介する法人向け事業用物件には、WEBに公開できない空き情報があります。
お問い合わせ頂いたお客様に限り、鮮度の高い先行物件をご案内しております。

非公開物件のお問い合わせ
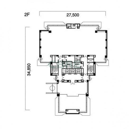
基準階 平面図 基準階 平面図
1階 平面図 1階 平面図
2階 平面図 2階 平面図
1/ 3
  • 基準階 平面図
  • 1階 平面図
  • 2階 平面図
外観 外観
内観 内観
内観 内観
内観 内観
内観 内観
内観 内観
エントランス エントランス
エレベーターホール エレベーターホール
トイレ トイレ
トイレ トイレ
給湯室 給湯室
荷物用昇降設備 荷物用昇降設備
建物前面スペース 建物前面スペース
1/ 13
  • 外観
  • 内観
  • 内観
  • 内観
  • 内観
  • 内観
  • エントランス
  • エレベーターホール
  • トイレ
  • トイレ
  • 給湯室
  • 荷物用昇降設備
  • 建物前面スペース
賃貸条件
募集階 1-2階
募集面積 49.69坪 / 164.26m2
空室用途 事務所 / サービス店舗
賃料・保証金等 -
入居時期 -
取引態様 -
情報更新日 2025年4月15日
物件概要
物件名 リゾートトラスト御堂筋ビル
所在地 大阪府大阪市北区西天満4-14-3
最寄り駅 Osaka Metro谷町線 東梅田駅 徒歩6分
JR東西線 北新地駅 徒歩2分
Osaka Metro御堂筋線 梅田駅 徒歩9分
竣工年月 1983年3月
規模 地上20階 地下1階
構造 鉄骨鉄筋コンクリート造
基準階面積 153.03坪 / 505.9m2
延床面積 4,453.23坪 / 14,721.45m2
警備 機械警備・有人警備併用
駐車場 機械式・平面併用 最大 51台
エレベーター数 4基
基準天井高 2,410mm
基準床荷重 300kg/m2
空調 冷房: 全館+個別空調 / 暖房: 全館+個別空調
付帯設備 自家発電設備 / 貸会議室
こだわり条件について

募集区画

選択 面積 空室用途 月額賃料・共益費 坪単価 入居時期 取引態様 図面 お気に入り
18階 54.13坪 事務所 - 掲載終了 - 掲載終了 grade
18階 54.13坪 事務所 - 掲載終了 - 掲載終了 grade
18階 54.14坪
(分割案)
事務所 - 掲載終了 - 掲載終了 grade
18階 54.14坪
(分割案)
事務所 - 掲載終了 - 掲載終了 grade
18階 108.27坪 事務所 - 掲載終了 - 掲載終了 grade
17階 48.35坪 事務所 - 掲載終了 - 掲載終了 grade
17階 108.27坪 事務所 - 掲載終了 - 掲載終了 grade
15階 108.27坪 事務所 - 掲載終了 - 掲載終了 grade
15階 44.75坪 事務所 - 掲載終了 - 掲載終了 grade
14階 108.27坪 事務所 - 掲載終了 - 掲載終了 grade
13階 108.27坪 事務所 - 掲載終了 - 掲載終了 grade
13階 108.27坪 事務所 - 掲載終了 - 掲載終了 grade
12階 44.75坪 事務所 - 掲載終了 - 掲載終了 grade
12階 44.75坪 事務所 - 掲載終了 - 掲載終了 grade
12階 104.14坪 事務所 - 掲載終了 - 掲載終了 grade
12階 44.75坪 事務所 - 掲載終了 - 掲載終了 grade
10階 54.14坪 事務所 - 掲載終了 - 掲載終了 grade
7階 54.14坪 事務所 - 掲載終了 - 掲載終了 grade
6階 64.65坪 事務所 - 掲載終了 - 掲載終了 grade
6階 64.65坪 事務所 - 掲載終了 - 掲載終了 grade
5階 153.03坪 事務所 - 掲載終了 - 掲載終了 grade
5階 153.03坪 事務所 - 掲載終了 - 掲載終了 grade
4階 44.75坪 事務所 - 掲載終了 - 掲載終了 grade
2階 108.27坪 事務所 - 掲載終了 - 掲載終了 grade
1-2階 49.69坪 事務所 - 掲載終了 - 掲載終了 library_books
1-2階
grade

リゾートトラスト御堂筋ビル 1-2階 賃貸オフィス・事務所に関するお問い合わせ

06-6292-1720

平日 9:00〜17:30

シービーアールイー株式会社
関西支社 オフィス(賃貸事務所 担当)

〒530-0011 大阪府大阪市北区大深町4-20 グランフロント大阪 タワーA 32F
免許番号:宅地建物取引業 国土交通大臣免許 (15) 第1075号

この空室をお問い合わせ

オフィスの移転・新規拠点開設はシービーアールイーにご相談ください。最適なオフィスソリューションとサポートを提供いたします。

リゾートトラスト御堂筋ビルを見た方が合わせてチェックしている物件

ビジネスゾーン北堀江

大阪府大阪市西区北堀江2-2-17

四ツ橋駅 5分

四ツ橋グランドビル

大阪府大阪市西区新町1-4-26

四ツ橋駅 1分
40~129坪

堂島ビルヂング

大阪府大阪市北区西天満2-6-8

大江橋駅 2分

イトーピア谷町ビル

大阪府大阪市天王寺区生玉前町1-17

谷町九丁目駅 1分

近鉄堂島ビル

大阪府大阪市北区堂島2-2-2

西梅田駅 2分
46坪

ハービスENT(梅田阪神第2ビルディング)

大阪府大阪市北区梅田2-2-22

大阪梅田駅 1分

ミナルコビル

大阪府堺市堺区翁橋町1-1-1

堺東駅 10分
33坪

三共四ツ橋ビル

大阪府大阪市西区南堀江1-11-1

四ツ橋駅 2分

※賃料、共益費は別途消費税の対象となります。 / ※階数や区画によって賃貸条件が異なる場合がございます。 / ※統合・分割区画は、別途条件がある場合がありますので、詳細はお問い合わせください。 / ※募集状況は変動があるため、お問い合わせをいただいた時点でご紹介ができない場合があります。 / ※賃貸条件や建物設備は変更することがあるため、ご契約内容の詳細は各建物の賃貸借契約書等でご確認ください。 / ※当サイトでは1983年以降に竣⼯した建物を「新耐震基準」と分類しています。 / ※端数処理の関係で、賃貸条件、建物・区画⾯積に誤差が⽣じる場合があります。 / ※掲載内容が現況と異なる場合は現況を優先いたします。 / ※契約成⽴の場合、法令に定める基準に従い仲介⼿数料を申し受けます。(⼀部例外もございます。)

この物件をお問い合わせ
チェックした物件をまとめてお問い合わせ