052-238-1055

平日 9:00〜17:30

物件を探す

事業用不動産のあらゆるニーズを網羅するサービスと豊富な実績で、お客様の課題を解決する最適なソリューションをご提案いたします。

お役立ち情報

CBREが手掛けた、さまざまな業種・規模の移転事例のご紹介を始め、オフィスや物流拠点の移転に役立つ資料・情報をご提供しています。

マーケット情報

独自収集したデータを元に、不動産マーケットの市況を分析予測し、市場変化をいち早く捉え、ポイントをまとめた市場レポートを配信しています。
また、物件レポート、業界トレンド情報など、事業用不動産の最新情報、トレンドを配信しています。

CBREについて

事業用不動産の分野において、世界有数の企業であるCBRE。日本国内におけるその強み、拠点、会社概要をご紹介します。

ヘルプ

物件検索の使い方や、会員サービス、よくあるご質問など、当サイトをより便利にご利用いただくための情報をご紹介します。

仲介会社様はこちら
賃貸オフィス 物件番号 123107060050

朝日生命名古屋東ビル 4階 31.15坪

平日 9:00〜17:30 052-238-1055
専門家に相談してみる
  • 更新を通知
  • URLを共有
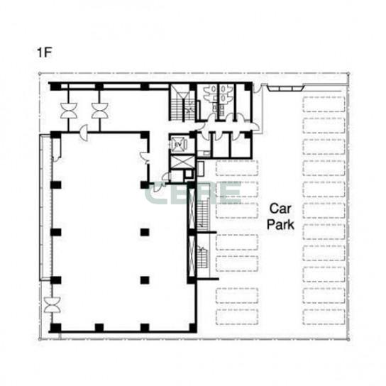
2階〜6階 平面図 2階〜6階 平面図
1/ 1
  • 2階〜6階 平面図
外観 外観
エントランス エントランス
共用設備 共用設備
1/ 3
  • 外観
  • エントランス
  • 共用設備
賃貸条件
募集階 4階
募集面積 31.15坪 / 102.98m2 (分割案)
空室用途 事務所
賃料 相談
共益費 月額118,370円(3,800円/坪)
賃料+共益費 相談
入居時期 即入居可
取引態様 媒介
情報更新日 2026年4月8日
物件概要
物件名 朝日生命名古屋東ビル
所在地 愛知県名古屋市昭和区阿由知通4-13
最寄り駅 市営地下鉄桜通線 御器所駅 徒歩3分
竣工年月 1971年11月
規模 地上6階 地下1階
構造 鉄筋コンクリート造
延床面積 1,096.35坪 / 3,624.31m2
警備 機械警備・有人警備併用
駐車場 機械式 最大 20台
エレベーター数 2基
基準天井高 2,630mm
空調 冷房: フロア毎空調 / 暖房: フロア毎空調
  • 駅3分
  • 即入居可
こだわり条件について

募集区画

選択 面積 空室用途 月額賃料・共益費 坪単価 入居時期 取引態様 図面 お気に入り
4階 51.61坪 事務所 相談 相談 即入居可 媒介 library_books
4階
grade
4階 31.15坪
(分割案)
事務所 相談 相談 即入居可 媒介 library_books
4階
grade
選択 面積 空室用途 月額賃料・共益費 坪単価 入居時期 取引態様 図面 お気に入り
6階 31.15坪 事務所 - 掲載終了 - 掲載終了 library_books
6階
grade
6階 40.92坪 事務所 - 掲載終了 - 掲載終了 grade
6階 31.15坪 事務所 - 掲載終了 - 掲載終了 grade
6階 40.92坪 事務所 - 掲載終了 - 掲載終了 grade
6階 45.26坪
(統合案)
事務所 - 掲載終了 - 掲載終了 library_books
6階
grade
3階 86.19坪 事務所 - 掲載終了 - 掲載終了 library_books
3階
grade
3階 61.39坪 事務所 - 掲載終了 - 掲載終了 library_books
3階
grade
2階 40.92坪
(統合案)
事務所 - 掲載終了 - 掲載終了 library_books
2階
grade
1階 90.25坪 事務所 - 掲載終了 - 掲載終了 grade
1階 90.25坪 事務所・店舗 - 掲載終了 - 掲載終了 grade
1階 92.57坪 事務所 - 掲載終了 - 掲載終了 library_books
1階
grade
掲載終了した区画

朝日生命名古屋東ビル 4階 賃貸オフィス・事務所に関するお問い合わせ

052-238-1055

平日 9:00〜17:30

シービーアールイー株式会社
名古屋支店 オフィス(賃貸事務所 担当)

〒460-0008 愛知県名古屋市中区栄4-1-1 中日ビル 21F
免許番号:宅地建物取引業 国土交通大臣免許 (15) 第1075号

この空室をお問い合わせ

オフィスの移転・新規拠点開設はシービーアールイーにご相談ください。最適なオフィスソリューションとサポートを提供いたします。

朝日生命名古屋東ビルを見た方が合わせてチェックしている物件

朝日生命矢場町ビル

愛知県名古屋市中区栄3-32-20

矢場町駅 1分

葵ガーデンビル

愛知県名古屋市東区葵1-16-38

新栄町駅 1分

アーク白川公園ビルディング本館

愛知県名古屋市中区栄2-2-23

伏見駅 3分

CK22キリン広小路ビル

愛知県名古屋市中区栄2-3-31

伏見駅 3分
59坪

雲竜フレックスビル西館

愛知県名古屋市中区新栄2-1-9

新栄町駅 3分
31~111坪

CIRCLES名古屋錦 9階

愛知県名古屋市中区錦1-2-34

国際センター駅 4分
66坪

サカエ・ミヤシタビル

愛知県名古屋市中区栄1-15-6

伏見駅 7分

あいおいニッセイ同和損保岡崎ビル

愛知県岡崎市伝馬通2-24

東岡崎駅 10分

※賃料、共益費は別途消費税の対象となります。 / ※階数や区画によって賃貸条件が異なる場合がございます。 / ※統合・分割区画は、別途条件がある場合がありますので、詳細はお問い合わせください。 / ※募集状況は変動があるため、お問い合わせをいただいた時点でご紹介ができない場合があります。 / ※賃貸条件や建物設備は変更することがあるため、ご契約内容の詳細は各建物の賃貸借契約書等でご確認ください。 / ※当サイトでは1983年以降に竣⼯した建物を「新耐震基準」と分類しています。 / ※端数処理の関係で、賃貸条件、建物・区画⾯積に誤差が⽣じる場合があります。 / ※掲載内容が現況と異なる場合は現況を優先いたします。 / ※契約成⽴の場合、法令に定める基準に従い仲介⼿数料を申し受けます。(⼀部例外もございます。)

この物件をお問い合わせ
チェックした物件をまとめてお問い合わせ