076-224-6310

平日 9:00〜17:30

物件を探す

事業用不動産のあらゆるニーズを網羅するサービスと豊富な実績で、お客様の課題を解決する最適なソリューションをご提案いたします。

お役立ち情報

CBREが手掛けた、さまざまな業種・規模の移転事例のご紹介を始め、オフィスや物流拠点の移転に役立つ資料・情報をご提供しています。

マーケット情報

独自収集したデータを元に、不動産マーケットの市況を分析予測し、市場変化をいち早く捉え、ポイントをまとめた市場レポートを配信しています。
また、物件レポート、業界トレンド情報など、事業用不動産の最新情報、トレンドを配信しています。

CBREについて

事業用不動産の分野において、世界有数の企業であるCBRE。日本国内におけるその強み、拠点、会社概要をご紹介します。

ヘルプ

物件検索の使い方や、会員サービス、よくあるご質問など、当サイトをより便利にご利用いただくための情報をご紹介します。

仲介会社様はこちら
賃貸オフィス 物件番号 116202010078

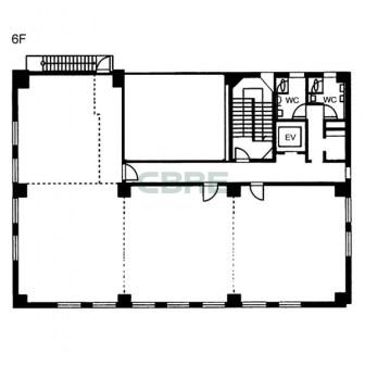
広小路セントラルビル 6階 69.26坪

平日 9:00〜17:30 076-224-6310
専門家に相談してみる
  • 更新を通知
  • URLを共有
2階〜6階 平面図 2階〜6階 平面図
6階 平面図 6階 平面図
1/ 2
  • 2階〜6階 平面図
  • 6階 平面図
外観 外観
外観 外観
内観 内観
1/ 5
  • 外観
  • 外観
  • 内観
賃貸条件
募集階 6階
募集面積 69.26坪 / 228.96m2
空室用途 事務所
賃料 月額412,000円(5,949円/坪)
共益費 賃料に込み
賃料+共益費 月額412,000円(5,949円/坪)
敷金 3ヶ月
入居時期 即入居可
取引態様 媒介
情報更新日 2026年3月5日
物件概要
物件名 広小路セントラルビル
所在地 富山県高岡市丸の内7-1
最寄り駅 あいの風とやま鉄道線 高岡駅 徒歩26分
竣工年月 1985年4月
規模 地上6階
構造 鉄筋コンクリート造
基準階面積 71.84坪 / 237.5m2
延床面積 531.06坪 / 1,755.59m2
警備 機械警備
駐車場 機械式 最大 30台
エレベーター数 1基
基準天井高 2,500mm
空調 冷房: 個別空調 / 暖房: 個別空調
  • 駅3分
  • 新耐震
  • 即入居可
こだわり条件について

募集区画

選択 面積 空室用途 月額賃料・共益費 坪単価 入居時期 取引態様 図面 お気に入り
6階 69.26坪 事務所 412,000円 5,949円/坪 即入居可 媒介 library_books
6階
grade
5階 17.51坪 事務所 97,000円 5,540円/坪 即入居可 媒介 library_books
5階
grade
5階 44.61坪 事務所 245,400円 5,501円/坪 即入居可 媒介 library_books
5階
grade
4階 34.28坪 事務所 152,380円 4,445円/坪 即入居可 媒介 library_books
4階
grade
3階 17.04坪 事務所 94,000円 5,516円/坪 即入居可 媒介 library_books
3階
grade
3階 17.51坪 事務所 97,000円 5,540円/坪 即入居可 媒介 library_books
3階
grade
3階 24.65坪 事務所 135,000円 5,477円/坪 即入居可 媒介 library_books
3階
grade
2階 10.25坪 事務所 50,727円 4,949円/坪 即入居可 媒介 library_books
2階
grade
選択 面積 空室用途 月額賃料・共益費 坪単価 入居時期 取引態様 図面 お気に入り
5階 44.61坪 事務所 - 掲載終了 - 掲載終了 grade
4階 17.51坪 事務所 - 掲載終了 - 掲載終了 library_books
4階
grade
4階 51.79坪 事務所 - 掲載終了 - 掲載終了 grade
4階 34.28坪 事務所 - 掲載終了 - 掲載終了 grade
3階 59.2坪 事務所 - 掲載終了 - 掲載終了 grade
3階 59.2坪 事務所 - 掲載終了 - 掲載終了 grade
2階 32.61坪 事務所 - 掲載終了 - 掲載終了 library_books
2階
grade
2階 32.61坪 事務所 - 掲載終了 - 掲載終了 grade
掲載終了した区画

広小路セントラルビル 6階 賃貸オフィス・事務所に関するお問い合わせ

076-224-6310

平日 9:00〜17:30

シービーアールイー株式会社
金沢支店

〒920-0031 石川県金沢市広岡3丁目3番11号 JR金沢駅西第四NKビル5階
免許番号:宅地建物取引業 国土交通大臣免許 (15) 第1075号

この空室をお問い合わせ

オフィスの移転・新規拠点開設はシービーアールイーにご相談ください。最適なオフィスソリューションとサポートを提供いたします。

広小路セントラルビルを見た方が合わせてチェックしている物件

BIZビル

富山県高岡市駅南5-4-12

高岡駅 5分

高岡広小路第一ビルディング

富山県高岡市広小路5-13

高岡駅 20分

CUBE高岡宝町

富山県高岡市宝町2-17

高岡駅 35分
14~50坪

Dタワー富山

富山県富山市牛島町9-5

富山駅 4分
29~277坪

北陸読売会館

富山県高岡市下関町4-5

高岡駅 2分
10~102坪

インテックビル(タワー111)

富山県富山市牛島新町5-5

富山駅 4分
23~97坪

アールワン丸の内ビル

富山県高岡市丸の内2-5

高岡駅 20分

カーニープレイス富山ビル

富山県富山市新富町2-4-25

富山駅 7分
15~49坪

※賃料、共益費は別途消費税の対象となります。 / ※階数や区画によって賃貸条件が異なる場合がございます。 / ※統合・分割区画は、別途条件がある場合がありますので、詳細はお問い合わせください。 / ※募集状況は変動があるため、お問い合わせをいただいた時点でご紹介ができない場合があります。 / ※賃貸条件や建物設備は変更することがあるため、ご契約内容の詳細は各建物の賃貸借契約書等でご確認ください。 / ※当サイトでは1983年以降に竣⼯した建物を「新耐震基準」と分類しています。 / ※端数処理の関係で、賃貸条件、建物・区画⾯積に誤差が⽣じる場合があります。 / ※掲載内容が現況と異なる場合は現況を優先いたします。 / ※契約成⽴の場合、法令に定める基準に従い仲介⼿数料を申し受けます。(⼀部例外もございます。)

この物件をお問い合わせ
チェックした物件をまとめてお問い合わせ