03-5288-9520

平日 9:00〜17:30

物件を探す

事業用不動産のあらゆるニーズを網羅するサービスと豊富な実績で、お客様の課題を解決する最適なソリューションをご提案いたします。

お役立ち情報

CBREが手掛けた、さまざまな業種・規模の移転事例のご紹介を始め、オフィスや物流拠点の移転に役立つ資料・情報をご提供しています。

マーケット情報

独自収集したデータを元に、不動産マーケットの市況を分析予測し、市場変化をいち早く捉え、ポイントをまとめた市場レポートを配信しています。
また、物件レポート、業界トレンド情報など、事業用不動産の最新情報、トレンドを配信しています。

CBREについて

事業用不動産の分野において、世界有数の企業であるCBRE。日本国内におけるその強み、拠点、会社概要をご紹介します。

ヘルプ

物件検索の使い方や、会員サービス、よくあるご質問など、当サイトをより便利にご利用いただくための情報をご紹介します。

仲介会社様はこちら
賃貸オフィス 物件番号 114212016006

d_ll HONATSUGI(ディール本厚木) 5階 33.89坪

平日 9:00〜17:30 03-5288-9520
専門家に相談してみる
  • 更新を通知
  • URLを共有
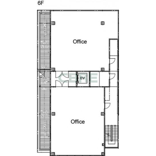
4階〜5階 平面図 4階〜5階 平面図
1/ 1
  • 4階〜5階 平面図
外観 外観
1/ 1
  • 外観
賃貸条件
募集階 5階
募集面積 33.89坪 / 112.03m2
空室用途 事務所
賃料 月額510,000円(15,049円/坪)
共益費 賃料に込み
賃料+共益費 月額510,000円(15,049円/坪)
敷金 6ヶ月
入居時期 2026年5月
取引態様 媒介
情報更新日 2026年4月14日
物件概要
物件名 d_ll HONATSUGI(ディール本厚木)
所在地 神奈川県厚木市中町2-2-19
最寄り駅 小田急電鉄小田原線 本厚木駅 徒歩2分
竣工年月 2026年3月 予定
規模 地上6階
構造 鉄骨造
基準階面積 68.36坪 / 225.98m2
延床面積 451.83坪 / 1,493.64m2
エレベーター数 1基
基準天井高 3,645mm
  • 新築
  • 駅3分
  • オススメ
  • 新耐震
こだわり条件について

募集区画

選択 面積 空室用途 月額賃料・共益費 坪単価 入居時期 取引態様 図面 お気に入り
6階 28.7坪 事務所 430,000円 14,983円/坪 2026年5月 媒介 library_books
6階
grade
6階 27.72坪 事務所 415,000円 14,971円/坪 2026年5月 媒介 library_books
6階
grade
5階 33.89坪 事務所 510,000円 15,049円/坪 2026年5月 媒介 library_books
5階
grade
5階 34.46坪 事務所 520,000円 15,090円/坪 2026年5月 媒介 library_books
5階
grade
1階 31.58坪 飲食店舗 830,000円 26,282円/坪 2026年5月 媒介 library_books
1階
grade
1階 32.97坪 物販店舗 860,000円 26,084円/坪 2026年5月 媒介 library_books
1階
grade

d_ll HONATSUGI(ディール本厚木) 5階 賃貸オフィス・事務所に関するお問い合わせ

03-5288-9520

平日 9:00〜17:30

シービーアールイー株式会社
物件探しのご相談

〒100-0005 東京都千代田区丸の内2-1-1 明治安田生命ビル 21F
免許番号:宅地建物取引業 国土交通大臣免許 (15) 第1075号

この空室をお問い合わせ

オフィスの移転・新規拠点開設はシービーアールイーにご相談ください。最適なオフィスソリューションとサポートを提供いたします。

d_ll HONATSUGI(ディール本厚木)の概要

ディール本厚木は、2026年3月竣工予定の地上6階建て鉄骨造のオフィスビルです。所在地は神奈川県厚木市中町2丁目2-19に完成予定です。小田急小田原線「本厚木」駅より徒歩2分というアクセス抜群の立地が魅力です。延床面積は約451坪、基準階面積は68.36坪で、オフィスレイアウトは中央にエレベーター1基とエレベーターホールを配し、ホールの左右に30坪前後の貸室がございます。階高は3,245~3,645mm、想定天高は2,700~2,570mmです。床仕様はコンクリートスラブです。引渡しはスケルトン仕様になります。1階飲食店物販店舗、2・3階クリニック、4から6階は事務所と様々な規模のテナントニーズに対応できます。業種についてもご相談可能です。詳細につきましては、お気軽にお問い合わせください。

d_ll HONATSUGI(ディール本厚木)を見た方が合わせてチェックしている物件

厚木Tビル

神奈川県厚木市中町3-2-6

本厚木駅 4分

ディール武蔵小杉

神奈川県川崎市中原区中丸子35-9

武蔵小杉駅 3分
83~407坪

厚木アクストメインタワー

神奈川県厚木市岡田3050

本厚木駅 25分
222~223坪

東武太朋ビル

神奈川県厚木市中町2-6-10

本厚木駅 2分

厚木フォーラムビル

神奈川県厚木市泉町3-5

本厚木駅 1分

LGビル

神奈川県厚木市中町2-7-6

本厚木駅 3分
58坪

海老名プライムタワー

神奈川県海老名市中央2-9-50

海老名駅 12分

本厚木ケイビル

神奈川県厚木市中町3-11-20

本厚木駅 5分

※賃料、共益費は別途消費税の対象となります。 / ※階数や区画によって賃貸条件が異なる場合がございます。 / ※統合・分割区画は、別途条件がある場合がありますので、詳細はお問い合わせください。 / ※募集状況は変動があるため、お問い合わせをいただいた時点でご紹介ができない場合があります。 / ※賃貸条件や建物設備は変更することがあるため、ご契約内容の詳細は各建物の賃貸借契約書等でご確認ください。 / ※当サイトでは1983年以降に竣⼯した建物を「新耐震基準」と分類しています。 / ※端数処理の関係で、賃貸条件、建物・区画⾯積に誤差が⽣じる場合があります。 / ※掲載内容が現況と異なる場合は現況を優先いたします。 / ※契約成⽴の場合、法令に定める基準に従い仲介⼿数料を申し受けます。(⼀部例外もございます。)

この物件をお問い合わせ
チェックした物件をまとめてお問い合わせ