03-5288-9520

平日 9:00〜17:30

物件を探す

事業用不動産のあらゆるニーズを網羅するサービスと豊富な実績で、お客様の課題を解決する最適なソリューションをご提案いたします。

お役立ち情報

CBREが手掛けた、さまざまな業種・規模の移転事例のご紹介を始め、オフィスや物流拠点の移転に役立つ資料・情報をご提供しています。

マーケット情報

独自収集したデータを元に、不動産マーケットの市況を分析予測し、市場変化をいち早く捉え、ポイントをまとめた市場レポートを配信しています。
また、物件レポート、業界トレンド情報など、事業用不動産の最新情報、トレンドを配信しています。

CBREについて

事業用不動産の分野において、世界有数の企業であるCBRE。日本国内におけるその強み、拠点、会社概要をご紹介します。

ヘルプ

物件検索の使い方や、会員サービス、よくあるご質問など、当サイトをより便利にご利用いただくための情報をご紹介します。

仲介会社様はこちら
掲載終了 賃貸オフィス 物件番号 113113056022

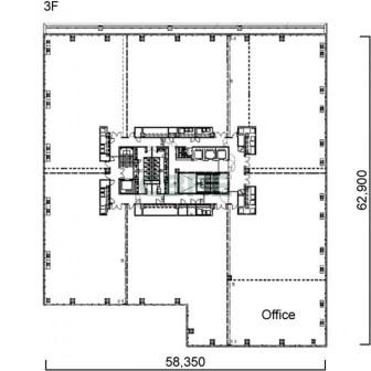
千駄ヶ谷センタービル建替計画 3階 884.34坪

平日 9:00〜17:30 03-5288-9520
専門家に相談してみる
  • 更新を通知
  • URLを共有
千駄ヶ谷センタービル建替計画 3階は掲載終了しました

千駄ヶ谷センタービル建替計画 3階に類似した物件を非公開物件から紹介致します

不動産業界では様々な理由で一般公開前の非公開物件があります

  • 募集の準備が整っていない
  • オーナー意向で空室情報を公開していない
  • オーナーに伝わる前の解約予告情報

以上の理由からCBREが仲介する法人向け事業用物件には、WEBに公開できない空き情報があります。
お問い合わせ頂いたお客様に限り、鮮度の高い先行物件をご案内しております。

非公開物件のお問い合わせ
3階 平面図 3階 平面図
1/ 1
  • 3階 平面図
外観 外観
1/ 1
  • 外観
賃貸条件
募集階 3階
募集面積 884.34坪 / 2,923.47m2
空室用途 事務所
賃料・保証金等 -
入居時期 -
取引態様 -
情報更新日 2024年2月6日
物件概要
物件名 千駄ヶ谷センタービル建替計画
所在地 東京都渋谷区千駄ヶ谷1-18-5
最寄り駅 総武・中央緩行線 千駄ヶ谷駅 徒歩2分
東京都営大江戸線 国立競技場駅 徒歩2分
東京メトロ副都心線 北参道駅 徒歩9分
竣工年月 2024年9月 予定
規模 地上4階 地下1階
構造 鉄骨造
基準階面積 923.18坪 / 3,051.84m2
延床面積 4,530.52坪 / 14,976.96m2
警備 機械警備
駐車場 機械式・平面併用 最大 42台
エレベーター数 4基
基準天井高 2,800mm
基準床荷重 500kg/m2
空調 冷房: 個別空調 / 暖房: 個別空調
こだわり条件について

募集区画

選択 面積 空室用途 月額賃料・共益費 坪単価 入居時期 取引態様 図面 お気に入り
4階 717.32坪 事務所 - 掲載終了 - 掲載終了 library_books
4階
grade
3階 884.34坪 事務所 - 掲載終了 - 掲載終了 library_books
3階
grade
2階 923.18坪 事務所 - 掲載終了 - 掲載終了 library_books
2階
grade
1階 30.49坪 店舗 - 掲載終了 - 掲載終了 library_books
1階
grade

千駄ヶ谷センタービル建替計画 3階 賃貸オフィス・事務所に関するお問い合わせ

03-5288-9520

平日 9:00〜17:30

シービーアールイー株式会社
物件探しのご相談

〒100-0005 東京都千代田区丸の内2-1-1 明治安田生命ビル 21F
免許番号:宅地建物取引業 国土交通大臣免許 (15) 第1075号

この空室をお問い合わせ

オフィスの移転・新規拠点開設はシービーアールイーにご相談ください。最適なオフィスソリューションとサポートを提供いたします。

千駄ヶ谷センタービル建替計画の概要

千駄ヶ谷センタービル建替計画は、東京都渋谷区千駄ヶ谷にあるオフィスビルの建て替え計画です。2024年9月の竣工を予定しています。JR千駄ヶ谷駅と都営地下鉄大江戸線国立競技場駅の2駅から徒歩2分の好立地にあり、延床面積は4,530.52坪、基準階面積は923.18坪です。建物は地上4階建てで、テナント用フロアは地上1階から3階まで、1階には商業施設が入居します。4階は屋上テラスで、緑豊かな環境の中でリフレッシュすることができます。建物は、環境に配慮した設計で、共用部の大きな吹き抜け空間から建物内に自然光を取り込み、快適なウェルネス空間を実現しています。また、セキュリティ設備も充実しており、安心して仕事ができる環境が整っています。

千駄ヶ谷センタービル建替計画を見た方が合わせてチェックしている物件

owns八丁堀

東京都中央区八丁堀3-20-4

八丁堀駅 1分
101坪

東京汐留ビルディング

東京都港区東新橋1-9-1

汐留駅 1分
35~676坪

日本橋本町M-SQUARE

東京都中央区日本橋本町1-9

三越前駅 4分

日本橋プラザビル

東京都中央区日本橋2-3-4

日本橋駅 1分

霞が関ビルディング

東京都千代田区霞が関3-2-5

虎ノ門駅 2分

浜離宮パークサイドプレイス

東京都中央区築地5-6-10

築地市場駅 4分
59~437坪

九段会館テラス

東京都千代田区九段南1-6-5

九段下駅 1分

日本橋加藤ビルディング

東京都中央区日本橋2-1-14

日本橋駅 1分
167坪

※賃料、共益費は別途消費税の対象となります。 / ※階数や区画によって賃貸条件が異なる場合がございます。 / ※統合・分割区画は、別途条件がある場合がありますので、詳細はお問い合わせください。 / ※募集状況は変動があるため、お問い合わせをいただいた時点でご紹介ができない場合があります。 / ※賃貸条件や建物設備は変更することがあるため、ご契約内容の詳細は各建物の賃貸借契約書等でご確認ください。 / ※当サイトでは1983年以降に竣⼯した建物を「新耐震基準」と分類しています。 / ※端数処理の関係で、賃貸条件、建物・区画⾯積に誤差が⽣じる場合があります。 / ※掲載内容が現況と異なる場合は現況を優先いたします。 / ※契約成⽴の場合、法令に定める基準に従い仲介⼿数料を申し受けます。(⼀部例外もございます。)

この物件をお問い合わせ
チェックした物件をまとめてお問い合わせ