03-5288-9520

平日 9:00〜17:30

物件を探す

事業用不動産のあらゆるニーズを網羅するサービスと豊富な実績で、お客様の課題を解決する最適なソリューションをご提案いたします。

お役立ち情報

CBREが手掛けた、さまざまな業種・規模の移転事例のご紹介を始め、オフィスや物流拠点の移転に役立つ資料・情報をご提供しています。

マーケット情報

独自収集したデータを元に、不動産マーケットの市況を分析予測し、市場変化をいち早く捉え、ポイントをまとめた市場レポートを配信しています。
また、物件レポート、業界トレンド情報など、事業用不動産の最新情報、トレンドを配信しています。

CBREについて

事業用不動産の分野において、世界有数の企業であるCBRE。日本国内におけるその強み、拠点、会社概要をご紹介します。

ヘルプ

物件検索の使い方や、会員サービス、よくあるご質問など、当サイトをより便利にご利用いただくための情報をご紹介します。

仲介会社様はこちら
掲載終了 賃貸オフィス 物件番号 113104160341

REXIED市ヶ谷左内町 3-4階 76.3坪

平日 9:00〜17:30 03-5288-9520
専門家に相談してみる
  • 更新を通知
  • URLを共有
REXIED市ヶ谷左内町 3-4階は掲載終了しました

REXIED市ヶ谷左内町 3-4階に類似した物件を非公開物件から紹介致します

不動産業界では様々な理由で一般公開前の非公開物件があります

  • 募集の準備が整っていない
  • オーナー意向で空室情報を公開していない
  • オーナーに伝わる前の解約予告情報

以上の理由からCBREが仲介する法人向け事業用物件には、WEBに公開できない空き情報があります。
お問い合わせ頂いたお客様に限り、鮮度の高い先行物件をご案内しております。

非公開物件のお問い合わせ
3階 平面図 3階 平面図
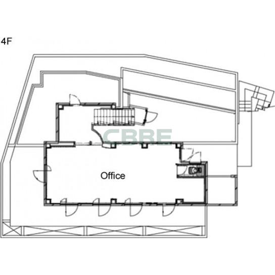
4階 平面図 4階 平面図
1/ 2
  • 3階 平面図
  • 4階 平面図
外観 外観
外観 外観
内観 内観
内観 内観
内観 内観
内観 内観
内観 内観
内観 内観
内観 内観
内観 内観
内観 内観
内観 内観
エントランス エントランス
エレベーターホール エレベーターホール
1/ 14
  • 外観
  • 外観
  • 内観
  • 内観
  • 内観
  • 内観
  • 内観
  • 内観
  • 内観
  • 内観
  • 内観
  • 内観
  • エントランス
  • エレベーターホール
賃貸条件
募集階 3-4階
募集面積 76.3坪 / 252.24m2
空室用途 事務所
賃料・保証金等 -
入居時期 -
取引態様 -
情報更新日 2025年10月27日
空室概要
床荷重 180kg/m2
物件概要
物件名 REXIED市ヶ谷左内町
所在地 東京都新宿区市谷左内町29-3
最寄り駅 総武・中央緩行線 市ヶ谷駅 徒歩5分
東京メトロ有楽町線 市ヶ谷駅 徒歩5分
東京都営新宿線 市ヶ谷駅 徒歩5分
竣工年月 1989年7月
規模 地上4階 地下1階
構造 鉄筋コンクリート造
延床面積 279.8坪 / 924.95m2
警備 機械警備
エレベーター数 1基
空調 冷房: 個別空調 / 暖房: 個別空調
こだわり条件について

募集区画

選択 面積 空室用途 月額賃料・共益費 坪単価 入居時期 取引態様 図面 お気に入り
3-4階 76.3坪 事務所 - 掲載終了 - 掲載終了 library_books
3-4階
grade
2階 67.4坪 事務所 - 掲載終了 - 掲載終了 grade
1階 52.55坪 事務所 - 掲載終了 - 掲載終了 grade
B1階 58.24坪 事務所 - 掲載終了 - 掲載終了 grade

REXIED市ヶ谷左内町 3-4階 賃貸オフィス・事務所に関するお問い合わせ

03-5288-9520

平日 9:00〜17:30

シービーアールイー株式会社
物件探しのご相談

〒100-0005 東京都千代田区丸の内2-1-1 明治安田生命ビル 21F
免許番号:宅地建物取引業 国土交通大臣免許 (15) 第1075号

この空室をお問い合わせ

オフィスの移転・新規拠点開設はシービーアールイーにご相談ください。最適なオフィスソリューションとサポートを提供いたします。

REXIED市ヶ谷左内町を見た方が合わせてチェックしている物件

IT tower TOKYO

東京都豊島区西池袋3丁目28-13

池袋駅
102~291坪

道玄坂通

東京都渋谷区道玄坂2-25-12

渋谷駅 5分

寿光ビル

東京都港区南青山1-26-1

乃木坂駅 1分
145坪

住友池袋駅前ビル

東京都豊島区東池袋1-10-1

池袋駅 2分
81~240坪

WeWork Hareza 池袋

東京都豊島区東池袋 1-18-1(地番)

池袋駅 4分
456坪

アトム青山タワー

東京都港区赤坂7-1-15

青山一丁目駅 6分
52坪

メブクス豊洲

東京都江東区豊洲6-4-34

市場前駅 1分
93~1755坪

ゲートシティ大崎ウエストタワー

東京都品川区大崎1-11-1

大崎駅 1分

※賃料、共益費は別途消費税の対象となります。 / ※階数や区画によって賃貸条件が異なる場合がございます。 / ※統合・分割区画は、別途条件がある場合がありますので、詳細はお問い合わせください。 / ※募集状況は変動があるため、お問い合わせをいただいた時点でご紹介ができない場合があります。 / ※賃貸条件や建物設備は変更することがあるため、ご契約内容の詳細は各建物の賃貸借契約書等でご確認ください。 / ※当サイトでは1983年以降に竣⼯した建物を「新耐震基準」と分類しています。 / ※端数処理の関係で、賃貸条件、建物・区画⾯積に誤差が⽣じる場合があります。 / ※掲載内容が現況と異なる場合は現況を優先いたします。 / ※契約成⽴の場合、法令に定める基準に従い仲介⼿数料を申し受けます。(⼀部例外もございます。)

この物件をお問い合わせ
チェックした物件をまとめてお問い合わせ