03-5288-9520

平日 9:00〜17:30

物件を探す

事業用不動産のあらゆるニーズを網羅するサービスと豊富な実績で、お客様の課題を解決する最適なソリューションをご提案いたします。

お役立ち情報

CBREが手掛けた、さまざまな業種・規模の移転事例のご紹介を始め、オフィスや物流拠点の移転に役立つ資料・情報をご提供しています。

マーケット情報

独自収集したデータを元に、不動産マーケットの市況を分析予測し、市場変化をいち早く捉え、ポイントをまとめた市場レポートを配信しています。
また、物件レポート、業界トレンド情報など、事業用不動産の最新情報、トレンドを配信しています。

CBREについて

事業用不動産の分野において、世界有数の企業であるCBRE。日本国内におけるその強み、拠点、会社概要をご紹介します。

ヘルプ

物件検索の使い方や、会員サービス、よくあるご質問など、当サイトをより便利にご利用いただくための情報をご紹介します。

仲介会社様はこちら
掲載終了 賃貸オフィス 物件番号 113103096002

赤坂二丁目ビル

平日 9:00〜17:30 03-5288-9520
専門家に相談してみる
  • 更新を通知
  • URLを共有
赤坂二丁目ビルは掲載終了しました

赤坂二丁目ビルに類似した物件を非公開物件から紹介致します

不動産業界では様々な理由で一般公開前の非公開物件があります

  • 募集の準備が整っていない
  • オーナー意向で空室情報を公開していない
  • オーナーに伝わる前の解約予告情報

以上の理由からCBREが仲介する法人向け事業用物件には、WEBに公開できない空き情報があります。
お問い合わせ頂いたお客様に限り、鮮度の高い先行物件をご案内しております。

非公開物件のお問い合わせ
外観 外観
1/ 1
  • 外観
物件概要
物件名 赤坂二丁目ビル
所在地 東京都港区赤坂2-12-7
最寄り駅 東京メトロ銀座線 溜池山王駅 徒歩2分
東京メトロ千代田線 赤坂駅 徒歩5分
東京メトロ銀座線 赤坂見附駅 徒歩8分
竣工年月 2018年7月 予定
規模 地上4階 地下2階
構造 鉄筋コンクリート造
基準階面積 52.32坪 / 172.96m2
延床面積 317.83坪 / 1,050.68m2
駐車場 なし
エレベーター数 1基
基準天井高 2,750mm
基準床荷重 300kg/m2
空調 冷房: 個別空調 / 暖房: 個別空調
こだわり条件について

募集区画

選択 面積 空室用途 月額賃料・共益費 坪単価 入居時期 取引態様 図面 お気に入り
6階 37.45坪 事務所 - 掲載終了 - 掲載終了 library_books
6階
grade
5階 44.28坪 事務所 - 掲載終了 - 掲載終了 grade
5階 44.28坪 事務所 - 掲載終了 - 掲載終了 grade
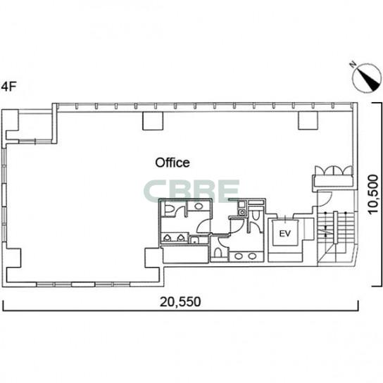
4階 52.32坪 事務所 - 掲載終了 - 掲載終了 library_books
4階
grade
3階 32.94坪 事務所 - 掲載終了 - 掲載終了 grade
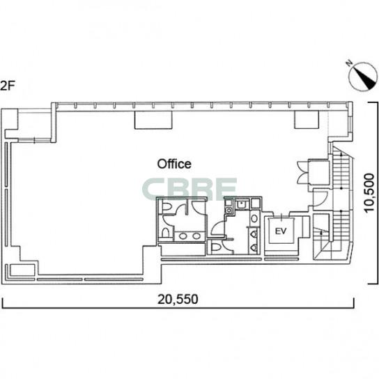
2階 48.97坪 事務所 - 掲載終了 - 掲載終了 library_books
2階
grade
1階 38.41坪 店舗 - 掲載終了 - 掲載終了 grade

赤坂二丁目ビルの賃貸オフィス・事務所に関するお問い合わせ

03-5288-9520

平日 9:00〜17:30

シービーアールイー株式会社
物件探しのご相談

〒100-0005 東京都千代田区丸の内2-1-1 明治安田生命ビル 21F
免許番号:宅地建物取引業 国土交通大臣免許 (15) 第1075号

この物件をお問い合わせ

オフィスの移転・新規拠点開設はシービーアールイーにご相談ください。最適なオフィスソリューションとサポートを提供いたします。

赤坂・六本木・神谷町エリアの想定成約賃料

31,100円 / 坪 (共益費含)

2026年1月現在

  • ※CBREで設定したオフィスマーケットエリアにおいて、規模、設備等で各エリアを代表すると考えられる複数のオフィスビルの想定成約賃料をもとに算出しています。不動産市場における賃料水準に関する意見であり、成約賃料を保証するものではありませんので、あらかじめご了承ください。
  • ※グレードAマイナスの想定成約賃料です。グレードAマイナスは、東京23区に立地し、貸室総面積4,500坪以上、延床面積7,000坪以上、基準階面積250坪以上、新耐震基準準拠の各条件を満たしたビルと定義しています(ただし、グレードA:貸室総面積6,500坪以上、延床面積10,000坪以上、基準階面積500坪以上を除く)

赤坂二丁目ビルを見た方が合わせてチェックしている物件

西新宿三晃ビル

東京都新宿区西新宿7-22-35

新宿西口駅 5分
124坪

パシフィックマークス月島

東京都中央区月島1-15-7

月島駅 4分
272坪

AKABISHI-Ⅱ

東京都港区赤坂4-1-30

赤坂見附駅 3分
48坪

三井花桐ビル

東京都新宿区西新宿7-22-36

新宿西口駅 5分

芝御成門タワー

東京都港区新橋6-1-1

御成門駅 2分

ONE SHINKAWA

東京都中央区新川1-23-5

茅場町駅 6分
38~173坪

京橋トラストタワー

東京都中央区京橋2-1-3

京橋駅 1分
79坪

サンセルモ大門ビル

東京都港区芝大門1-1-35

御成門駅 2分

※賃料、共益費は別途消費税の対象となります。 / ※階数や区画によって賃貸条件が異なる場合がございます。 / ※統合・分割区画は、別途条件がある場合がありますので、詳細はお問い合わせください。 / ※募集状況は変動があるため、お問い合わせをいただいた時点でご紹介ができない場合があります。 / ※賃貸条件や建物設備は変更することがあるため、ご契約内容の詳細は各建物の賃貸借契約書等でご確認ください。 / ※当サイトでは1983年以降に竣⼯した建物を「新耐震基準」と分類しています。 / ※端数処理の関係で、賃貸条件、建物・区画⾯積に誤差が⽣じる場合があります。 / ※掲載内容が現況と異なる場合は現況を優先いたします。 / ※契約成⽴の場合、法令に定める基準に従い仲介⼿数料を申し受けます。(⼀部例外もございます。)

この物件をお問い合わせ
チェックした物件をまとめてお問い合わせ