03-5288-9520

平日 9:00〜17:30

物件を探す

事業用不動産のあらゆるニーズを網羅するサービスと豊富な実績で、お客様の課題を解決する最適なソリューションをご提案いたします。

お役立ち情報

CBREが手掛けた、さまざまな業種・規模の移転事例のご紹介を始め、オフィスや物流拠点の移転に役立つ資料・情報をご提供しています。

マーケット情報

独自収集したデータを元に、不動産マーケットの市況を分析予測し、市場変化をいち早く捉え、ポイントをまとめた市場レポートを配信しています。
また、物件レポート、業界トレンド情報など、事業用不動産の最新情報、トレンドを配信しています。

CBREについて

事業用不動産の分野において、世界有数の企業であるCBRE。日本国内におけるその強み、拠点、会社概要をご紹介します。

ヘルプ

物件検索の使い方や、会員サービス、よくあるご質問など、当サイトをより便利にご利用いただくための情報をご紹介します。

仲介会社様はこちら
掲載終了 賃貸オフィス 物件番号 113102200106

銀座THビル 9階 76.88坪

平日 9:00〜17:30 03-5288-9520
専門家に相談してみる
  • 更新を通知
  • URLを共有
銀座THビル 9階は掲載終了しました

銀座THビル 9階に類似した物件を非公開物件から紹介致します

不動産業界では様々な理由で一般公開前の非公開物件があります

  • 募集の準備が整っていない
  • オーナー意向で空室情報を公開していない
  • オーナーに伝わる前の解約予告情報

以上の理由からCBREが仲介する法人向け事業用物件には、WEBに公開できない空き情報があります。
お問い合わせ頂いたお客様に限り、鮮度の高い先行物件をご案内しております。

非公開物件のお問い合わせ
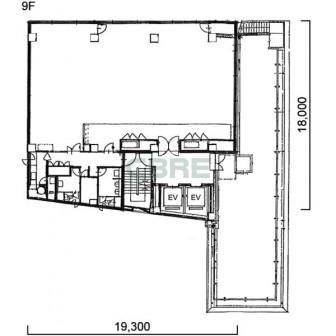
9階 平面図 9階 平面図
1/ 1
  • 9階 平面図
外観 外観
外観 外観
外観 外観
1/ 3
  • 外観
  • 外観
  • 外観
賃貸条件
募集階 9階
募集面積 76.88坪 / 254.15m2
空室用途 事務所
賃料・保証金等 -
入居時期 -
取引態様 -
情報更新日 2022年7月20日
物件概要
物件名 銀座THビル
所在地 東京都中央区銀座7-13-20
最寄り駅 東京メトロ日比谷線 東銀座駅 徒歩4分
東京メトロ銀座線 銀座駅 徒歩6分
山手線 新橋駅 徒歩8分
竣工年月 1984年7月
規模 地上9階 地下1階
構造 鉄骨鉄筋コンクリート造
基準階面積 218.97坪 / 723.87m2
延床面積 1,949.66坪 / 6,445.15m2
駐車場 あり
エレベーター数 2基
基準天井高 2,400mm
空調 冷房: 個別空調 / 暖房: 個別空調
こだわり条件について

募集区画

選択 面積 空室用途 月額賃料・共益費 坪単価 入居時期 取引態様 図面 お気に入り
9階 76.88坪 事務所 - 掲載終了 - 掲載終了 library_books
9階
grade
8階 126.4坪 事務所 - 掲載終了 - 掲載終了 grade
7階 127.08坪 事務所 - 掲載終了 - 掲載終了 grade
6階 156.74坪 事務所 - 掲載終了 - 掲載終了 grade
5階 179.76坪 事務所 - 掲載終了 - 掲載終了 grade
4階 204.42坪 事務所 - 掲載終了 - 掲載終了 grade
3階 211.63坪 事務所 - 掲載終了 - 掲載終了 grade
2階 218.97坪 事務所 - 掲載終了 - 掲載終了 grade

銀座THビル 9階 賃貸オフィス・事務所に関するお問い合わせ

03-5288-9520

平日 9:00〜17:30

シービーアールイー株式会社
東京本社 オフィス

〒100-0005 東京都千代田区丸の内2-1-1 明治安田生命ビル 21F
免許番号:宅地建物取引業 国土交通大臣免許 (15) 第1075号

この空室をお問い合わせ

オフィスの移転・新規拠点開設はシービーアールイーにご相談ください。最適なオフィスソリューションとサポートを提供いたします。

銀座THビルの概要

銀座THビルは、東京都中央区銀座7-13-21にあるオフィスビルです。東京メトロ・都営地下鉄東銀座駅から徒歩4分、東京メトロ銀座駅から徒歩6分、JR新橋駅から徒歩8分の好立地にあります。鉄骨鉄筋コンクリート造の地下1階地上9階建てで、1984年に竣工し、延床面積は1,949.66坪です。銀座THビルは、銀座の中心部に位置し、交通アクセスが良好です。また、周辺には商業施設や飲食店が充実しており、ビジネスにもプライベートにも便利な立地です。

銀座THビルを見た方が合わせてチェックしている物件

花蝶ビル

東京都中央区銀座7-16-7

築地市場駅 3分

銀座アスタービルディング

東京都中央区銀座1-8-16

銀座一丁目駅 3分

ACN銀座ビル

東京都中央区銀座8-15-2

汐留駅 3分

大樹生命高田馬場ビル

東京都新宿区高田馬場1-4-15

高田馬場駅 7分

外神田Kビル

東京都千代田区外神田2-5-15

秋葉原駅 5分

パオレビル

東京都八王子市南大沢2-2


33~221坪

日本ガス協会ビル

東京都港区虎ノ門1-15-12

虎ノ門駅 1分

人形町アムフラット

東京都中央区日本橋人形町2-35-12

水天宮前駅 3分
64坪

※賃料、共益費は別途消費税の対象となります。 / ※階数や区画によって賃貸条件が異なる場合がございます。 / ※統合・分割区画は、別途条件がある場合がありますので、詳細はお問い合わせください。 / ※募集状況は変動があるため、お問い合わせをいただいた時点でご紹介ができない場合があります。 / ※賃貸条件や建物設備は変更することがあるため、ご契約内容の詳細は各建物の賃貸借契約書等でご確認ください。 / ※当サイトでは1983年以降に竣⼯した建物を「新耐震基準」と分類しています。 / ※端数処理の関係で、賃貸条件、建物・区画⾯積に誤差が⽣じる場合があります。 / ※掲載内容が現況と異なる場合は現況を優先いたします。 / ※契約成⽴の場合、法令に定める基準に従い仲介⼿数料を申し受けます。(⼀部例外もございます。)

この物件をお問い合わせ
チェックした物件をまとめてお問い合わせ