03-5288-9520

平日 9:00〜17:30

物件を探す

事業用不動産のあらゆるニーズを網羅するサービスと豊富な実績で、お客様の課題を解決する最適なソリューションをご提案いたします。

お役立ち情報

CBREが手掛けた、さまざまな業種・規模の移転事例のご紹介を始め、オフィスや物流拠点の移転に役立つ資料・情報をご提供しています。

マーケット情報

独自収集したデータを元に、不動産マーケットの市況を分析予測し、市場変化をいち早く捉え、ポイントをまとめた市場レポートを配信しています。
また、物件レポート、業界トレンド情報など、事業用不動産の最新情報、トレンドを配信しています。

CBREについて

事業用不動産の分野において、世界有数の企業であるCBRE。日本国内におけるその強み、拠点、会社概要をご紹介します。

ヘルプ

物件検索の使い方や、会員サービス、よくあるご質問など、当サイトをより便利にご利用いただくための情報をご紹介します。

仲介会社様はこちら
賃貸オフィス 物件番号 113101106017

(仮称)SK-K神田駿河台計画

平日 9:00〜17:30 03-5288-9520
専門家に相談してみる
  • 更新を通知
  • URLを共有
1階 平面図 1階 平面図
2階 平面図 2階 平面図
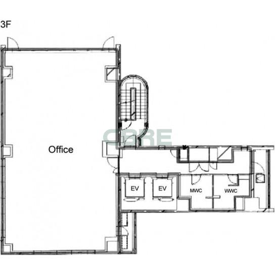
3階 平面図 3階 平面図
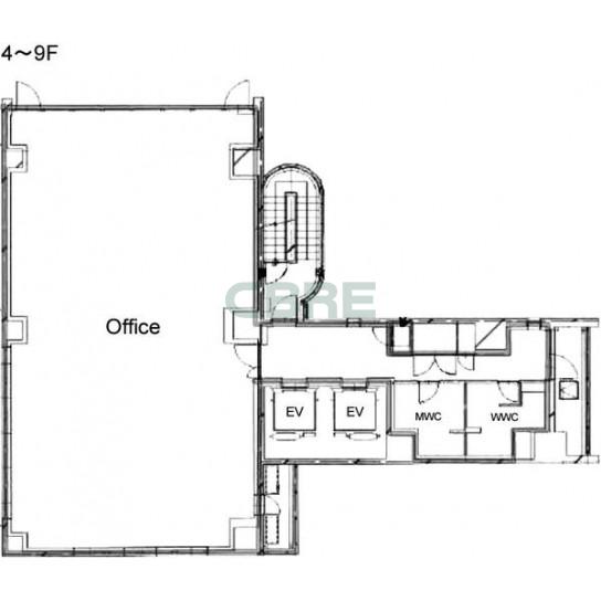
4階〜9階 平面図 4階〜9階 平面図
1/ 4
  • 1階 平面図
  • 2階 平面図
  • 3階 平面図
  • 4階〜9階 平面図
物件概要
物件名 (仮称)SK-K神田駿河台計画
所在地 東京都千代田区神田駿河台2-10-4
最寄り駅 中央本線 御茶ノ水駅 徒歩2分
東京メトロ丸ノ内線 御茶ノ水駅 徒歩5分
東京メトロ千代田線 新御茶ノ水駅 徒歩2分
竣工年月 2026年10月 予定
規模 地上9階
構造 鉄筋コンクリート造
警備 機械警備
エレベーター数 2基
基準天井高 2,700mm
空調 冷房: 個別空調 / 暖房: 個別空調
  • 竣工予定
  • 駅3分
  • 新耐震
  • 1階
  • 3階以下
こだわり条件について

募集区画

選択 面積 空室用途 月額賃料・共益費 坪単価 入居時期 取引態様 図面 お気に入り
9階 53.14坪 事務所 相談 相談 2026年10月
(上旬)
媒介 library_books
9階
grade
8階 53.14坪 事務所 相談 相談 2026年10月
(上旬)
媒介 library_books
8階
grade
7階 53.14坪 事務所 相談 相談 2026年10月
(上旬)
媒介 library_books
7階
grade
6階 53.14坪 事務所 相談 相談 2026年10月
(上旬)
媒介 library_books
6階
grade
5階 53.14坪 事務所 相談 相談 2026年10月
(上旬)
媒介 library_books
5階
grade
4階 53.14坪 事務所 相談 相談 2026年10月
(上旬)
媒介 library_books
4階
grade
3階 53.14坪 事務所 1,381,640円 26,000円/坪 2026年10月
(上旬)
媒介 library_books
3階
grade
2階 43.2坪 店舗 相談 相談 2026年10月
(上旬)
媒介 library_books
2階
grade
1階 42.09坪 店舗 相談 相談 2026年11月
(中旬)
媒介 library_books
1階
grade

(仮称)SK-K神田駿河台計画の賃貸オフィス・事務所に関するお問い合わせ

03-5288-9520

平日 9:00〜17:30

シービーアールイー株式会社
物件探しのご相談

〒100-0005 東京都千代田区丸の内2-1-1 明治安田生命ビル 21F
免許番号:宅地建物取引業 国土交通大臣免許 (15) 第1075号

この物件をお問い合わせ

オフィスの移転・新規拠点開設はシービーアールイーにご相談ください。最適なオフィスソリューションとサポートを提供いたします。

神田・秋葉原・御茶ノ水エリアの想定成約賃料

32,500円 / 坪 (共益費含)

2026年1月現在

  • ※CBREで設定したオフィスマーケットエリアにおいて、規模、設備等で各エリアを代表すると考えられる複数のオフィスビルの想定成約賃料をもとに算出しています。不動産市場における賃料水準に関する意見であり、成約賃料を保証するものではありませんので、あらかじめご了承ください。
  • ※グレードAマイナスの想定成約賃料です。グレードAマイナスは、東京23区に立地し、貸室総面積4,500坪以上、延床面積7,000坪以上、基準階面積250坪以上、新耐震基準準拠の各条件を満たしたビルと定義しています(ただし、グレードA:貸室総面積6,500坪以上、延床面積10,000坪以上、基準階面積500坪以上を除く)

※賃料、共益費は別途消費税の対象となります。 / ※階数や区画によって賃貸条件が異なる場合がございます。 / ※統合・分割区画は、別途条件がある場合がありますので、詳細はお問い合わせください。 / ※募集状況は変動があるため、お問い合わせをいただいた時点でご紹介ができない場合があります。 / ※賃貸条件や建物設備は変更することがあるため、ご契約内容の詳細は各建物の賃貸借契約書等でご確認ください。 / ※当サイトでは1983年以降に竣⼯した建物を「新耐震基準」と分類しています。 / ※端数処理の関係で、賃貸条件、建物・区画⾯積に誤差が⽣じる場合があります。 / ※掲載内容が現況と異なる場合は現況を優先いたします。 / ※契約成⽴の場合、法令に定める基準に従い仲介⼿数料を申し受けます。(⼀部例外もございます。)

この物件をお問い合わせ
チェックした物件をまとめてお問い合わせ