022-262-5651

平日 9:00〜17:30

物件を探す

事業用不動産のあらゆるニーズを網羅するサービスと豊富な実績で、お客様の課題を解決する最適なソリューションをご提案いたします。

お役立ち情報

CBREが手掛けた、さまざまな業種・規模の移転事例のご紹介を始め、オフィスや物流拠点の移転に役立つ資料・情報をご提供しています。

マーケット情報

独自収集したデータを元に、不動産マーケットの市況を分析予測し、市場変化をいち早く捉え、ポイントをまとめた市場レポートを配信しています。
また、物件レポート、業界トレンド情報など、事業用不動産の最新情報、トレンドを配信しています。

CBREについて

事業用不動産の分野において、世界有数の企業であるCBRE。日本国内におけるその強み、拠点、会社概要をご紹介します。

ヘルプ

物件検索の使い方や、会員サービス、よくあるご質問など、当サイトをより便利にご利用いただくための情報をご紹介します。

仲介会社様はこちら
掲載終了 賃貸オフィス 物件番号 106201010018

リアライズ山形駅前通ビル 1階 75.49坪

平日 9:00〜17:30 022-262-5651
専門家に相談してみる
  • 更新を通知
  • URLを共有
リアライズ山形駅前通ビル 1階は掲載終了しました

リアライズ山形駅前通ビル 1階に類似した物件を非公開物件から紹介致します

不動産業界では様々な理由で一般公開前の非公開物件があります

  • 募集の準備が整っていない
  • オーナー意向で空室情報を公開していない
  • オーナーに伝わる前の解約予告情報

以上の理由からCBREが仲介する法人向け事業用物件には、WEBに公開できない空き情報があります。
お問い合わせ頂いたお客様に限り、鮮度の高い先行物件をご案内しております。

非公開物件のお問い合わせ
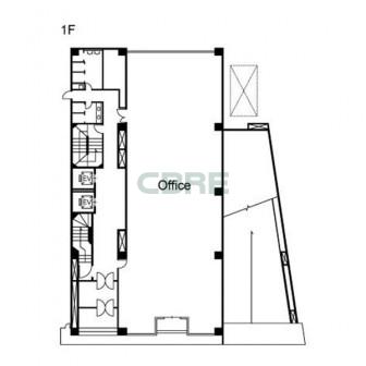
1階 平面図 1階 平面図
1/ 1
  • 1階 平面図
外観 外観
1/ 1
  • 外観
賃貸条件
募集階 1階
募集面積 75.49坪 / 249.58m2
空室用途 事務所
賃料・保証金等 -
入居時期 -
取引態様 -
情報更新日 2023年8月1日
空室概要
天井高 2,450mm
床荷重 300kg/m2
物件概要
物件名 リアライズ山形駅前通ビル
所在地 山形県山形市十日町1-1-34
最寄り駅 仙山線 山形駅 徒歩7分
竣工年月 1984年11月
規模 地上9階 地下2階
構造 鉄骨鉄筋コンクリート造
基準階面積 86.4坪 / 285.61m2
延床面積 1,258.95坪 / 4,161.85m2
警備 機械警備・有人警備併用
駐車場 機械式 最大 26台
エレベーター数 2基
基準天井高 2,450mm
基準床荷重 300kg/m2
空調 冷房: 全館空調 / 暖房: 全館空調
備考 ■JR『山形』駅 徒歩7分 ■駅前通りに面し視認性良好 ■駐車場併設 ■管理人常駐 ■
こだわり条件について

募集区画

選択 面積 空室用途 月額賃料・共益費 坪単価 入居時期 取引態様 図面 お気に入り
8階 48.5坪 事務所 - 掲載終了 - 掲載終了 library_books
8階
grade
7階 18.1坪 事務所 - 掲載終了 - 掲載終了 library_books
7階
grade
7階 18.1坪 事務所 - 掲載終了 - 掲載終了 library_books
7階
grade
7階 48.5坪 事務所 - 掲載終了 - 掲載終了 library_books
7階
grade
7階 18.09坪 事務所 - 掲載終了 - 掲載終了 library_books
7階
grade
7階 30.4坪 事務所 - 掲載終了 - 掲載終了 library_books
7階
grade
4階 30.4坪 事務所 - 掲載終了 - 掲載終了 library_books
4階
grade
3階 30.4坪 事務所 - 掲載終了 - 掲載終了 library_books
3階
grade
3階 20.7坪 事務所 - 掲載終了 - 掲載終了 library_books
3階
grade
3階 24.98坪
(分割案)
事務所 - 掲載終了 - 掲載終了 library_books
3階
grade
3階 37.78坪 事務所 - 掲載終了 - 掲載終了 library_books
3階
grade
2階 31.19坪 事務所 - 掲載終了 - 掲載終了 library_books
2階
grade
2階 17.29坪 事務所 - 掲載終了 - 掲載終了 library_books
2階
grade
2階 37.78坪 事務所 - 掲載終了 - 掲載終了 library_books
2階
grade
2階 17.1坪 事務所 - 掲載終了 - 掲載終了 library_books
2階
grade
2階 20.7坪
(分割案)
事務所 - 掲載終了 - 掲載終了 library_books
2階
grade
2階 31.19坪 事務所 - 掲載終了 - 掲載終了 grade
1階 75.49坪 事務所 - 掲載終了 - 掲載終了 library_books
1階
grade

リアライズ山形駅前通ビル 1階 賃貸オフィス・事務所に関するお問い合わせ

022-262-5651

平日 9:00〜17:30

シービーアールイー株式会社
仙台支店

〒980-0021 宮城県仙台市青葉区中央1-2-3 仙台マークワン 16F
免許番号:宅地建物取引業 国土交通大臣免許 (15) 第1075号

この空室をお問い合わせ

オフィスの移転・新規拠点開設はシービーアールイーにご相談ください。最適なオフィスソリューションとサポートを提供いたします。

リアライズ山形駅前通ビルの概要

駅前通りに面しており視認性が良好な物件となります。空李朝のリニューアル(個別空調化)も順次実施を行っております。2階以上の貸室も来店型用途含めてご相談頂ける物件となっております。

リアライズ山形駅前通ビルを見た方が合わせてチェックしている物件

山形ロイヤルセンチュリービル

山形県山形市東原町2-1-20


プライムスクエア山形ビル

山形県山形市木の実町8-3

山形駅 9分

セントラル山形ビル

山形県山形市本町1-4-27


三井住友海上山形ビル

山形県山形市旅篭町3-2-10

山形駅 15分

カーニープレイス山形

山形県山形市香澄町2-2-31

山形駅 2分

朝日生命山形ビル

山形県山形市香澄町3-1-7

山形駅 5分
30~61坪

プライムスクエア山形ビル

山形県山形市木の実町8-3

山形駅 9分

霞城セントラル

山形県山形市城南町1-1-1

山形駅 1分
15坪

※賃料、共益費は別途消費税の対象となります。 / ※階数や区画によって賃貸条件が異なる場合がございます。 / ※統合・分割区画は、別途条件がある場合がありますので、詳細はお問い合わせください。 / ※募集状況は変動があるため、お問い合わせをいただいた時点でご紹介ができない場合があります。 / ※賃貸条件や建物設備は変更することがあるため、ご契約内容の詳細は各建物の賃貸借契約書等でご確認ください。 / ※当サイトでは1983年以降に竣⼯した建物を「新耐震基準」と分類しています。 / ※端数処理の関係で、賃貸条件、建物・区画⾯積に誤差が⽣じる場合があります。 / ※掲載内容が現況と異なる場合は現況を優先いたします。 / ※契約成⽴の場合、法令に定める基準に従い仲介⼿数料を申し受けます。(⼀部例外もございます。)

この物件をお問い合わせ
チェックした物件をまとめてお問い合わせ