03-5288-9520

平日 9:00〜17:30

物件を探す

事業用不動産のあらゆるニーズを網羅するサービスと豊富な実績で、お客様の課題を解決する最適なソリューションをご提案いたします。

お役立ち情報

CBREが手掛けた、さまざまな業種・規模の移転事例のご紹介を始め、オフィスや物流拠点の移転に役立つ資料・情報をご提供しています。

マーケット情報

独自収集したデータを元に、不動産マーケットの市況を分析予測し、市場変化をいち早く捉え、ポイントをまとめた市場レポートを配信しています。
また、物件レポート、業界トレンド情報など、事業用不動産の最新情報、トレンドを配信しています。

CBREについて

事業用不動産の分野において、世界有数の企業であるCBRE。日本国内におけるその強み、拠点、会社概要をご紹介します。

ヘルプ

物件検索の使い方や、会員サービス、よくあるご質問など、当サイトをより便利にご利用いただくための情報をご紹介します。

仲介会社様はこちら
賃貸オフィス 物件番号 113106060116

住友不動産上野ビル2号館

平日 9:00〜17:30 03-5288-9520
専門家に相談してみる
  • 更新を通知
  • URLを共有
外観 外観
外観 外観
エントランス エントランス
エントランス エントランス
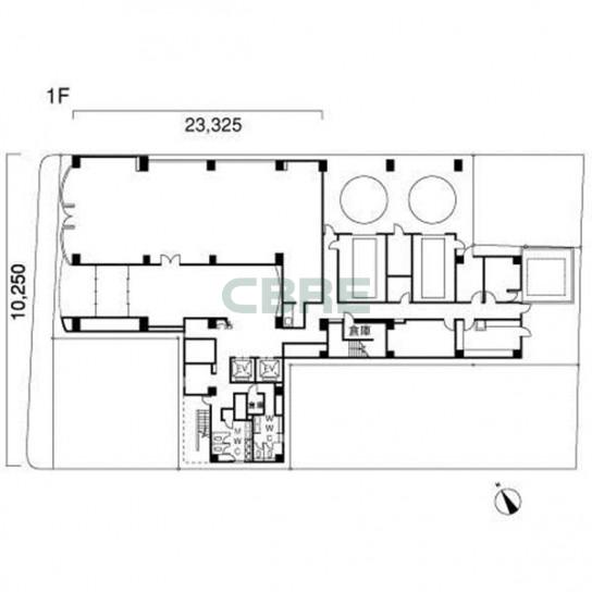
基準階 平面図 基準階 平面図
1/ 5
  • 外観
  • 外観
  • エントランス
  • エントランス
  • 基準階 平面図
物件概要
物件名 住友不動産上野ビル2号館
所在地 東京都台東区北上野2-23-5
最寄り駅 山手線 上野駅 徒歩10分
東京メトロ日比谷線 入谷駅 徒歩3分
東京メトロ銀座線 稲荷町駅 徒歩10分
竣工年月 1991年11月
規模 地上8階 地下2階
構造 鉄骨鉄筋コンクリート造
基準階面積 206.81坪 / 683.67m2
延床面積 2,336.09坪 / 7,722.61m2
警備 有人警備
駐車場 機械式 最大 92台
エレベーター数 2基
基準天井高 2,650mm
基準床荷重 500kg/m2
空調 冷房: フロア毎空調 / 暖房: フロア毎空調
  • 駅3分
  • 新耐震
こだわり条件について

募集区画

選択 面積 空室用途 月額賃料・共益費 坪単価 入居時期 取引態様 図面 お気に入り
7階 191.33坪 事務所 相談 相談 2026年12月 媒介 grade
選択 面積 空室用途 月額賃料・共益費 坪単価 入居時期 取引態様 図面 お気に入り
8階 176.66坪 事務所 - 掲載終了 - 掲載終了 grade
8階 176.66坪 事務所 - 掲載終了 - 掲載終了 grade
6階 191.33坪 事務所 - 掲載終了 - 掲載終了 grade
4階 105.34坪 事務所 - 掲載終了 - 掲載終了 grade
4階 98.7坪 事務所 - 掲載終了 - 掲載終了 grade
3階 206.81坪 事務所 - 掲載終了 - 掲載終了 library_books
3階
grade
2階 178.02坪 事務所 - 掲載終了 - 掲載終了 grade
2階 178.02坪 事務所 - 掲載終了 - 掲載終了 grade
1階 78.81坪 事務所 - 掲載終了 - 掲載終了 grade
1階 78.81坪 事務所 - 掲載終了 - 掲載終了 library_books
1階
grade
掲載終了した区画

住友不動産上野ビル2号館の賃貸オフィス・事務所に関するお問い合わせ

03-5288-9520

平日 9:00〜17:30

シービーアールイー株式会社
物件探しのご相談

〒100-0005 東京都千代田区丸の内2-1-1 明治安田生命ビル 21F
免許番号:宅地建物取引業 国土交通大臣免許 (15) 第1075号

この物件をお問い合わせ

オフィスの移転・新規拠点開設はシービーアールイーにご相談ください。最適なオフィスソリューションとサポートを提供いたします。

住友不動産上野ビル2号館の概要

台東区北上野に位置する地上8階、地下2階建てのオフィスビルです。JR上野駅、東京メトロ入谷駅、東京メトロ上野駅の3駅が利用可能な好立地にあります。ワンフロア200坪超かつ天井高が2.65mあるため、開放的で広々とした空間です。また92台分の機械式駐車場も備えています。

住友不動産上野ビル2号館を見た方が合わせてチェックしている物件

WeWork Dタワー西新宿

東京都新宿区西新宿 6-11-3

西新宿駅 4分
51坪

オリックス浜松町ビル

東京都港区浜松町1-24-8

大門駅 1分

八王子第一東京海上日動ビルディング

東京都八王子市横山町1-6

八王子駅 5分

住友不動産後楽園ビル

東京都文京区小石川1-4-1

後楽園駅 1分
113坪

赤坂KOSENビル

東京都港区赤坂4-8-15

赤坂見附駅 5分
212~240坪

新橋山根ビル

東京都港区東新橋2-5-14

新橋駅 5分
92坪

住友不動産両国ビル

東京都墨田区両国2-10-8

両国駅 3分
193~194坪

(仮称)西新宿8丁目ビル

東京都新宿区西新宿8-15-10

西新宿駅 2分

※賃料、共益費は別途消費税の対象となります。 / ※階数や区画によって賃貸条件が異なる場合がございます。 / ※統合・分割区画は、別途条件がある場合がありますので、詳細はお問い合わせください。 / ※募集状況は変動があるため、お問い合わせをいただいた時点でご紹介ができない場合があります。 / ※賃貸条件や建物設備は変更することがあるため、ご契約内容の詳細は各建物の賃貸借契約書等でご確認ください。 / ※当サイトでは1983年以降に竣⼯した建物を「新耐震基準」と分類しています。 / ※端数処理の関係で、賃貸条件、建物・区画⾯積に誤差が⽣じる場合があります。 / ※掲載内容が現況と異なる場合は現況を優先いたします。 / ※契約成⽴の場合、法令に定める基準に従い仲介⼿数料を申し受けます。(⼀部例外もございます。)

この物件をお問い合わせ
チェックした物件をまとめてお問い合わせ