03-5288-9520

平日 9:00〜17:30

物件を探す

事業用不動産のあらゆるニーズを網羅するサービスと豊富な実績で、お客様の課題を解決する最適なソリューションをご提案いたします。

お役立ち情報

CBREが手掛けた、さまざまな業種・規模の移転事例のご紹介を始め、オフィスや物流拠点の移転に役立つ資料・情報をご提供しています。

マーケット情報

独自収集したデータを元に、不動産マーケットの市況を分析予測し、市場変化をいち早く捉え、ポイントをまとめた市場レポートを配信しています。
また、物件レポート、業界トレンド情報など、事業用不動産の最新情報、トレンドを配信しています。

CBREについて

事業用不動産の分野において、世界有数の企業であるCBRE。日本国内におけるその強み、拠点、会社概要をご紹介します。

ヘルプ

物件検索の使い方や、会員サービス、よくあるご質問など、当サイトをより便利にご利用いただくための情報をご紹介します。

仲介会社様はこちら
賃貸オフィス 物件番号 111103010062

住友生命大宮第2ビル

平日 9:00〜17:30 03-5288-9520
専門家に相談してみる
  • 更新を通知
  • URLを共有
外観 外観
外観 外観
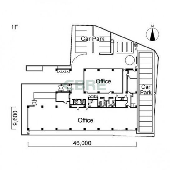
4階〜8階 平面図 4階〜8階 平面図
1/ 3
  • 外観
  • 外観
  • 4階〜8階 平面図
物件概要
物件名 住友生命大宮第2ビル
所在地 埼玉県さいたま市大宮区仲町3-13-1
最寄り駅 埼京線 大宮駅 徒歩5分
竣工年月 1986年6月
規模 地上8階
構造 鉄骨鉄筋コンクリート造
基準階面積 191.48坪 / 632.99m2
延床面積 2,237.29坪 / 7,396.0m2
警備 機械警備
駐車場 機械式・平面併用 最大 47台
エレベーター数 2基
基準天井高 2,500mm
基準床荷重 300kg/m2
空調 冷房: 全館+個別空調 / 暖房: 全館+個別空調
  • 駅5分
  • 新耐震
こだわり条件について

募集区画

選択 面積 空室用途 月額賃料・共益費 坪単価 入居時期 取引態様 図面 お気に入り
7階 118.89坪 事務所 相談 相談 2026年10月 媒介 library_books
7階
grade
選択 面積 空室用途 月額賃料・共益費 坪単価 入居時期 取引態様 図面 お気に入り
8階 36.32坪 事務所 - 掲載終了 - 掲載終了 grade
8階 36.31坪 事務所 - 掲載終了 - 掲載終了 library_books
8階
grade
7階 30.07坪 事務所 - 掲載終了 - 掲載終了 grade
3階 67.18坪 事務所 - 掲載終了 - 掲載終了 grade
3階 31.57坪 事務所 - 掲載終了 - 掲載終了 grade
3階 30.06坪 事務所 - 掲載終了 - 掲載終了 library_books
3階
grade
3階 31.56坪 事務所 - 掲載終了 - 掲載終了 library_books
3階
grade
3階 39.27坪 事務所 - 掲載終了 - 掲載終了 library_books
3階
grade
2階 35.7坪 事務所 - 掲載終了 - 掲載終了 grade
1階 105.52坪 事務所 - 掲載終了 - 掲載終了 grade
1階 50.45坪 事務所 - 掲載終了 - 掲載終了 library_books
1階
grade
1階 105.52坪 事務所 - 掲載終了 - 掲載終了 library_books
1階
grade
掲載終了した区画

住友生命大宮第2ビルの賃貸オフィス・事務所に関するお問い合わせ

03-5288-9520

平日 9:00〜17:30

シービーアールイー株式会社
物件探しのご相談

〒100-0005 東京都千代田区丸の内2-1-1 明治安田生命ビル 21F
免許番号:宅地建物取引業 国土交通大臣免許 (15) 第1075号

この物件をお問い合わせ

オフィスの移転・新規拠点開設はシービーアールイーにご相談ください。最適なオフィスソリューションとサポートを提供いたします。

さいたまの想定成約賃料

20,420円 / 坪 (共益費含)

2026年1月現在

  • ※CBREで設定したオフィスマーケットエリアにおいて、規模、設備等で各エリアを代表すると考えられる複数のオフィスビルの想定成約賃料をもとに算出しています。不動産市場における賃料水準に関する意見であり、成約賃料を保証するものではありませんので、あらかじめご了承ください。

住友生命大宮第2ビルを見た方が合わせてチェックしている物件

ソニックシティビル

埼玉県さいたま市大宮区桜木町1-7-5

大宮駅 4分
23~39坪

東通ビル

埼玉県さいたま市大宮区桜木町1-11-7

大宮駅 7分
108坪

シーノ大宮サウスウイング

埼玉県さいたま市大宮区桜木町1-10-17

大宮駅 5分

ORE大宮ビル

埼玉県さいたま市大宮区宮町1-114-1

大宮駅 5分

G・M大宮ビル

埼玉県さいたま市大宮区土手町1-49-8

大宮駅 15分
62~175坪

大宮ソラミチKOZ

埼玉県さいたま市大宮区桜木町1-195-1

大宮駅 3分
71坪

みずほビル Ⅰ

埼玉県さいたま市大宮区桜木町1-170

大宮駅 3分

大宮田中ビル

埼玉県さいたま市大宮区桜木町2-277

大宮駅 5分

※賃料、共益費は別途消費税の対象となります。 / ※階数や区画によって賃貸条件が異なる場合がございます。 / ※統合・分割区画は、別途条件がある場合がありますので、詳細はお問い合わせください。 / ※募集状況は変動があるため、お問い合わせをいただいた時点でご紹介ができない場合があります。 / ※賃貸条件や建物設備は変更することがあるため、ご契約内容の詳細は各建物の賃貸借契約書等でご確認ください。 / ※当サイトでは1983年以降に竣⼯した建物を「新耐震基準」と分類しています。 / ※端数処理の関係で、賃貸条件、建物・区画⾯積に誤差が⽣じる場合があります。 / ※掲載内容が現況と異なる場合は現況を優先いたします。 / ※契約成⽴の場合、法令に定める基準に従い仲介⼿数料を申し受けます。(⼀部例外もございます。)

この物件をお問い合わせ
チェックした物件をまとめてお問い合わせ