011-231-6931

平日 9:00〜17:30

物件を探す

事業用不動産のあらゆるニーズを網羅するサービスと豊富な実績で、お客様の課題を解決する最適なソリューションをご提案いたします。

お役立ち情報

CBREが手掛けた、さまざまな業種・規模の移転事例のご紹介を始め、オフィスや物流拠点の移転に役立つ資料・情報をご提供しています。

マーケット情報

独自収集したデータを元に、不動産マーケットの市況を分析予測し、市場変化をいち早く捉え、ポイントをまとめた市場レポートを配信しています。
また、物件レポート、業界トレンド情報など、事業用不動産の最新情報、トレンドを配信しています。

CBREについて

事業用不動産の分野において、世界有数の企業であるCBRE。日本国内におけるその強み、拠点、会社概要をご紹介します。

ヘルプ

物件検索の使い方や、会員サービス、よくあるご質問など、当サイトをより便利にご利用いただくための情報をご紹介します。

仲介会社様はこちら
賃貸オフィス 物件番号 101101026021

桂和大通ビル51

平日 9:00〜17:30 011-231-6931
専門家に相談してみる
  • 更新を通知
  • URLを共有
外観 外観
外観 外観
外観 外観
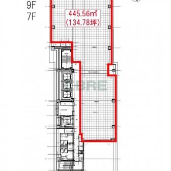
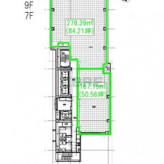
7階 平面図 7階 平面図
7階 平面図 7階 平面図
7階 平面図 7階 平面図
1/ 7
  • 外観
  • 外観
  • 外観
  • 7階 平面図
  • 7階 平面図
  • 7階 平面図
物件概要
物件名 桂和大通ビル51
所在地 北海道札幌市中央区大通西3-8-1他
最寄り駅 市営地下鉄南北線 大通駅 徒歩1分
竣工年月 2023年11月
規模 地上14階 地下2階
構造 鉄骨造
基準階面積 132.05坪 / 436.54m2
延床面積 2,990.05坪 / 9,884.49m2
警備 機械警備
駐車場 機械式 最大 26台
エレベーター数 5基
基準天井高 2,750mm
基準床荷重 490kg/m2
空調 冷房: 個別空調 / 暖房: 個別空調
備考 3~11階は分割相談可能 ※表記パターンは一例です。
  • オススメ
  • 築3年内
  • 駅1分
  • 新耐震
  • 即入居可
こだわり条件について

募集区画

選択 面積 空室用途 月額賃料・共益費 坪単価 入居時期 取引態様 図面 お気に入り
10階 103.86坪 事務所 2,388,780円 23,000円/坪 即入居可 媒介 grade
7階 105.68坪 事務所 2,430,640円 23,000円/坪 2026年6月
(相談)
媒介 library_books
7階
grade
選択 面積 空室用途 月額賃料・共益費 坪単価 入居時期 取引態様 図面 お気に入り
12階 82.19坪 事務所 - 掲載終了 - 掲載終了 library_books
12階
grade
11階 135.0坪 事務所 - 掲載終了 - 掲載終了 grade
11階 105.68坪 事務所 - 掲載終了 - 掲載終了 grade
10階 132.95坪 事務所 - 掲載終了 - 掲載終了 grade
9階 134.77坪 事務所 - 掲載終了 - 掲載終了 grade
9階 50.79坪 事務所 - 掲載終了 - 掲載終了 grade
8階 133.18坪 事務所 - 掲載終了 - 掲載終了 library_books
8階
grade
8階 103.86坪 事務所 - 掲載終了 - 掲載終了 library_books
8階
grade
7階 135.0坪 事務所 - 掲載終了 - 掲載終了 library_books
7階
grade
6階 132.05坪 事務所 - 掲載終了 - 掲載終了 library_books
6階
grade
6階 133.18坪 事務所 - 掲載終了 - 掲載終了 library_books
6階
grade
6階 133.18坪 事務所 - 掲載終了 - 掲載終了 library_books
6階
grade
5階 149.76坪 事務所 - 掲載終了 - 掲載終了 library_books
5階
grade
4階 147.93坪 事務所 - 掲載終了 - 掲載終了 library_books
4階
grade
4階 82.39坪
(分割案)
事務所 - 掲載終了 - 掲載終了 library_books
4階
grade
4階 65.77坪 事務所 - 掲載終了 - 掲載終了 library_books
4階
grade
3階 44.3坪
(分割案)
事務所 - 掲載終了 - 掲載終了 library_books
3階
grade
3階 105.45坪
(分割案)
事務所 - 掲載終了 - 掲載終了 library_books
3階
grade
3階 149.98坪 事務所 - 掲載終了 - 掲載終了 library_books
3階
grade
2階 171.27坪 店舗 - 掲載終了 - 掲載終了 library_books
2階
grade
掲載終了した区画

桂和大通ビル51の賃貸オフィス・事務所に関するお問い合わせ

011-231-6931

平日 9:00〜17:30

シービーアールイー株式会社
札幌支店

〒060-0003 北海道札幌市中央区北3条西4-1-1 日本生命札幌ビル15F
免許番号:宅地建物取引業 国土交通大臣免許 (15) 第1075号

この物件をお問い合わせ

オフィスの移転・新規拠点開設はシービーアールイーにご相談ください。最適なオフィスソリューションとサポートを提供いたします。

桂和大通ビル51の動画

桂和大通ビル51の概要

桂和大通ビル51は大通公園に面し、札幌の中心に立つ物件で視認性の高いオフィスビルです。 〈アクセス〉地下鉄3線が乗れ入れる地下鉄大通駅から徒歩1分 〈規模〉地下2階 地上14階建 〈基準階面積〉約132坪 〈空調〉個別空調 〈設備〉エレベーター5基、機械警備 〈駐車場〉立体駐車場26台(ハイルーフ対応) 札幌のビジネスエリアと商業エリアが交わるエリアで、ビジネスパーソンにとってとても便利な立地です。

桂和大通ビル51を見た方が合わせてチェックしている物件

THE VILLAGE SAPPORO

北海道札幌市中央区北二条西3丁目1-2

さっぽろ駅 2分
68~201坪

サザンクロス札幌

北海道札幌市中央区南三条西3丁目11-1

大通駅 5分
26~142坪

明治安田生命札幌大通ビル

北海道札幌市中央区大通西3-4

大通駅 3分

S-BUILDING札幌大通北

北海道札幌市中央区北一条西7丁目1番地

大通駅 7分
21~203坪

The Link Sapporo

北海道札幌市北区北六条西1-1-3

札幌駅 3分
124~323坪

札幌三井JPビルディング

北海道札幌市中央区北二条西4丁目1番地

さっぽろ駅 2分

第27桂和ビル

北海道札幌市中央区南一条西6-1-4

大通駅 1分
27坪

桂和北2条ビル

北海道札幌市中央区北二条西2

さっぽろ駅 3分
22坪

※賃料、共益費は別途消費税の対象となります。 / ※階数や区画によって賃貸条件が異なる場合がございます。 / ※統合・分割区画は、別途条件がある場合がありますので、詳細はお問い合わせください。 / ※募集状況は変動があるため、お問い合わせをいただいた時点でご紹介ができない場合があります。 / ※賃貸条件や建物設備は変更することがあるため、ご契約内容の詳細は各建物の賃貸借契約書等でご確認ください。 / ※当サイトでは1983年以降に竣⼯した建物を「新耐震基準」と分類しています。 / ※端数処理の関係で、賃貸条件、建物・区画⾯積に誤差が⽣じる場合があります。 / ※掲載内容が現況と異なる場合は現況を優先いたします。 / ※契約成⽴の場合、法令に定める基準に従い仲介⼿数料を申し受けます。(⼀部例外もございます。)

この物件をお問い合わせ
チェックした物件をまとめてお問い合わせ