03-5288-9520

平日 9:00〜17:30

物件を探す

事業用不動産のあらゆるニーズを網羅するサービスと豊富な実績で、お客様の課題を解決する最適なソリューションをご提案いたします。

お役立ち情報

CBREが手掛けた、さまざまな業種・規模の移転事例のご紹介を始め、オフィスや物流拠点の移転に役立つ資料・情報をご提供しています。

マーケット情報

独自収集したデータを元に、不動産マーケットの市況を分析予測し、市場変化をいち早く捉え、ポイントをまとめた市場レポートを配信しています。
また、物件レポート、業界トレンド情報など、事業用不動産の最新情報、トレンドを配信しています。

CBREについて

事業用不動産の分野において、世界有数の企業であるCBRE。日本国内におけるその強み、拠点、会社概要をご紹介します。

ヘルプ

物件検索の使い方や、会員サービス、よくあるご質問など、当サイトをより便利にご利用いただくための情報をご紹介します。

倉庫オーナー様はこちら
仲介会社様はこちら
賃貸倉庫 物件番号 112208016047

Landport野田 4階 1,897.4坪

平日 9:00〜17:30 03-5288-9520
専門家に相談してみる
  • 更新を通知
  • URLを共有
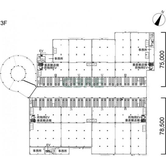
配置図 配置図
4階 平面図 4階 平面図
1/ 2
  • 配置図
  • 4階 平面図
外観 外観
外観 外観
1/ 2
  • 外観
  • 外観
賃貸条件
募集階 4階
募集面積 1,897.4坪 / 6,272.42m2
空室用途 倉庫 / バース / 事務所
賃料 未定
共益費 相談
賃料+共益費 未定
入居時期 即入居可
取引態様 媒介
情報更新日 2026年3月27日
区画備考 D区画
物件概要
物件名 Landport野田
所在地 千葉県野田市下三ケ尾300-3他
交通 常磐自動車道 柏IC 2.1km
用途地域 市街化調整区域
建蔽率 / 容積率 60% / 200%
竣工年月 2026年3月 予定
規模 地上4階
構造 鉄骨造
延床面積 33,178.86坪 / 109,682.22m2
昇降機 EV:4基 / 垂直搬送機:4基
1階天井高 有効 5.59m
天井高備考 [1-3F]5.59m[4F]5.65m ※4F北東部は4.1m、バース倉庫間一部は除く
床荷重 1.5t/㎡
1階床形式 高床式
設備備考 乗用EV:4基(15人乗り)、ドッグレベラー:1-4F 4基(テナント区画ごとに1基)
倉庫備考 柱スパン:間口10.5~11m×奥行11m
  • 築10年内
  • IC 5km内
  • EV
  • ランプウェイ
  • 即入居可
  • 天井5m〜
  • 高床
こだわり条件について

募集区画

選択 面積 空室用途 月額賃料・共益費 坪単価 入居時期 取引態様 図面 お気に入り
1階 3,739.28坪 倉庫 相談 相談 即入居可 媒介 grade
1階 3,080.66坪 倉庫 相談 相談 即入居可 媒介 grade
2階 3,768.28坪 倉庫 相談 相談 即入居可 媒介 library_books
2階
grade
2階 3,188.45坪 倉庫 相談 相談 即入居可 媒介 library_books
2階
grade
3階 3,188.45坪 倉庫 相談 相談 即入居可 媒介 library_books
3階
grade
3階 3,768.28坪 倉庫 相談 相談 即入居可 媒介 library_books
3階
grade
4階 1,363.6坪 倉庫 相談 相談 即入居可 媒介 library_books
4階
grade
4階 1,824.85坪 倉庫 相談 相談 即入居可 媒介 library_books
4階
grade
4階 1,803.81坪 倉庫 相談 相談 即入居可 媒介 library_books
4階
grade
4階 1,897.4坪 倉庫 相談 相談 即入居可 媒介 library_books
4階
grade
選択 面積 空室用途 月額賃料・共益費 坪単価 入居時期 取引態様 図面 お気に入り
1階 1,740.87坪 倉庫 - 掲載終了 - 掲載終了 grade
1階 1,842.1坪 倉庫 - 掲載終了 - 掲載終了 grade
1階 1,842.1坪 倉庫 - 掲載終了 - 掲載終了 grade
1階 1,339.78坪 倉庫 - 掲載終了 - 掲載終了 grade
2階 3,768.28坪 倉庫 - 掲載終了 - 掲載終了 grade
2階 1,897.79坪 倉庫 - 掲載終了 - 掲載終了 grade
2階 1,870.49坪 倉庫 - 掲載終了 - 掲載終了 grade
2階 1,825.24坪 倉庫 - 掲載終了 - 掲載終了 grade
2階 1,363.21坪 倉庫 - 掲載終了 - 掲載終了 grade
3階 1,825.24坪 倉庫 - 掲載終了 - 掲載終了 grade
3階 1,897.4坪 倉庫 - 掲載終了 - 掲載終了 grade
3階 1,870.88坪 倉庫 - 掲載終了 - 掲載終了 grade
3階 1,363.21坪 倉庫 - 掲載終了 - 掲載終了 grade
掲載終了した区画

Landport野田 4階 賃貸物流倉庫・大型貸し倉庫に関するお問い合わせ

03-5288-9520

平日 9:00〜17:30

シービーアールイー株式会社
物件探しのご相談

〒100-0005 東京都千代田区丸の内2-1-1 明治安田生命ビル 21F
免許番号:宅地建物取引業 国土交通大臣免許 (15) 第1075号

この空室をお問い合わせ

物流拠点に関する課題解決ならシービーアールイーにご相談ください。 全国のプロスタッフが、ワンストップで機動的なソリューションを提供します。

Landport野田を見た方が合わせてチェックしている物件

Landcube柏・野田

千葉県野田市瀬戸616他25筆

柏IC 4.5km
2204~10078坪

CBRE IM 野田

千葉県野田市桐ケ作字若宮210-1

五霞IC 12.0km
3438坪

Landport柏Ⅱ

千葉県柏市大青田(柏インター西土地区画整理事業

柏IC 1.4km
2185~2502坪

ロジスティクスパーク野田船形

千葉県野田市泉2-1-3

柏IC 11.0km
37~1062坪

ESR野田ディストリビューションセンター

千葉県野田市中里字光淨寺

柏IC 14.2km
1992~11183坪

野田尾崎物流センター

千葉県野田市尾崎2325-2他

柏IC 14.0km
4215坪

L.PORT柏沼南

千葉県柏市大島田2-5-3

柏IC 12.5km
1601坪

GLP ALFALINK流山8

千葉県流山市森のロジスティクスパーク

流山IC
28~1749坪

※賃料、共益費は別途消費税の対象となります。 / ※階数や区画によって賃貸条件が異なる場合がございます。 / ※統合・分割区画は、別途条件がある場合がありますので、詳細はお問い合わせください。 / ※募集状況は変動があるため、お問い合わせをいただいた時点でご紹介ができない場合があります。 / ※賃貸条件や建物設備は変更することがあるため、ご契約内容の詳細は各建物の賃貸借契約書等でご確認ください。 / ※当サイトでは1983年以降に竣⼯した建物を「新耐震基準」と分類しています。 / ※端数処理の関係で、賃貸条件、建物・区画⾯積に誤差が⽣じる場合があります。 / ※掲載内容が現況と異なる場合は現況を優先いたします。 / ※契約成⽴の場合、法令に定める基準に従い仲介⼿数料を申し受けます。(⼀部例外もございます。)

この物件をお問い合わせ
チェックした物件をまとめてお問い合わせ