物件を探す
事業用不動産のあらゆるニーズを網羅するサービスと豊富な実績で、お客様の課題を解決する最適なソリューションをご提案いたします。
賃貸物件を探す
物件の売買
お問い合わせ
CBREへのお問い合わせはこちらから。
お役立ち情報
CBREが手掛けた、さまざまな業種・規模の移転事例のご紹介を始め、オフィスや物流拠点の移転に役立つ資料・情報をご提供しています。
マーケット情報
独自収集したデータを元に、不動産マーケットの市況を分析予測し、市場変化をいち早く捉え、ポイントをまとめた市場レポートを配信しています。
また、物件レポート、業界トレンド情報など、事業用不動産の最新情報、トレンドを配信しています。
お気に入り物件
履歴
検索履歴
豊栄堂ビル 4階に類似した物件を非公開物件から紹介致します
不動産業界では様々な理由で一般公開前の非公開物件があります
以上の理由からCBREが仲介する法人向け事業用物件には、WEBに公開できない空き情報があります。
お問い合わせ頂いたお客様に限り、鮮度の高い先行物件をご案内しております。
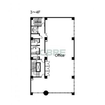
3階〜4階 平面図
外観
| 賃貸条件 | |
|---|---|
| 募集階 | 4階 |
| 募集面積 | 15.43坪 / 51.01m2 (分割案) |
| 空室用途 | 店舗 / 事務所 |
| 賃料・保証金等 | - |
| 入居時期 | - |
| 取引態様 | - |
| 情報更新日 | 2022年11月29日 |
| 物件概要 | |
|---|---|
| 物件名 | 豊栄堂ビル |
| 所在地 | 宮城県仙台市青葉区中央2-6-19 |
| 最寄り駅 |
市営地下鉄南北線 広瀬通駅
徒歩3分
市営地下鉄南北線 仙台駅 徒歩7分 |
| 竣工年月 | 1983年4月 |
| 規模 | 地上7階 地下1階 |
| 構造 | 鉄骨鉄筋コンクリート造 |
| 基準階面積 | 61.48坪 / 203.23m2 |
| 延床面積 | 606.98坪 / 2,006.56m2 |
| 駐車場 | なし |
| エレベーター数 | 1基 |
| 基準天井高 | 2,500mm |
| 基準床荷重 | 300kg/m2 |
| 空調 | 冷房: 個別空調 / 暖房: 個別空調 |
| 選択 | 階 | 面積 | 空室用途 | 月額賃料・共益費 | 坪単価 | 入居時期 | 取引態様 | 図面 | お気に入り |
|---|---|---|---|---|---|---|---|---|---|
| B1階 | 27.47坪 | 店舗 | - 掲載終了 | - | 掲載終了 |
library_books
|
grade | ||
| 2階 | 26.77坪 | 店舗 | - 掲載終了 | - | 掲載終了 | grade | |||
| 3階 | 30.13坪 | 店舗事務所 | - 掲載終了 | - | 掲載終了 | grade | |||
| 4階 | 24.2坪 | 店舗事務所 | - 掲載終了 | - | 掲載終了 | grade | |||
| 4階 | 24.2坪 | 店舗事務所 | - 掲載終了 | - | 掲載終了 | grade | |||
| 4階 | 37.28坪 | 店舗 | - 掲載終了 | - | 掲載終了 |
library_books
|
grade | ||
| 4階 |
15.43坪
(分割案) |
店舗 | - 掲載終了 | - | 掲載終了 |
library_books
|
grade | ||
| 4階 |
21.85坪
(分割案) |
店舗 | - 掲載終了 | - | 掲載終了 |
library_books
|
grade | ||
| 5階 | 28.28坪 | 店舗事務所 | - 掲載終了 | - | 掲載終了 | grade | |||
| 5階 | 28.28坪 | 店舗 | - 掲載終了 | - | 掲載終了 | grade | |||
| 5階 | 15.43坪 | 事務所 | - 掲載終了 | - | 掲載終了 |
library_books
|
grade | ||
| 6階 | 26.1坪 | 店舗事務所 | - 掲載終了 | - | 掲載終了 | grade | |||
| 6階 | 26.1坪 | 店舗 | - 掲載終了 | - | 掲載終了 | grade |
豊栄堂ビル 4階 貸店舗・賃貸店舗に関するお問い合わせ
022-262-5651
平日 9:00〜17:30
シービーアールイー株式会社
仙台支店
〒980-0021 宮城県仙台市青葉区中央1-2-3 仙台マークワン 16F
免許番号:宅地建物取引業 国土交通大臣免許 (15) 第1075号
オフィスの移転・新規拠点開設はシービーアールイーにご相談ください。最適なオフィスソリューションとサポートを提供いたします。
※賃料、共益費は別途消費税の対象となります。 / ※階数や区画によって賃貸条件が異なる場合がございます。 / ※統合・分割区画は、別途条件がある場合がありますので、詳細はお問い合わせください。 / ※募集状況は変動があるため、お問い合わせをいただいた時点でご紹介ができない場合があります。 / ※賃貸条件や建物設備は変更することがあるため、ご契約内容の詳細は各建物の賃貸借契約書等でご確認ください。 / ※当サイトでは1983年以降に竣⼯した建物を「新耐震基準」と分類しています。 / ※端数処理の関係で、賃貸条件、建物・区画⾯積に誤差が⽣じる場合があります。 / ※掲載内容が現況と異なる場合は現況を優先いたします。 / ※契約成⽴の場合、法令に定める基準に従い仲介⼿数料を申し受けます。(⼀部例外もございます。)