076-224-6310

平日 9:00〜17:30

物件を探す

事業用不動産のあらゆるニーズを網羅するサービスと豊富な実績で、お客様の課題を解決する最適なソリューションをご提案いたします。

お役立ち情報

CBREが手掛けた、さまざまな業種・規模の移転事例のご紹介を始め、オフィスや物流拠点の移転に役立つ資料・情報をご提供しています。

マーケット情報

独自収集したデータを元に、不動産マーケットの市況を分析予測し、市場変化をいち早く捉え、ポイントをまとめた市場レポートを配信しています。
また、物件レポート、業界トレンド情報など、事業用不動産の最新情報、トレンドを配信しています。

CBREについて

事業用不動産の分野において、世界有数の企業であるCBRE。日本国内におけるその強み、拠点、会社概要をご紹介します。

ヘルプ

物件検索の使い方や、会員サービス、よくあるご質問など、当サイトをより便利にご利用いただくための情報をご紹介します。

倉庫オーナー様はこちら
仲介会社様はこちら
賃貸倉庫 物件番号 116211016007

(仮称)HCS射水市戸破冷凍倉庫 1階 277.8坪

平日 9:00〜17:30 076-224-6310
専門家に相談してみる
  • 更新を通知
  • URLを共有

媒介業者の方はお問い合わせをご遠慮ください

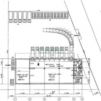
配置図 配置図
基準階 平面図 基準階 平面図
基準階 平面図 基準階 平面図
1/ 3
  • 配置図
  • 基準階 平面図
  • 基準階 平面図
外観 外観
外観 外観
外観 外観
外観 外観
内観 内観
内観 内観
内観 内観
内観 内観
1/ 8
  • 外観
  • 外観
  • 外観
  • 外観
  • 内観
  • 内観
  • 内観
  • 内観
賃貸条件
募集階 1階
募集面積 277.8坪 / 918.36m2
空室用途 倉庫
賃料 月額1,650,000円(5,939円/坪)
共益費 賃料に込み
賃料+共益費 月額1,650,000円(5,939円/坪)
敷金 6ヶ月
入居時期 即入居可
取引態様 媒介
情報更新日 2025年10月9日
区画備考 前室: 209㎡(約63坪) 冷凍室1:396㎡(約119坪)冷凍室2:202.35㎡(約61.2坪)カゴ車置場:22㎡(約6坪) 事務所:74.4㎡(約22.5坪)※トイレ・更衣室を含む※内、事務室は22.3㎡(約6.7坪)
物件概要
物件名 (仮称)HCS射水市戸破冷凍倉庫
所在地 富山県射水市戸破
交通 北陸自動車道 富山西IC 5.2km
北陸自動車道 小杉IC 5.3km
あいの風とやま鉄道線 小杉駅 徒歩44分
用途地域 無指定
竣工年月 2020年10月
規模 地上1階
構造 鉄骨造
延床面積 277.8坪 / 918.36m2
冷蔵冷凍設備 あり
建物備考 冷凍倉庫・事務所
設備備考 ・前室:5℃ ~ -5℃/天井高4.5m・冷凍室1:-25℃/天井高6.0m※移動ラック設置339パレット収容可能・冷凍室2:10℃ ~ -30℃/天井高4.5m
倉庫備考 ・入出荷10t車 1ヶ所(ドッグレベラー付)、2~4t車 8ヶ所・停電対策(LPガス利用)有り(約3日間稼働可能)
  • 築10年内
  • 冷蔵・冷凍
  • 即入居可
こだわり条件について

募集区画

選択 面積 空室用途 月額賃料・共益費 坪単価 入居時期 取引態様 図面 お気に入り
1階 277.8坪 倉庫 1,650,000円 5,939円/坪 即入居可 媒介 grade

(仮称)HCS射水市戸破冷凍倉庫 1階 賃貸物流倉庫・大型貸し倉庫に関するお問い合わせ

076-224-6310

平日 9:00〜17:30

シービーアールイー株式会社
金沢支店

〒920-0031 石川県金沢市広岡3丁目3番11号 JR金沢駅西第四NKビル5階
免許番号:宅地建物取引業 国土交通大臣免許 (15) 第1075号

この空室をお問い合わせ

オフィスの移転・新規拠点開設はシービーアールイーにご相談ください。最適なオフィスソリューションとサポートを提供いたします。

(仮称)HCS射水市戸破冷凍倉庫を見た方が合わせてチェックしている物件

DPL富山射水

富山県射水市上野

小杉IC 1.8km
286~291坪

(仮称)黒瀬北町二丁目倉庫事務所

富山県富山市黒瀬北町

富山IC

(仮称)ODK立山物流センター

富山県中新川郡立山町坂井沢

立山IC 3.0km

射水市有磯 貸し倉庫

富山県射水市有磯

富士吉田北スマートIC 9.3km

高岡市戸出倉庫・事務所

富山県高岡市戸出春日

砺波IC

射水市本開発貸事務所・倉庫

富山県射水市本開発

小杉IC

高岡問屋町岩並倉庫

富山県高岡市問屋町

高岡IC 6.0km

富山市赤田倉庫49

富山県富山市赤田


※賃料、共益費は別途消費税の対象となります。 / ※階数や区画によって賃貸条件が異なる場合がございます。 / ※統合・分割区画は、別途条件がある場合がありますので、詳細はお問い合わせください。 / ※募集状況は変動があるため、お問い合わせをいただいた時点でご紹介ができない場合があります。 / ※賃貸条件や建物設備は変更することがあるため、ご契約内容の詳細は各建物の賃貸借契約書等でご確認ください。 / ※当サイトでは1983年以降に竣⼯した建物を「新耐震基準」と分類しています。 / ※端数処理の関係で、賃貸条件、建物・区画⾯積に誤差が⽣じる場合があります。 / ※掲載内容が現況と異なる場合は現況を優先いたします。 / ※契約成⽴の場合、法令に定める基準に従い仲介⼿数料を申し受けます。(⼀部例外もございます。)

この物件をお問い合わせ
チェックした物件をまとめてお問い合わせ