03-5288-9520

平日 9:00〜17:30

物件を探す

事業用不動産のあらゆるニーズを網羅するサービスと豊富な実績で、お客様の課題を解決する最適なソリューションをご提案いたします。

お役立ち情報

CBREが手掛けた、さまざまな業種・規模の移転事例のご紹介を始め、オフィスや物流拠点の移転に役立つ資料・情報をご提供しています。

マーケット情報

独自収集したデータを元に、不動産マーケットの市況を分析予測し、市場変化をいち早く捉え、ポイントをまとめた市場レポートを配信しています。
また、物件レポート、業界トレンド情報など、事業用不動産の最新情報、トレンドを配信しています。

CBREについて

事業用不動産の分野において、世界有数の企業であるCBRE。日本国内におけるその強み、拠点、会社概要をご紹介します。

ヘルプ

物件検索の使い方や、会員サービス、よくあるご質問など、当サイトをより便利にご利用いただくための情報をご紹介します。

倉庫オーナー様はこちら
仲介会社様はこちら
賃貸倉庫 物件番号 113303016001

T's Logi青梅 1-3階 4,179.45坪

平日 9:00〜17:30 03-5288-9520
専門家に相談してみる
  • 更新を通知
  • URLを共有

媒介業者の方はお問い合わせをご遠慮ください

配置図 配置図
2階 平面図 2階 平面図
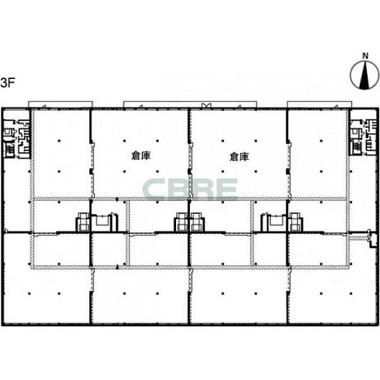
3階 平面図 3階 平面図
1/ 3
  • 配置図
  • 2階 平面図
  • 3階 平面図
内観 内観
内観 内観
荷物用昇降設備 荷物用昇降設備
1/ 3
  • 内観
  • 内観
  • 荷物用昇降設備
賃貸条件
募集階 1-3階
募集面積 4,179.45坪 / 13,816.39m2
空室用途 倉庫 / バース / 事務所
賃料 未定
共益費 相談
賃料+共益費 未定
入居時期 2026年9月
取引態様 媒介
情報更新日 2026年4月27日
物件概要
物件名 T's Logi青梅
所在地 東京都西多摩郡瑞穂町二本木
交通 首都圏中央連絡自動車道 青梅IC 3.0km
首都圏中央連絡自動車道 入間IC 5.0km
用途地域 工業地域
建蔽率 / 容積率 60% / 200%
竣工年月 2022年10月
規模 地上3階
構造 鉄骨造
延床面積 8,462.58坪 / 27,975.48m2
前面道路1 北 12.0m
昇降機 EV:2基 / 垂直搬送機:4基
1階天井高 梁下 5.5m
天井高備考 各階:梁下有効 5.5m
床荷重 1.5t/㎡
1階床形式 高床式
床形式備考 1.0m
  • 築10年内
  • IC 5km内
  • EV
  • 工業系用途地域
  • 天井5m〜
  • 高床
こだわり条件について

募集区画

選択 面積 空室用途 月額賃料・共益費 坪単価 入居時期 取引態様 図面 お気に入り
1-3階 4,179.45坪 倉庫 相談 相談 2026年9月 媒介 library_books
1-3階
grade
選択 面積 空室用途 月額賃料・共益費 坪単価 入居時期 取引態様 図面 お気に入り
1-3階 4,181.1坪 倉庫 - 掲載終了 - 掲載終了 grade
掲載終了した区画

T's Logi青梅 1-3階 賃貸物流倉庫・大型貸し倉庫に関するお問い合わせ

03-5288-9520

平日 9:00〜17:30

シービーアールイー株式会社
物件探しのご相談

〒100-0005 東京都千代田区丸の内2-1-1 明治安田生命ビル 21F
免許番号:宅地建物取引業 国土交通大臣免許 (15) 第1075号

この空室をお問い合わせ

物流拠点に関する課題解決ならシービーアールイーにご相談ください。 全国のプロスタッフが、ワンストップで機動的なソリューションを提供します。

T's Logi青梅の概要

T's Logi青梅は2022年10月に竣工した東京都西多摩郡の物流集積地にある物流施設です。省エネルギーなLED照明の導入により建築物省エネルギー性能表示制度(BELS)における5つ星評価を取得しています。 圏央道 青梅IC より3km、圏央道 入間ICより5km、国道16号まで1.2kmと交通利便性も高い立地にあるため、首都圏の広域配送センターとしても活用可能です。敷地面積4,816坪、延床面積8,462坪。建物は耐震構造の鉄骨造3階建てで、梁下有効高5.5m、床荷重1.5t/㎡、柱スパン11m×10.40mとなっていています。1階は高床式バースで、プラットフォーム1.0m、バース長さ13.67m、シャッター高さ4.45m。縦搬送設備は、荷物用エレベーター3.5t×2台、垂直搬送機1.5t×4台、乗用エレベーター11人乗り×2台が備わっています。また、各階には事務所と休憩所を設置しています。最寄り駅はJR八高線 箱根ケ崎駅となり駅からは3kmの距離となります。敷地には乗用車53台(一般52台、車椅子用1台) 大型トラック5台の駐車場があります。

T's Logi青梅を見た方が合わせてチェックしている物件

LOGIPLACE八王子

東京都八王子市左入町652-1

八王子IC 1.4km
2857~2934坪

プロロジスアーバン東京府中1

東京都府中市武蔵台1-1-3

国立府中IC 3.9km
10~705坪

MFLP立川立飛

東京都立川市泉町935-27

国立府中IC 6.6km
2584坪

アライプロバンス葛西 A棟

東京都江戸川区東葛西9-23-37

葛西出入口 4.0km
11~2104坪

京浜島ロジスティクスセンター

東京都大田区京浜島2-1-7

平和島出入口 3.0km
3838坪

LOGIWITH 八王子

東京都八王子市北野町

八王子IC 6.0km

プロロジスアーバン東京大田1

東京都大田区北糀谷

羽田出入口 1.7km

DPL江東深川

東京都江東区塩浜1-2-2

枝川出口 0.7km
645~3056坪

※賃料、共益費は別途消費税の対象となります。 / ※階数や区画によって賃貸条件が異なる場合がございます。 / ※統合・分割区画は、別途条件がある場合がありますので、詳細はお問い合わせください。 / ※募集状況は変動があるため、お問い合わせをいただいた時点でご紹介ができない場合があります。 / ※賃貸条件や建物設備は変更することがあるため、ご契約内容の詳細は各建物の賃貸借契約書等でご確認ください。 / ※当サイトでは1983年以降に竣⼯した建物を「新耐震基準」と分類しています。 / ※端数処理の関係で、賃貸条件、建物・区画⾯積に誤差が⽣じる場合があります。 / ※掲載内容が現況と異なる場合は現況を優先いたします。 / ※契約成⽴の場合、法令に定める基準に従い仲介⼿数料を申し受けます。(⼀部例外もございます。)

この物件をお問い合わせ
チェックした物件をまとめてお問い合わせ