03-5288-9520

平日 9:00〜17:30

物件を探す

事業用不動産のあらゆるニーズを網羅するサービスと豊富な実績で、お客様の課題を解決する最適なソリューションをご提案いたします。

お役立ち情報

CBREが手掛けた、さまざまな業種・規模の移転事例のご紹介を始め、オフィスや物流拠点の移転に役立つ資料・情報をご提供しています。

マーケット情報

独自収集したデータを元に、不動産マーケットの市況を分析予測し、市場変化をいち早く捉え、ポイントをまとめた市場レポートを配信しています。
また、物件レポート、業界トレンド情報など、事業用不動産の最新情報、トレンドを配信しています。

CBREについて

事業用不動産の分野において、世界有数の企業であるCBRE。日本国内におけるその強み、拠点、会社概要をご紹介します。

ヘルプ

物件検索の使い方や、会員サービス、よくあるご質問など、当サイトをより便利にご利用いただくための情報をご紹介します。

倉庫オーナー様はこちら
仲介会社様はこちら
賃貸倉庫 物件番号 104207016003

仙台名取ロジスティクスセンター 1-3階 2,339.76坪

平日 9:00〜17:30 03-5288-9520
専門家に相談してみる
  • 更新を通知
  • URLを共有

媒介業者の方はお問い合わせをご遠慮ください

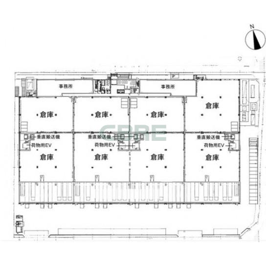
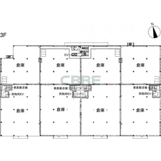
配置図 配置図
2階 平面図 2階 平面図
3階 平面図 3階 平面図
1/ 3
  • 配置図
  • 2階 平面図
  • 3階 平面図
外観 外観
1/ 1
  • 外観
賃貸条件
募集階 1-3階
募集面積 2,339.76坪 / 7,734.73m2
空室用途 倉庫 / バース / 事務所
賃料 未定
共益費 相談
賃料+共益費 未定
入居時期 即入居可
取引態様 媒介
情報更新日 2026年3月6日
物件概要
物件名 仙台名取ロジスティクスセンター
所在地 宮城県名取市飯野坂東2-3-1
交通 仙台東部道路 仙台空港IC
仙台空港鉄道 杜せきのした駅 徒歩12分
用途地域 準工業地域
建蔽率 / 容積率 60% / 200%
竣工年月 2026年1月
規模 地上3階
構造 鉄骨造
延床面積 9,524.34坪 / 31,485.34m2
昇降機 EV:4基 / 垂直搬送機:4基
1階天井高 梁下 5.5m
床荷重 1.5t/㎡
1階床形式 高床式
床形式備考 1.0m
冷蔵冷凍設備 なし
建物備考 竣工日:2026年1月末
  • 築10年内
  • IC 5km内
  • 駅・バス停近
  • EV
  • 工業系用途地域
  • 即入居可
  • 天井5m〜
  • 高床
こだわり条件について

募集区画

選択 面積 空室用途 月額賃料・共益費 坪単価 入居時期 取引態様 図面 お気に入り
1-3階 2,339.76坪 倉庫 相談 相談 即入居可 媒介 library_books
1-3階
grade
1-2階 2,369.81坪 倉庫 相談 相談 即入居可 媒介 library_books
1-2階
grade
1-3階 2,389.26坪 倉庫 相談 相談 即入居可 媒介 library_books
1-3階
grade
1-2階 2,425.19坪 倉庫 相談 相談 即入居可 媒介 library_books
1-2階
grade

仙台名取ロジスティクスセンター 1-3階 賃貸物流倉庫・大型貸し倉庫に関するお問い合わせ

03-5288-9520

平日 9:00〜17:30

シービーアールイー株式会社
物件探しのご相談

〒100-0005 東京都千代田区丸の内2-1-1 明治安田生命ビル 21F
免許番号:宅地建物取引業 国土交通大臣免許 (15) 第1075号

この空室をお問い合わせ

物流拠点に関する課題解決ならシービーアールイーにご相談ください。 全国のプロスタッフが、ワンストップで機動的なソリューションを提供します。

仙台名取ロジスティクスセンターを見た方が合わせてチェックしている物件

岩沼ロジスティクスセンター

宮城県岩沼市空港南4-1-3、1-9

仙台空港IC 4.2km
2647坪

プロロジスパーク岩沼

宮城県岩沼市空港南3-2-35

岩沼IC 5.0km
31~2891坪

Ascot Prime Logistics仙台扇町【1棟貸し】

宮城県仙台市宮城野区扇町5-10-18

仙台港IC 2.7km
2532坪

MFLP仙台名取Ⅰ

宮城県名取市飯野坂字南沖12-1 他

仙台空港IC
2268坪

LOGIQ仙台空港南

宮城県岩沼市空港南2-2-1

仙台空港IC 3.4km
1378~3241坪

岩沼物流センター

宮城県岩沼市下野郷字新関迎

仙台空港IC 3.4km
1958~2008坪

T-LOGI仙台

宮城県仙台市宮城野区中野字掃沼27-1

仙台港北IC 2.6km
1862~2067坪

SANKEILOGI仙台泉

宮城県富谷市上桜木

泉IC 1.9km
2133~4315坪

※賃料、共益費は別途消費税の対象となります。 / ※階数や区画によって賃貸条件が異なる場合がございます。 / ※統合・分割区画は、別途条件がある場合がありますので、詳細はお問い合わせください。 / ※募集状況は変動があるため、お問い合わせをいただいた時点でご紹介ができない場合があります。 / ※賃貸条件や建物設備は変更することがあるため、ご契約内容の詳細は各建物の賃貸借契約書等でご確認ください。 / ※当サイトでは1983年以降に竣⼯した建物を「新耐震基準」と分類しています。 / ※端数処理の関係で、賃貸条件、建物・区画⾯積に誤差が⽣じる場合があります。 / ※掲載内容が現況と異なる場合は現況を優先いたします。 / ※契約成⽴の場合、法令に定める基準に従い仲介⼿数料を申し受けます。(⼀部例外もございます。)

この物件をお問い合わせ
チェックした物件をまとめてお問い合わせ