092-686-6950

平日 9:00〜17:30

物件を探す

事業用不動産のあらゆるニーズを網羅するサービスと豊富な実績で、お客様の課題を解決する最適なソリューションをご提案いたします。

お役立ち情報

CBREが手掛けた、さまざまな業種・規模の移転事例のご紹介を始め、オフィスや物流拠点の移転に役立つ資料・情報をご提供しています。

マーケット情報

独自収集したデータを元に、不動産マーケットの市況を分析予測し、市場変化をいち早く捉え、ポイントをまとめた市場レポートを配信しています。
また、物件レポート、業界トレンド情報など、事業用不動産の最新情報、トレンドを配信しています。

CBREについて

事業用不動産の分野において、世界有数の企業であるCBRE。日本国内におけるその強み、拠点、会社概要をご紹介します。

ヘルプ

物件検索の使い方や、会員サービス、よくあるご質問など、当サイトをより便利にご利用いただくための情報をご紹介します。

仲介会社様はこちら
賃貸店舗 物件番号 146201010006

鹿児島商工会議所ビル

平日 9:00〜17:30 092-686-6950
専門家に相談してみる
  • 更新を通知
  • URLを共有
外観 外観
基準階 平面図 基準階 平面図
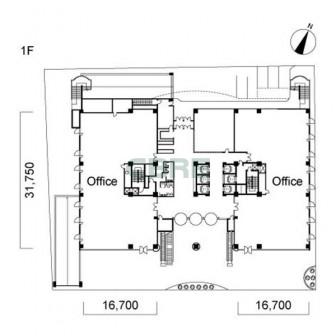
1階 平面図 1階 平面図
1階 平面図 1階 平面図
1/ 4
  • 外観
  • 基準階 平面図
  • 1階 平面図
  • 1階 平面図
物件概要
物件名 鹿児島商工会議所ビル
所在地 鹿児島県鹿児島市東千石町1-38
最寄り駅 鹿児島市唐湊線 高見馬場駅 徒歩4分
竣工年月 1990年3月
規模 地上15階 地下3階
構造 鉄骨鉄筋コンクリート造
基準階面積 233.22坪 / 771.0m2
延床面積 6,774.11坪 / 22,393.8m2
警備 機械警備・有人警備併用
駐車場 機械式・平面併用 最大 89台
エレベーター数 6基
基準天井高 2,600mm
基準床荷重 300kg/m2
空調 冷房: フロア毎空調 / 暖房: フロア毎空調
  • 駅3分
  • 即入居可
こだわり条件について

募集区画

選択 面積 空室用途 月額賃料・共益費 坪単価 入居時期 取引態様 図面 お気に入り
1階 55.7坪 事務所 相談 相談 即入居可 媒介 library_books
1階
grade
1階 50.19坪 事務所 相談 相談 2024年
(相談)
媒介 library_books
1階
grade

鹿児島商工会議所ビルの貸店舗・賃貸店舗に関するお問い合わせ

092-686-6950

平日 9:00〜17:30

シービーアールイー株式会社
福岡支店

〒810-0001 福岡市中央区天神2丁目8番35号 天神住友生命FJビジネスセンター 11階
免許番号:宅地建物取引業 国土交通大臣免許 (15) 第1075号

この物件をお問い合わせ

オフィスの移転・新規拠点開設はシービーアールイーにご相談ください。最適なオフィスソリューションとサポートを提供いたします。

鹿児島商工会議所ビルを見た方が合わせてチェックしている物件

鹿児島甲南スクエア

鹿児島県鹿児島市上之園町25-4

鹿児島中央駅 7分
24~110坪

甲南アセット鹿児島天文館ビル

鹿児島県鹿児島市山之口町12-14

天文館通駅 3分
23~68坪

KSC鴨池ビル

鹿児島県鹿児島市与次郎2-4-35

鴨池駅 20分
17~141坪

南国甲南ビル

鹿児島県鹿児島市中央町16-2

鹿児島中央駅 3分
30~79坪

天文館NNビル

鹿児島県鹿児島市東千石町14-10

天文館通駅 1分
29~61坪

南国アネックス

鹿児島県鹿児島市中央町26-1

鹿児島中央駅 3分
50坪

コアナ天文館

鹿児島県鹿児島市中町7-1

いづろ通駅 3分
20~176坪

JR鹿児島中央ビル

鹿児島県鹿児島市武1-2-1

鹿児島中央駅 1分

近隣エリアから探す

※賃料、共益費は別途消費税の対象となります。 / ※階数や区画によって賃貸条件が異なる場合がございます。 / ※統合・分割区画は、別途条件がある場合がありますので、詳細はお問い合わせください。 / ※募集状況は変動があるため、お問い合わせをいただいた時点でご紹介ができない場合があります。 / ※賃貸条件や建物設備は変更することがあるため、ご契約内容の詳細は各建物の賃貸借契約書等でご確認ください。 / ※当サイトでは1983年以降に竣⼯した建物を「新耐震基準」と分類しています。 / ※端数処理の関係で、賃貸条件、建物・区画⾯積に誤差が⽣じる場合があります。 / ※掲載内容が現況と異なる場合は現況を優先いたします。 / ※契約成⽴の場合、法令に定める基準に従い仲介⼿数料を申し受けます。(⼀部例外もございます。)

この物件をお問い合わせ
チェックした物件をまとめてお問い合わせ